Moradia T3 para Venda em Alfeizerão
795.000 €
Tipo
Moradia
Negócio
Venda
Ano de Construção
2025
Quartos
3
Casas de Banho
2
Área Bruta
372 m²
Área Útil
170 m²
Condição
Novo
Certificado Energético
A
Área do Terreno
638 m²
Moradia T3 com piscina e vista mar
Arquitetura Moderna com Vista de cortar a respiração
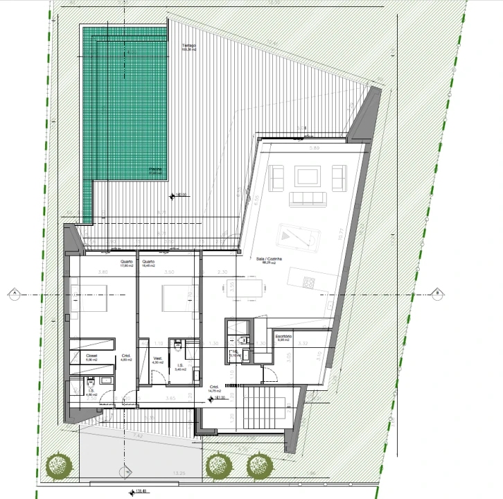
Com uma localização de excelência, esta moradia em construção com tipologia T2 + 1, com possibilidade de alteração para T5, apresenta a combinação perfeita entre natureza e inovação no que se refere à arquitetura e design. Com um traço moderno e sem igual, esta moradia prima pela luminosidade, disposição arquitetônica e privacidade que permite tanto no interior como no exterior da habitação.
Desenhado a pensar no conforto dos futuros proprietários, o projeto principal dispõem de uma cozinha e sala ampla, espaçosa e bem iluminada com uma vista sobre o horizonte de perder a respiração. Já se imaginou estar no conforto do seu lar, no seu sofá e poder apreciar o por do sol sobre o oceano mesmo ao fundo da sua janela? É verdade da sala desta moradia pode desfrutar disto e muito mais.
A cozinha completamente equipada conta com modernos eletrodomésticos como placa elétrica, forno embutido, micro-ondas, exaustor, frigorífico, máquina de lavar loiça e máquina de lavar a roupa, tudo num ambiente harmonioso e funcional.
Equipada com pré-instalação de ar condicionado e bomba de calor para aquecimento das águas sanitárias e da piscina, este imóvel assegura temperaturas agradáveis durante todo o ano. Os acabamentos em alumínio anodizado com rutura térmica garantem ainda a durabilidade juntamente com as janelas em vidro duplo que maximizam as vistas panorâmicas sobre campos verdes até onde se pode avistar o mar no horizonte, todas elas equipadas com sistema blackout para escurecimento das áreas.
Nas duas suites existentes encontra armários embutidos / closet para a sua roupa cuidadosamente pensados na organização para o seu dia-a-dia. Desfrute de noites tranquilas e agradáveis, e acorde com vista para a sua piscina sem fim e para o imenso mar azul na sua frente.
Para os que necessitam de um espaço dedicado a sua área profissional, encontra no piso principal o seu escritório a tempo inteiro ou apenas parcial.
A cave é composta por um espaço amplo para garagem espaçosa, casa das maquinas, WC, sala multifuncional com aprovação para transformação de até três quartos adicionais e escada de acesso ao piso principal.
O exterior desta propriedade não decepciona está murada e proporciona segurança sem sacrificar a estética natural envolvente. Um alpendre convidativo permite desfrutar momentos ao ar livre frente com jardins bem cuidados que cercam a piscina exterior comum com agua aquecida, tornando um verdadeiro refúgio nos dias quentes, com uma vista deslumbrante sobre a conhecida Baía de São Martinho do Porto, além disso há espaços de relaxamento sob os raios solares nas diferentes orientações disponíveis (nascente/sul/poente).
Localizada na periferia da cidade de Alcobaça mas convenientemente próxima dos principais acessos rápidos á Autoestrada A8, ou simplesmente a nacional 8, a serviços públicos incluindo supermercados variados e farmácias, estando igualmente disponíveis escolas, clínicas médicas, bombeiros entre outros estabelecimentos essenciais, que proporcionam comodidades incomparáveis para quem quer aproveitar a tranquilidade da aldeia sem perder o facilitismo das cidades.
Ficou curioso?
Não perca mais tempo e agenda já a sua visita para conhecer o local da sua próxima moradia de sonho.
Com uma localização de excelência, esta moradia em construção com tipologia T2 + 1, com possibilidade de alteração para T5, apresenta a combinação perfeita entre natureza e inovação no que se refere à arquitetura e design. Com um traço moderno e sem igual, esta moradia prima pela luminosidade, disposição arquitetônica e privacidade que permite tanto no interior como no exterior da habitação.
Desenhado a pensar no conforto dos futuros proprietários, o projeto principal dispõem de uma cozinha e sala ampla, espaçosa e bem iluminada com uma vista sobre o horizonte de perder a respiração. Já se imaginou estar no conforto do seu lar, no seu sofá e poder apreciar o por do sol sobre o oceano mesmo ao fundo da sua janela? É verdade da sala desta moradia pode desfrutar disto e muito mais.
A cozinha completamente equipada conta com modernos eletrodomésticos como placa elétrica, forno embutido, micro-ondas, exaustor, frigorífico, máquina de lavar loiça e máquina de lavar a roupa, tudo num ambiente harmonioso e funcional.
Equipada com pré-instalação de ar condicionado e bomba de calor para aquecimento das águas sanitárias e da piscina, este imóvel assegura temperaturas agradáveis durante todo o ano. Os acabamentos em alumínio anodizado com rutura térmica garantem ainda a durabilidade juntamente com as janelas em vidro duplo que maximizam as vistas panorâmicas sobre campos verdes até onde se pode avistar o mar no horizonte, todas elas equipadas com sistema blackout para escurecimento das áreas.
Nas duas suites existentes encontra armários embutidos / closet para a sua roupa cuidadosamente pensados na organização para o seu dia-a-dia. Desfrute de noites tranquilas e agradáveis, e acorde com vista para a sua piscina sem fim e para o imenso mar azul na sua frente.
Para os que necessitam de um espaço dedicado a sua área profissional, encontra no piso principal o seu escritório a tempo inteiro ou apenas parcial.
A cave é composta por um espaço amplo para garagem espaçosa, casa das maquinas, WC, sala multifuncional com aprovação para transformação de até três quartos adicionais e escada de acesso ao piso principal.
O exterior desta propriedade não decepciona está murada e proporciona segurança sem sacrificar a estética natural envolvente. Um alpendre convidativo permite desfrutar momentos ao ar livre frente com jardins bem cuidados que cercam a piscina exterior comum com agua aquecida, tornando um verdadeiro refúgio nos dias quentes, com uma vista deslumbrante sobre a conhecida Baía de São Martinho do Porto, além disso há espaços de relaxamento sob os raios solares nas diferentes orientações disponíveis (nascente/sul/poente).
Localizada na periferia da cidade de Alcobaça mas convenientemente próxima dos principais acessos rápidos á Autoestrada A8, ou simplesmente a nacional 8, a serviços públicos incluindo supermercados variados e farmácias, estando igualmente disponíveis escolas, clínicas médicas, bombeiros entre outros estabelecimentos essenciais, que proporcionam comodidades incomparáveis para quem quer aproveitar a tranquilidade da aldeia sem perder o facilitismo das cidades.
Ficou curioso?
Não perca mais tempo e agenda já a sua visita para conhecer o local da sua próxima moradia de sonho.
Localização
Alfeizerão, Alcobaça, Leiria
Informação do anúncio
ID do anúncio
1772205
Referência Externa
0048
Atualizado em
10/04/2026 13:22:05
Moradia T3 para Venda em Alfeizerão