Moradia T3 para Venda em Oiã
327.500 €
Tipo
Moradia
Negócio
Venda
Ano de Construção
2025
Quartos
3
Casas de Banho
2
Área Bruta
225 m²
Área Útil
180 m²
Condição
Novo
Certificado Energético
A
Moradia Térrea Isolada
Luminosa moradia térrea T3 situada em Oiã inserida numa zona calma e residencial, próxima a todos os serviços e comodidades, para uma vida confortável e pacífica.
Esta moradia situada a poucos minutos do centro de Oiã e a apenas 20 minutos de Aveiro é a casa ideal para ser o seu lar. Destaca-se pela sua excelente exposição solar e pela luminosidade natural que invade todos os espaços, criando um ambiente acolhedor e confortável.
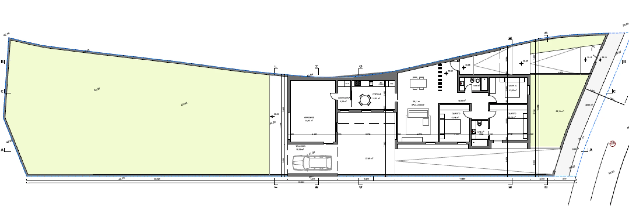
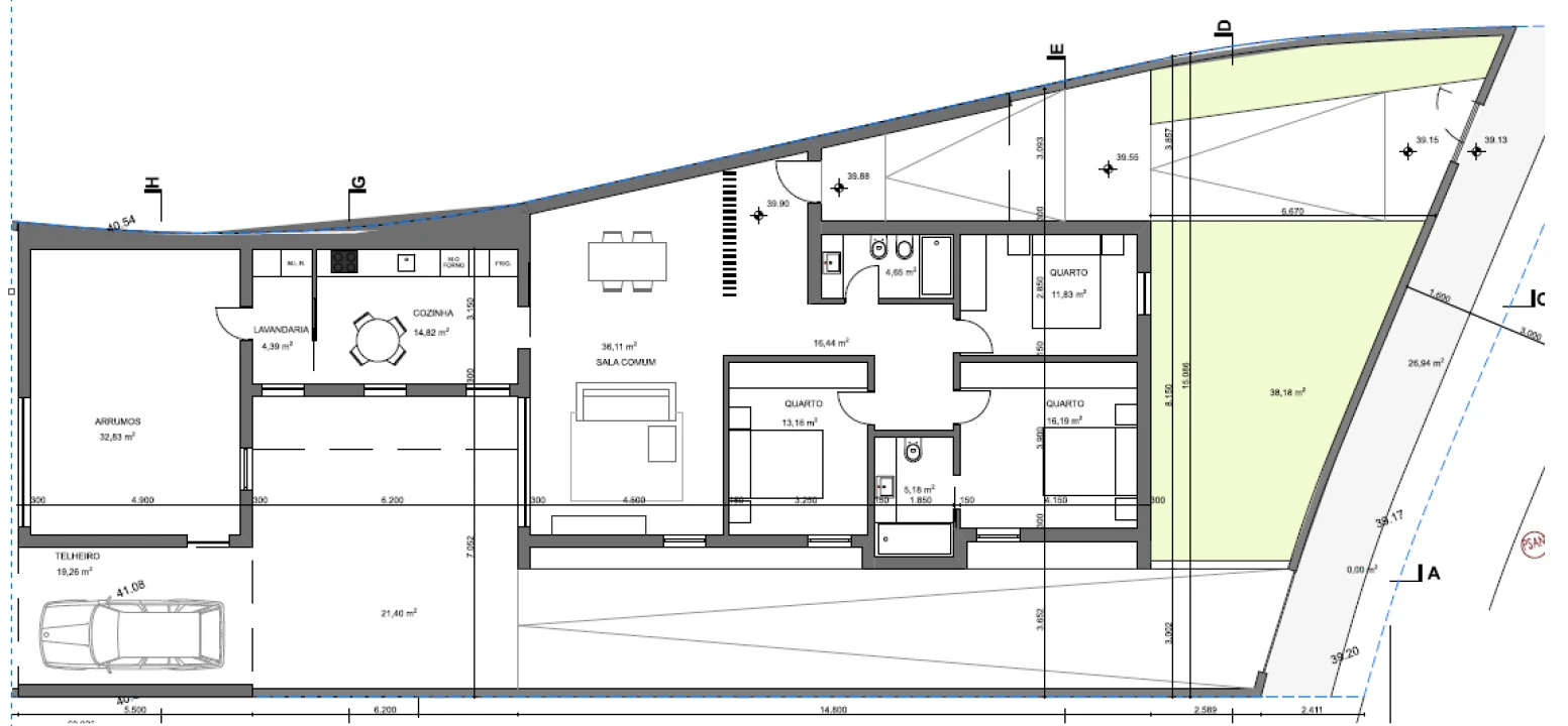
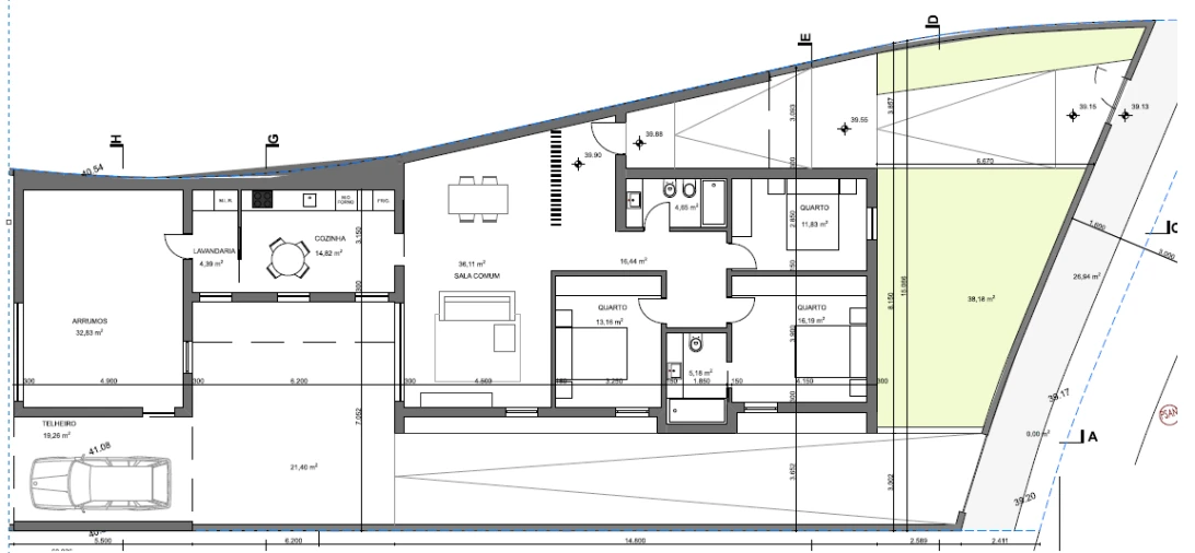
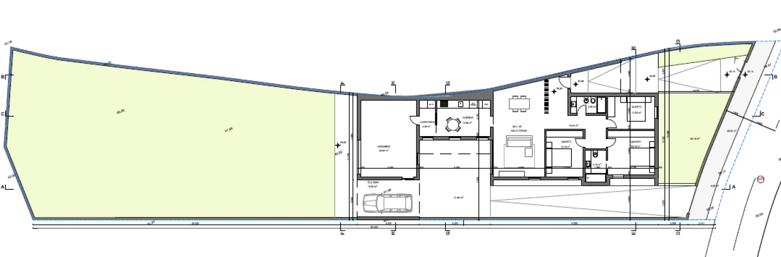
Com uma distribuição prática e funcional, esta moradia dispõe de 3 quartos, sendo 1 deles suite com 21 mts2, uma ampla sala, cozinha equipada com zona de lavandaria e zona de arrumos com áreas bem otimizadas para o seu dia a dia.
A luminosidade é um dos pontos fortes desta moradia, com amplas janelas que enchem todos os espaços de luz natural. A caixilharia em PVC com vidro duplo e corte térmico garante conforto térmico e acústico, complementada por portadas em ripado que asseguram a privacidade necessária.
O cuidado com os detalhes é evidente em cada pormenor, desde os tetos em gesso cartonado, ao revestimento exterior em capoto com sistema ETIC, até à eficiente bomba de calor que contribui para uma excelente eficiência energética.
O acesso à moradia é facilitado por um portão individual controlado por vídeo porteiro ou por um portão automatizado para viaturas.
A localização é outro trunfo desta moradia, a poucos minutos a pé ou de carro, encontra supermercados, farmácias, pastelarias, restaurantes, parques de lazer, hospital privado e uma ampla gama de serviços públicos e privados. Em menos de 5 minutos, tem acesso a creches, escolas, postos de abastecimento e à estação ferroviária.
Ideal para quem procura o equilíbrio entre tranquilidade e proximidade de todos os serviços, esta propriedade oferece o conforto e a privacidade de uma casa moderna, num local calmo e de fácil acesso.
Venha conhecer o seu novo lar com a Casaveiro!
Esta moradia situada a poucos minutos do centro de Oiã e a apenas 20 minutos de Aveiro é a casa ideal para ser o seu lar. Destaca-se pela sua excelente exposição solar e pela luminosidade natural que invade todos os espaços, criando um ambiente acolhedor e confortável.
Com uma distribuição prática e funcional, esta moradia dispõe de 3 quartos, sendo 1 deles suite com 21 mts2, uma ampla sala, cozinha equipada com zona de lavandaria e zona de arrumos com áreas bem otimizadas para o seu dia a dia.
A luminosidade é um dos pontos fortes desta moradia, com amplas janelas que enchem todos os espaços de luz natural. A caixilharia em PVC com vidro duplo e corte térmico garante conforto térmico e acústico, complementada por portadas em ripado que asseguram a privacidade necessária.
O cuidado com os detalhes é evidente em cada pormenor, desde os tetos em gesso cartonado, ao revestimento exterior em capoto com sistema ETIC, até à eficiente bomba de calor que contribui para uma excelente eficiência energética.
O acesso à moradia é facilitado por um portão individual controlado por vídeo porteiro ou por um portão automatizado para viaturas.
A localização é outro trunfo desta moradia, a poucos minutos a pé ou de carro, encontra supermercados, farmácias, pastelarias, restaurantes, parques de lazer, hospital privado e uma ampla gama de serviços públicos e privados. Em menos de 5 minutos, tem acesso a creches, escolas, postos de abastecimento e à estação ferroviária.
Ideal para quem procura o equilíbrio entre tranquilidade e proximidade de todos os serviços, esta propriedade oferece o conforto e a privacidade de uma casa moderna, num local calmo e de fácil acesso.
Venha conhecer o seu novo lar com a Casaveiro!
Localização
Oiã, Oliveira do Bairro, Aveiro
Informação do anúncio
ID do anúncio
1772785
Referência Externa
MD-00689
Atualizado em
26/04/2026 08:32:37
Moradia T3 para Venda em Oiã