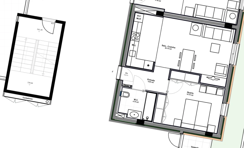
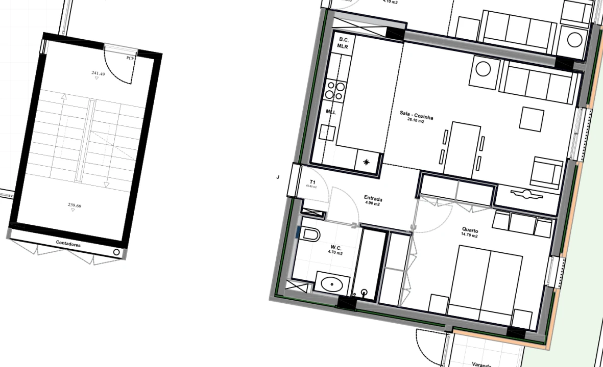
Apartamento T1 para Venda em Azurem
201.400 €
Tipo
Apartamento
Negócio
Venda
Ano de Construção
2025
Quartos
1
Casas de Banho
1
Área Bruta
77 m²
Área Útil
63 m²
Condição
Como novo
Certificado Energético
A
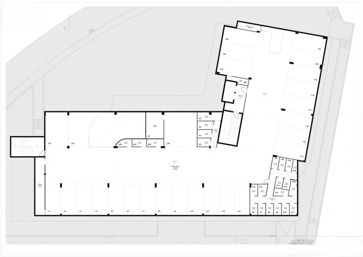
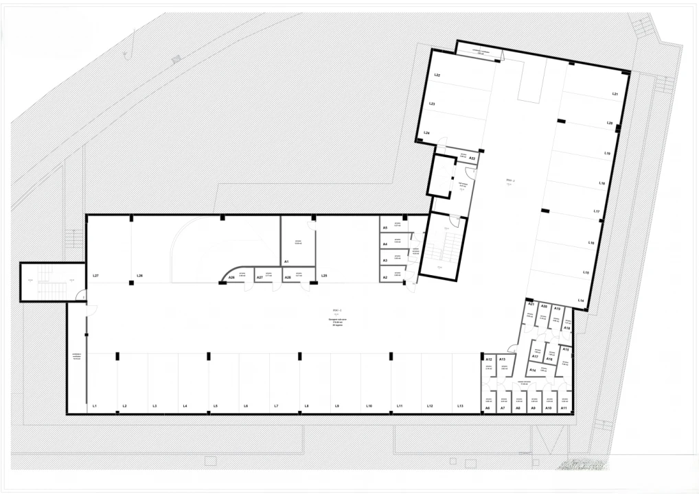
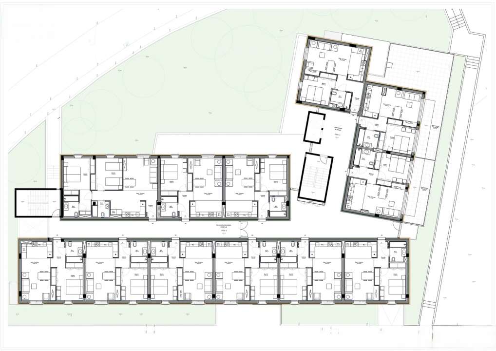
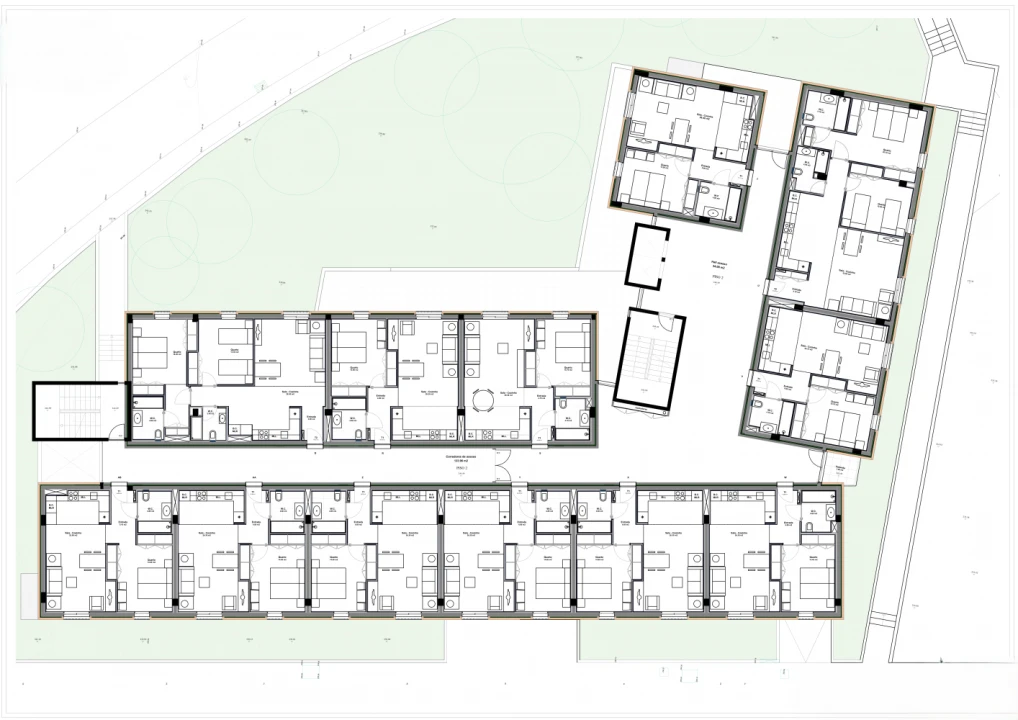
Apartamento T1 junto ao polo universitário com lugar de garagem
Apartamento T1 junto ao polo universitário de Guimarães com lugar de garagem.
Este fantástico imóvel insere-se num novo empreendimento imobiliário situado numa localização privilegiada, junto ao polo da Universidade de Guimarães e a poucos minutos do centro da cidade.
Trata-se de uma excelente oportunidade de investimento, especialmente para arrendamento a estudantes ou profissionais deslocados. O empreendimento encontra-se a apenas 2 minutos a pé do Campus Universitário de Azurém e do mercado tradicional, beneficiando ainda da proximidade ao centro urbano e aos principais acessos de entrada e saída da cidade.
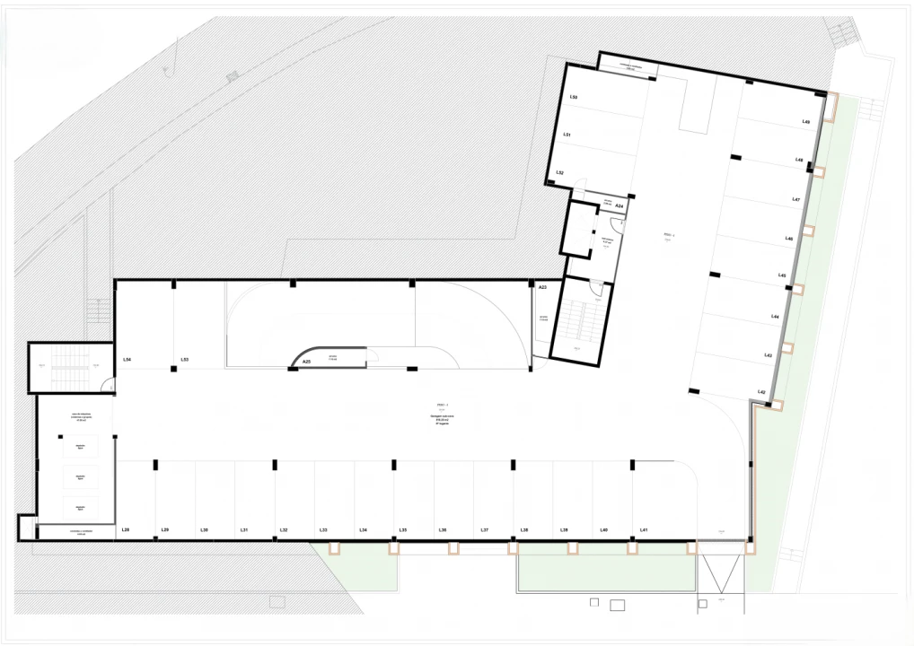
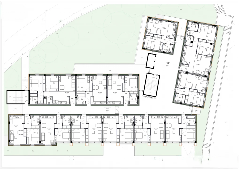
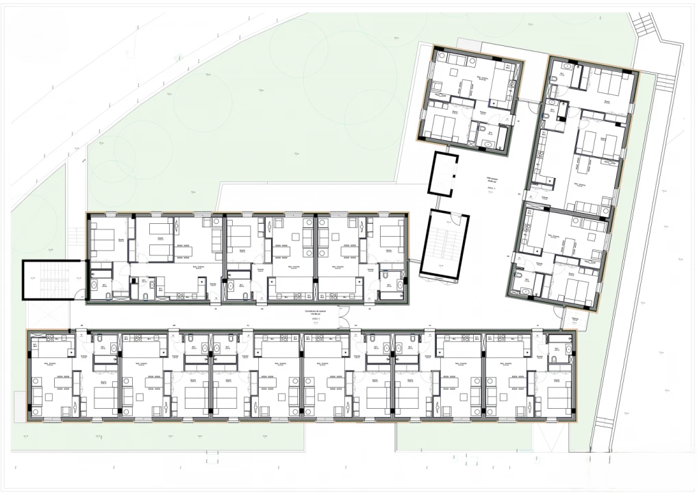
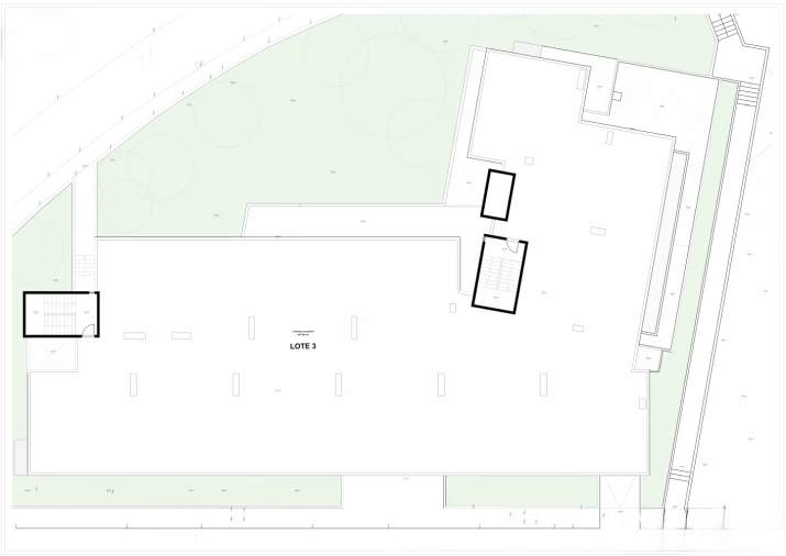
O empreendimento é composto por apartamentos T1 e T2, todos com lugar de garagem. As habitações foram cuidadosamente projetadas para proporcionar conforto e funcionalidade, dispondo de cozinhas totalmente equipadas com placa de indução, forno, micro-ondas, frigorífico combinado, exaustor e máquina de lavar louça. Destacam-se igualmente pelos acabamentos de qualidade superior e pela excelente construção, garantindo elevados níveis de isolamento térmico e acústico.
A Universidade do Minho tem vindo a afirmar-se nos primeiros lugares dos rankings internacionais de prestígio académico, o que tem contribuído para o aumento significativo da procura de alojamento, tanto por estudantes estrangeiros como nacionais, que privilegiam qualidade e proximidade aos campus universitários.
Aliando localização estratégica a comodidade, os apartamentos oferecem soluções habitacionais modernas, confortáveis e práticas, com especial atenção ao detalhe, qualidade dos materiais e eficiência construtiva. Todos os fogos incluem lugar de garagem.
Os imoveis encontram-se prontos a habitar.
Fale connosco para mais informações.
Este fantástico imóvel insere-se num novo empreendimento imobiliário situado numa localização privilegiada, junto ao polo da Universidade de Guimarães e a poucos minutos do centro da cidade.
Trata-se de uma excelente oportunidade de investimento, especialmente para arrendamento a estudantes ou profissionais deslocados. O empreendimento encontra-se a apenas 2 minutos a pé do Campus Universitário de Azurém e do mercado tradicional, beneficiando ainda da proximidade ao centro urbano e aos principais acessos de entrada e saída da cidade.
O empreendimento é composto por apartamentos T1 e T2, todos com lugar de garagem. As habitações foram cuidadosamente projetadas para proporcionar conforto e funcionalidade, dispondo de cozinhas totalmente equipadas com placa de indução, forno, micro-ondas, frigorífico combinado, exaustor e máquina de lavar louça. Destacam-se igualmente pelos acabamentos de qualidade superior e pela excelente construção, garantindo elevados níveis de isolamento térmico e acústico.
A Universidade do Minho tem vindo a afirmar-se nos primeiros lugares dos rankings internacionais de prestígio académico, o que tem contribuído para o aumento significativo da procura de alojamento, tanto por estudantes estrangeiros como nacionais, que privilegiam qualidade e proximidade aos campus universitários.
Aliando localização estratégica a comodidade, os apartamentos oferecem soluções habitacionais modernas, confortáveis e práticas, com especial atenção ao detalhe, qualidade dos materiais e eficiência construtiva. Todos os fogos incluem lugar de garagem.
Os imoveis encontram-se prontos a habitar.
Fale connosco para mais informações.
Localização
Azurem, Guimarães, Braga
Informação do anúncio
ID do anúncio
1772940
Referência Externa
ANT_S_GUI_P1_FJ
Atualizado em
10/04/2026 13:25:39
Anunciante
Chamada para a rede móvel nacional
IM HOME
AMI 26010
Referência do imóvel:
ANT_S_GUI_P1_FJ
Apartamento T1 para Venda em Azurem