Terreno para Venda em Azoia de Cima e Tremês
500.000 €
Tipo
Terreno
Negócio
Venda
Área Bruta
639 m²
Área Útil
511 m²
Condição
Novo
Certificado Energético
Isento
Área do Terreno
7200 m²
Descrição
Apresentamos uma oportunidade única de investimento social e imobiliário, com projeto pronto a iniciar construção e apoios oficiais aprovados.
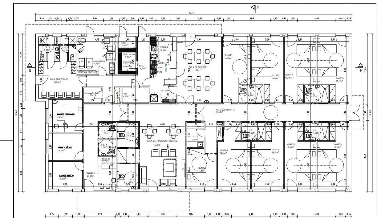
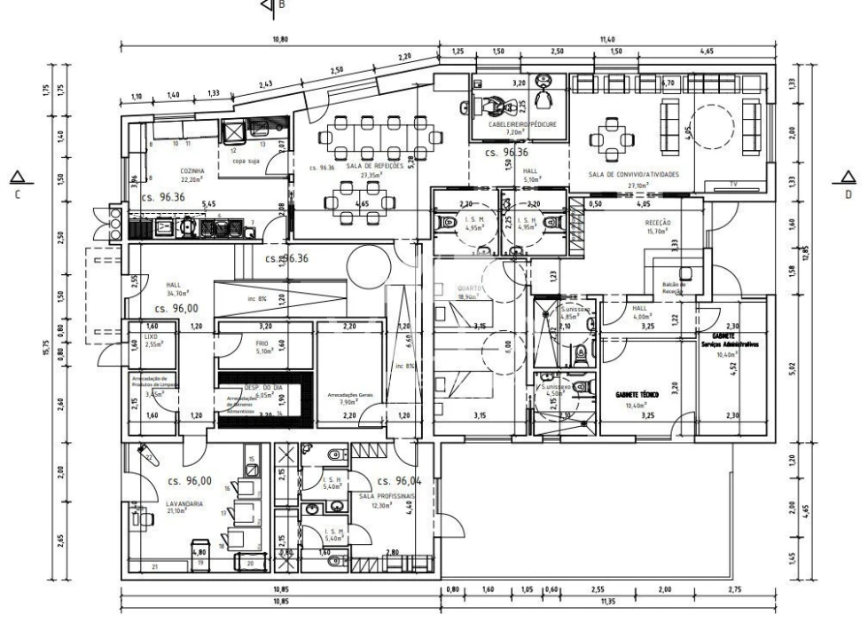
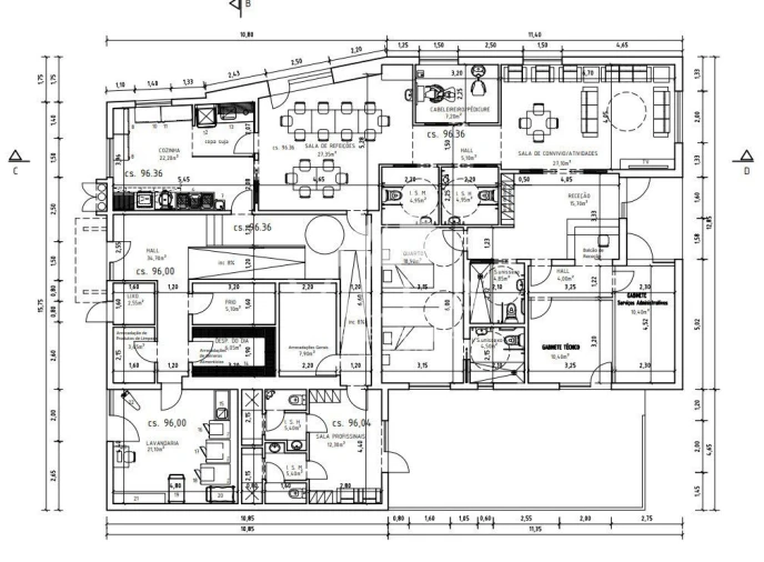
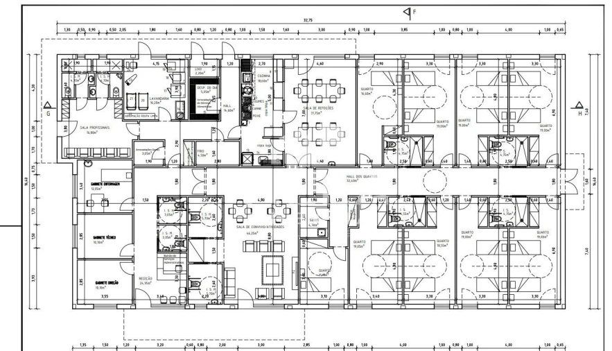
Lote de terreno com 7.200m2, para construção de:
- Residencial para Idosas (ERPI)
- Centro de Dia (CD)
- Serviço de Apoio Domiciliário (SAD)
Destaques do investimento:
- Projeto com licenciamento aprovado
- Arquitetura e plantas finalizadas
- Infraestruturas planeadas para construção imediata
- Localização tranquila, com grande carência de respostas sociais na região
- Apoios e benefícios já atribuídos: Programa Empreende XXI (IEFP) e Via Expresso Investidor (Câmara de Santarém). Estes apoios dão-lhe prioridade no licenciamento, redução de taxas, apoio técnico e linha de financiamento com condições especiais.
Ideal para investidores privados, IPSSs., grupos ligados à saúde, ou promotores imobiliários focados no segmento sénior.
Para mais informações contacte-nos e agende uma reunião. Teremos, todo o gosto em partilhar consigo o Dossier comercial completo que disponibilizamos com a apresentação e analise do investimento.
Conteúdo do dossier:
- Apresentação do projeto final
- Planta do terreno
- Documentação legal
- Termo de aceitação e condições do apoio atribuído pelo IEFP através do programa "Empreende XXI"
- Ofício com a aprovação do apoio emitida pela Câmara Municipal de Santarém, do programa "Via Expresso Investidor"
- Plano de Projeções económicas
- Imagens 3D do exterior
Lote de terreno com 7.200m2, para construção de:
- Residencial para Idosas (ERPI)
- Centro de Dia (CD)
- Serviço de Apoio Domiciliário (SAD)
Destaques do investimento:
- Projeto com licenciamento aprovado
- Arquitetura e plantas finalizadas
- Infraestruturas planeadas para construção imediata
- Localização tranquila, com grande carência de respostas sociais na região
- Apoios e benefícios já atribuídos: Programa Empreende XXI (IEFP) e Via Expresso Investidor (Câmara de Santarém). Estes apoios dão-lhe prioridade no licenciamento, redução de taxas, apoio técnico e linha de financiamento com condições especiais.
Ideal para investidores privados, IPSSs., grupos ligados à saúde, ou promotores imobiliários focados no segmento sénior.
Para mais informações contacte-nos e agende uma reunião. Teremos, todo o gosto em partilhar consigo o Dossier comercial completo que disponibilizamos com a apresentação e analise do investimento.
Conteúdo do dossier:
- Apresentação do projeto final
- Planta do terreno
- Documentação legal
- Termo de aceitação e condições do apoio atribuído pelo IEFP através do programa "Empreende XXI"
- Ofício com a aprovação do apoio emitida pela Câmara Municipal de Santarém, do programa "Via Expresso Investidor"
- Plano de Projeções económicas
- Imagens 3D do exterior
Localização
Azoia de Cima e Tremês, Santarém, Santarém
Informação do anúncio
ID do anúncio
1774718
Referência Externa
00025
Atualizado em
10/04/2026 15:28:06
Anunciante
Chamada para a rede móvel nacional
Villa Urbana Real Estate
AMI 25261
Referência do imóvel:
00025
Terreno para Venda em Azoia de Cima e Tremês