Terreno para Venda em Santo Estêvão
195.000 €
Tipo
Terreno
Negócio
Venda
Ano de Construção
2027
Área Bruta
203 m²
Área Útil
200 m²
Condição
Usado
Certificado Energético
Em execução
Área do Terreno
1018 m²
Terreno com projeto aprovado Santo Estêvão
Vende-se terreno com projeto aprovado na exclusiva Herdade de Vila Nova de Santo Estêvão
Apresentamos-lhe uma oportunidade única de investir ou construir a sua moradia de sonho num dos empreendimentos mais prestigiados da região.
Inserido na Herdade de Santo Estêvão Golf, este terreno alia natureza, tranquilidade e sofisticação, a poucos minutos de Lisboa.
>Área total do lote: 1.018 m²
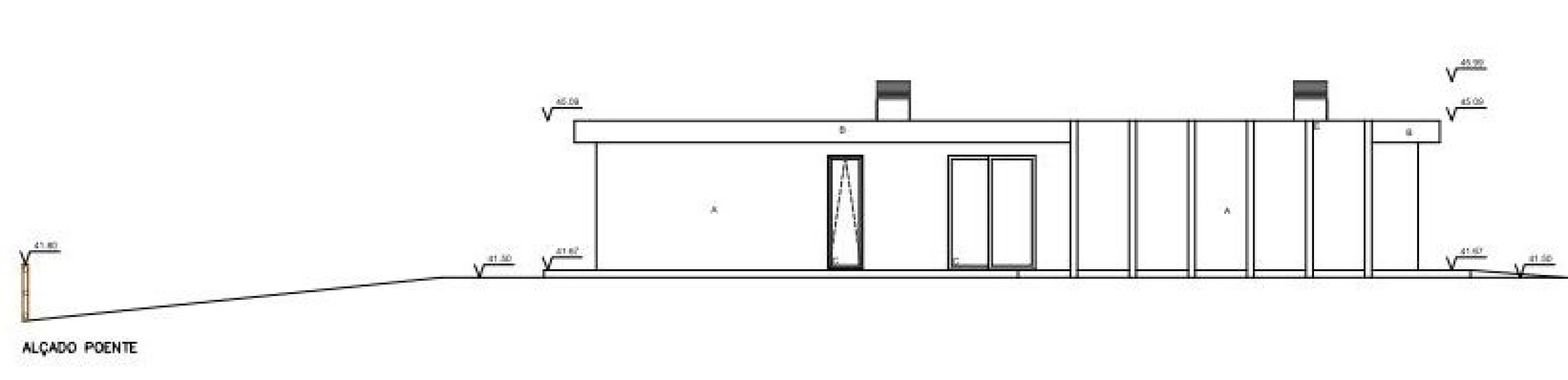
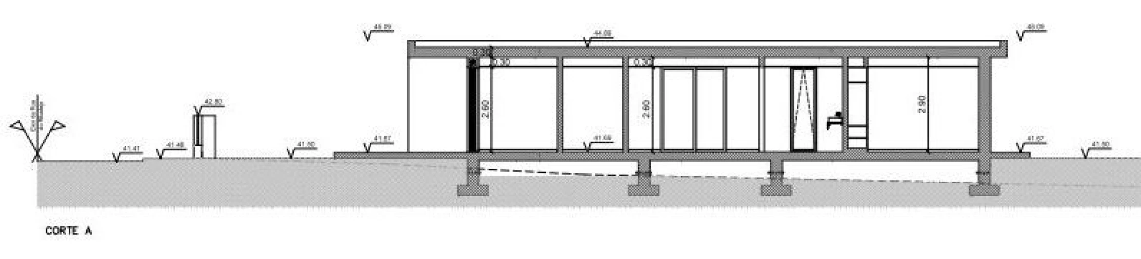
> Moradia T4 projetada com:
203,63 m² de área bruta de construção
Piscina com 44,16 m²
404,88 m² de área impermeável
613,12 m² de área verde permeável
> Distribuição Interior da Moradia
Hall de entrada: 5,50 m²
Sala comum ampla e luminosa: 41,35 m²
Cozinha moderna: 22,25 m²
Escritório: 11,30 m²
Lavandaria: 6,00 m²
Suite 1: 16,80 m² + WC privativo 4,86 m²
Suite 2: 16,80 m² + WC privativo 4,86 m²
Suite 3: 14,80 m² + WC privativo 5,74 m²
> Estacionamento automóvel dentro e fora do lote
> A Herdade de Santo Estêvão é reconhecida pela sua segurança, privacidade e elevada qualidade de vida, a Herdade de Santo Estêvão oferece um estilo de vida exclusivo, ideal para quem valoriza o conforto sem abdicar da proximidade à cidade.
> Aqui poderá desfrutar de: Campos de golfe de referência, Paisagens naturais únicas, Ambiente tranquilo, elegante e reservado, Uma oportunidade a não perder
> Este projeto foi cuidadosamente desenvolvido para proporcionar um ambiente moderno, funcional e confortável, com foco na eficiência energética, no design contemporâneo e no bem-estar familiar.
> Contacte-nos hoje mesmo para mais informações ou para agendar a sua visita.
> Dispomos ainda de parcerias com intermediários de crédito, prontos para o ajudar a encontrar a melhor solução de financiamento.
Caso pretenda adquirir o terreno com o projeto aprovado e incluir a construção da moradia, o valor global do investimento será de 780.000 €.
Apresentamos-lhe uma oportunidade única de investir ou construir a sua moradia de sonho num dos empreendimentos mais prestigiados da região.
Inserido na Herdade de Santo Estêvão Golf, este terreno alia natureza, tranquilidade e sofisticação, a poucos minutos de Lisboa.
>Área total do lote: 1.018 m²
> Moradia T4 projetada com:
203,63 m² de área bruta de construção
Piscina com 44,16 m²
404,88 m² de área impermeável
613,12 m² de área verde permeável
> Distribuição Interior da Moradia
Hall de entrada: 5,50 m²
Sala comum ampla e luminosa: 41,35 m²
Cozinha moderna: 22,25 m²
Escritório: 11,30 m²
Lavandaria: 6,00 m²
Suite 1: 16,80 m² + WC privativo 4,86 m²
Suite 2: 16,80 m² + WC privativo 4,86 m²
Suite 3: 14,80 m² + WC privativo 5,74 m²
> Estacionamento automóvel dentro e fora do lote
> A Herdade de Santo Estêvão é reconhecida pela sua segurança, privacidade e elevada qualidade de vida, a Herdade de Santo Estêvão oferece um estilo de vida exclusivo, ideal para quem valoriza o conforto sem abdicar da proximidade à cidade.
> Aqui poderá desfrutar de: Campos de golfe de referência, Paisagens naturais únicas, Ambiente tranquilo, elegante e reservado, Uma oportunidade a não perder
> Este projeto foi cuidadosamente desenvolvido para proporcionar um ambiente moderno, funcional e confortável, com foco na eficiência energética, no design contemporâneo e no bem-estar familiar.
> Contacte-nos hoje mesmo para mais informações ou para agendar a sua visita.
> Dispomos ainda de parcerias com intermediários de crédito, prontos para o ajudar a encontrar a melhor solução de financiamento.
Caso pretenda adquirir o terreno com o projeto aprovado e incluir a construção da moradia, o valor global do investimento será de 780.000 €.
Localização
Santo Estêvão, Benavente, Santarém
Informação do anúncio
ID do anúncio
1776614
Referência Externa
NS076
Atualizado em
11/04/2026 08:41:49
Terreno para Venda em Santo Estêvão