Terreno para Venda em Odiaxere
2.100.000 €
Tipo
Terreno
Negócio
Venda
Condição
Em projecto
Certificado Energético
Isento
Área do Terreno
5697 m²
Lote para Construção com vistas panorâmicas de mar, em Lagos
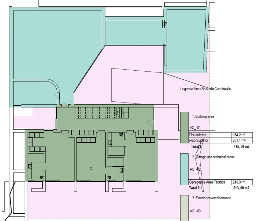
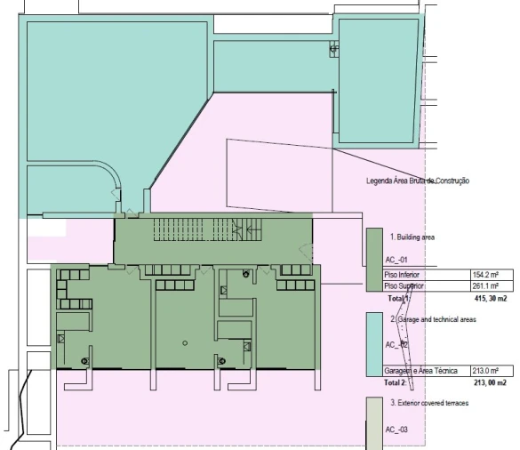
Lote para Construção em Lagos, com vistas panorâmicas de mar, inserido no exclusivo resort Palmares Ocean & Living, com 5.697 m² de área total e possibilidade de edificação de uma moradia de luxo com 420 m² de área bruta. O projeto, já aprovado e assinado pelo arquiteto Mário Martins, privilegia linhas contemporâneas, integração paisagística e aproveitamento da luz natural, com orientação a sul e vistas abertas para o oceano, Meia Praia, estuário de Alvor e Baía de Lagos.
A futura moradia contempla uma sala de estar generosa, com ligação direta a terraços e zonas exteriores, quatro suites, todas com casa de banho privativa e acesso a varandas, cozinha de conceito aberto, garagem privativa e áreas técnicas e de arrumos. Os espaços foram pensados para maximizar conforto, privacidade e luminosidade, beneficiando da topografia elevada do terreno. A arquitetura valoriza a relação interior/exterior, garantindo ambientes fluidos e vistas em todas as divisões principais.
Inserido num resort de 5 estrelas, o lote usufrui de segurança permanente, campo de golfe de 27 buracos, hotel boutique, áreas verdes protegidas e acesso exclusivo. Em walking distance encontra-se o campo de golfe, restaurante e a natureza envolvente. Em menos de 10 minutos de carro está o centro de Lagos, com escolas, supermercados, hospital, marina, praias de referência, comércio local e toda a oferta cultural e de lazer. O aeroporto internacional de Faro situa-se a cerca de 50 minutos.
A envolvente destaca-se pela tranquilidade, privacidade, segurança e baixa densidade de construção. Ideal para quem procura investir numa residência de assinatura, num dos cenários mais preservados e valorizados da costa algarvia, com todas as comodidades e acessibilidades à porta
A futura moradia contempla uma sala de estar generosa, com ligação direta a terraços e zonas exteriores, quatro suites, todas com casa de banho privativa e acesso a varandas, cozinha de conceito aberto, garagem privativa e áreas técnicas e de arrumos. Os espaços foram pensados para maximizar conforto, privacidade e luminosidade, beneficiando da topografia elevada do terreno. A arquitetura valoriza a relação interior/exterior, garantindo ambientes fluidos e vistas em todas as divisões principais.
Inserido num resort de 5 estrelas, o lote usufrui de segurança permanente, campo de golfe de 27 buracos, hotel boutique, áreas verdes protegidas e acesso exclusivo. Em walking distance encontra-se o campo de golfe, restaurante e a natureza envolvente. Em menos de 10 minutos de carro está o centro de Lagos, com escolas, supermercados, hospital, marina, praias de referência, comércio local e toda a oferta cultural e de lazer. O aeroporto internacional de Faro situa-se a cerca de 50 minutos.
A envolvente destaca-se pela tranquilidade, privacidade, segurança e baixa densidade de construção. Ideal para quem procura investir numa residência de assinatura, num dos cenários mais preservados e valorizados da costa algarvia, com todas as comodidades e acessibilidades à porta
Localização
Odiaxere, Lagos, Faro
Informação do anúncio
ID do anúncio
1777336
Referência Externa
35632
Atualizado em
12/04/2026 11:29:42
Anunciante
Chamada para a rede móvel nacional
Castelhana Real Estate
AMI 3497
Referência do imóvel:
35632
Terreno para Venda em Odiaxere