Moradia T3 para Venda em Perelhal
478.000 €
Tipo
Moradia
Negócio
Venda
Ano de Construção
2025
Quartos
3
Casas de Banho
3
Área Útil
179 m²
Garagem
3 lugares
Condição
Como novo
Certificado Energético
A+
Área do Terreno
216 m²
Moradia térrea em Barcelos
Descubra esta encantadora moradia térrea que alia conforto e modernidade para lhe proporcionar um estilo de vida moderno e acolhedor.
Situada numa das zonas mais nobres da freguesia a apenas 10 minutos do centro de Barcelos, a 9 minutos da Praia de Esposende e a 30 mts do aeroporto Francisco Sá Carneiro
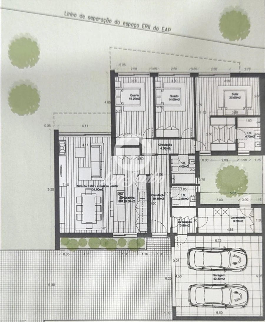
Moradia, Térrea com áreas generosas com exposição solar nascente/poente, inserida num lote de 1584m2 e com um logradouro.
- Garagem para 2 carros e zona de lavandaria
- Espaçosa sala de estar e cozinha em conceito open-space e um fantástico jardim privativo com uma excelente exposição solar, com possibilidade de fazer Piscina.
- Cozinha equipada com placa, forno e exaustor
- Casa de banho de serviço
- Zona dos quartos;
- Dedicado à área privativa, com três quartos, um dos quais é uma suíte, além de mais uma casa de banho completa.
- Com armários embutidos e estores elétricos,
As habitações estão preparadas com: Pré-instalação de ar condicionado, instalação de bomba de calor e
recuperador de calor.
Não perca esta oportunidade marque já sua visita,
E venha visitar!
Siga-nos nas nossas redes sociais!
WEBSITE: https://www.lardesonho.pt/barcelos/
FACEBOOK: https://www.facebook.com/lardesonhobarcelospagina
INSTAGRAM: https://www.instagram.com/lardesonhobarcelos/
YOUTUBE: https://www.youtube.com/@lardesonhobarcelos2733
A história de sucesso da rede imobiliária LardeSonho deve-se a um serviço de excelência, personalizado para cada cliente, marcado por três premissas- SATISFAÇÃO- RECOMENDAÇÃO-FIDELIZAÇÃO.
É a Maior Rede Imobiliária 100% Nacional tendo 24 agências distribuídas por todo o país com mais de 400 Consultores, o que garante uma presença forte junto de potenciais compradores e investidores.
A Rede Imobiliária LardeSonho tem como ferramentas uma equipa de profissionais dinâmicos, motivados, com uma vasta experiência; uma carteira de imóveis aos preços mais competitivos do mercado; uma atitude proactiva que se carateriza por inúmeras iniciativas de marketing, campanhas, eventos publicitários, promovendo e divulgando com sucesso a sua carteira de imóveis em cada localidade onde tem Agência.
Aliados a parcerias com instituições bancárias, gabinetes de arquitetura, empresas de construção, marketing e publicidade, a rede Imobiliária LardeSonho ajuda os seus clientes a encontrar a solução adequada às suas necessidades.
---
Discover this charming single-storey house that combines comfort and modernity to offer you a modern and welcoming lifestyle.
Located in one of the most prestigious areas of the parish, just 10 minutes from the centre of Barcelos, 9 minutes from Esposende Beach and 30 metres from Francisco Sá Carneiro Airport.
Single-storey villa with generous areas facing east/west, set on a 1584 m² plot with a patio.
- Garage for 2 cars and laundry area.
- Spacious living room and open-plan kitchen and a fantastic private garden with excellent sun exposure, with the possibility of building a swimming pool.
- Kitchen equipped with hob, oven and extractor fan.
- Guest bathroom.
- Bedroom area;
- Dedicated to the private area, with three bedrooms, one of which is a suite, plus another full bathroom.
- With built-in wardrobes and electric shutters,
The rooms are prepared with: Pre-installation of air conditioning, installation of heat pump and
heat recovery unit.
Don't miss this opportunity, book your visit now,
And come and visit!
Follow us on our social networks!
WEBSITE: https://www.lardesonho.pt/barcelos/
FACEBOOK: https://www.facebook.com/lardesonhobarcelospagina
INSTAGRAM: https://www.instagram.com/lardesonhobarcelos/
YOUTUBE: https://www.youtube.com/@lardesonhobarcelos2733
The success story of the LardeSonho real estate network is due to a service of excellence, personalised for each client, marked by three premises - SATISFACTION - RECOMMENDATION - RELEASE.
It is the Largest 100% National Real Estate Network with 24 branches throughout the country with more than 400 Consultants, which guarantees a strong presence among potential buyers and investors.
The LardeSonho Real Estate Network has as its tools a team of dynamic, motivated professionals with vast experience; a portfolio of properties at the most competitive prices on the market; a proactive attitude characterised by countless marketing initiatives, campaigns and advertising events, successfully promoting and publicising its property portfolio in every location where it has an agency.
Combined with partnerships with banks, architectural offices, construction, marketing and advertising companies, the LardeSonho Real Estate network helps its clients find the right solution for their needs.
Situada numa das zonas mais nobres da freguesia a apenas 10 minutos do centro de Barcelos, a 9 minutos da Praia de Esposende e a 30 mts do aeroporto Francisco Sá Carneiro
Moradia, Térrea com áreas generosas com exposição solar nascente/poente, inserida num lote de 1584m2 e com um logradouro.
- Garagem para 2 carros e zona de lavandaria
- Espaçosa sala de estar e cozinha em conceito open-space e um fantástico jardim privativo com uma excelente exposição solar, com possibilidade de fazer Piscina.
- Cozinha equipada com placa, forno e exaustor
- Casa de banho de serviço
- Zona dos quartos;
- Dedicado à área privativa, com três quartos, um dos quais é uma suíte, além de mais uma casa de banho completa.
- Com armários embutidos e estores elétricos,
As habitações estão preparadas com: Pré-instalação de ar condicionado, instalação de bomba de calor e
recuperador de calor.
Não perca esta oportunidade marque já sua visita,
E venha visitar!
Siga-nos nas nossas redes sociais!
WEBSITE: https://www.lardesonho.pt/barcelos/
FACEBOOK: https://www.facebook.com/lardesonhobarcelospagina
INSTAGRAM: https://www.instagram.com/lardesonhobarcelos/
YOUTUBE: https://www.youtube.com/@lardesonhobarcelos2733
A história de sucesso da rede imobiliária LardeSonho deve-se a um serviço de excelência, personalizado para cada cliente, marcado por três premissas- SATISFAÇÃO- RECOMENDAÇÃO-FIDELIZAÇÃO.
É a Maior Rede Imobiliária 100% Nacional tendo 24 agências distribuídas por todo o país com mais de 400 Consultores, o que garante uma presença forte junto de potenciais compradores e investidores.
A Rede Imobiliária LardeSonho tem como ferramentas uma equipa de profissionais dinâmicos, motivados, com uma vasta experiência; uma carteira de imóveis aos preços mais competitivos do mercado; uma atitude proactiva que se carateriza por inúmeras iniciativas de marketing, campanhas, eventos publicitários, promovendo e divulgando com sucesso a sua carteira de imóveis em cada localidade onde tem Agência.
Aliados a parcerias com instituições bancárias, gabinetes de arquitetura, empresas de construção, marketing e publicidade, a rede Imobiliária LardeSonho ajuda os seus clientes a encontrar a solução adequada às suas necessidades.
---
Discover this charming single-storey house that combines comfort and modernity to offer you a modern and welcoming lifestyle.
Located in one of the most prestigious areas of the parish, just 10 minutes from the centre of Barcelos, 9 minutes from Esposende Beach and 30 metres from Francisco Sá Carneiro Airport.
Single-storey villa with generous areas facing east/west, set on a 1584 m² plot with a patio.
- Garage for 2 cars and laundry area.
- Spacious living room and open-plan kitchen and a fantastic private garden with excellent sun exposure, with the possibility of building a swimming pool.
- Kitchen equipped with hob, oven and extractor fan.
- Guest bathroom.
- Bedroom area;
- Dedicated to the private area, with three bedrooms, one of which is a suite, plus another full bathroom.
- With built-in wardrobes and electric shutters,
The rooms are prepared with: Pre-installation of air conditioning, installation of heat pump and
heat recovery unit.
Don't miss this opportunity, book your visit now,
And come and visit!
Follow us on our social networks!
WEBSITE: https://www.lardesonho.pt/barcelos/
FACEBOOK: https://www.facebook.com/lardesonhobarcelospagina
INSTAGRAM: https://www.instagram.com/lardesonhobarcelos/
YOUTUBE: https://www.youtube.com/@lardesonhobarcelos2733
The success story of the LardeSonho real estate network is due to a service of excellence, personalised for each client, marked by three premises - SATISFACTION - RECOMMENDATION - RELEASE.
It is the Largest 100% National Real Estate Network with 24 branches throughout the country with more than 400 Consultants, which guarantees a strong presence among potential buyers and investors.
The LardeSonho Real Estate Network has as its tools a team of dynamic, motivated professionals with vast experience; a portfolio of properties at the most competitive prices on the market; a proactive attitude characterised by countless marketing initiatives, campaigns and advertising events, successfully promoting and publicising its property portfolio in every location where it has an agency.
Combined with partnerships with banks, architectural offices, construction, marketing and advertising companies, the LardeSonho Real Estate network helps its clients find the right solution for their needs.
Localização
Perelhal, Barcelos, Braga
Informação do anúncio
ID do anúncio
1778764
Referência Externa
265-M-02030
Atualizado em
26/04/2026 08:04:30
Anunciante
Chamada para a rede fixa nacional
Lardesonho Barcelos
AMI 17319
Referência do imóvel:
265-M-02030
Moradia T3 para Venda em Perelhal
Vídeo