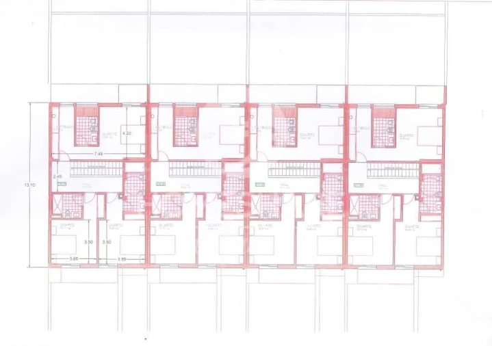
Moradia T3 para Venda em Valongo
584.929 €
Tipo
Moradia
Negócio
Venda
Quartos
3
Casas de Banho
3
Área Bruta
400 m²
Área Útil
340 m²
Condição
Em construção
Certificado Energético
A
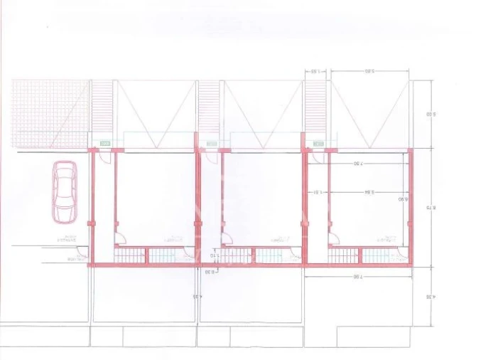
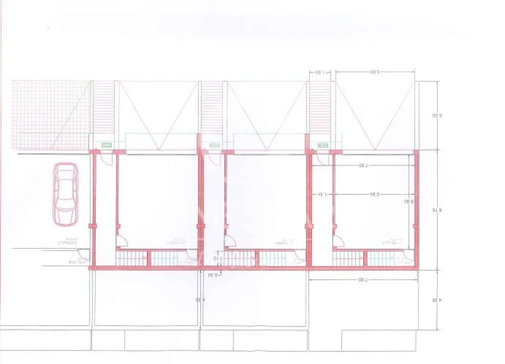
Moradia V3 de 2 frentes em banda - condominio fechado - Valongo
NOVO EMPREENDIMENTO DE 16 MORADIAS UNIFAMILIAR EM CONDOMÍNIO FECHADO.
COM EXCELENTE LOCALIZAÇÃO.
PERTO DE TRANSPORTES PUBLICOS, COMERCIO E AUTO-ESTRADA
Espaço Exterior Comum
Entrada no recinto comum com portão eletrificado;
Iluminação Exterior;
Videoporteiro;
Estacionamento exterior privativo em frente a cada moradia;
2.700 m2 de zona verde privada na retaguarda;
Sala de condomínio com casa de banho privativa e sala técnica com depósito de água com capacidade de fornecimento para 3 dias;
Instalação de Antena comum para os canais terrestres;
Fibra óptica;
Características construtivas e equipamentos individuais
Estrutura em betão armado, vigas e pilares, conforme projeto;
Lajes aligeiradas com vigas e vigotas de cimento e abobadilhas em Leca para evitar ruídos entre pisos;
Paredes em tijolo de Leca de 30cm;
As fachadas exteriores são rebocadas a cimento e posteriormente é aplicado o 'capotto' de 8 cm, conforme projeto;
Caixilharia certificada em PVC 72 mm - oscilobatente com rotura térmica e vidro duplo 'DO CALOR' 4+20+6;
Estores elétricos em alumínio de 2 cm com isolamento térmico e caixa dupla;
Guardas das varandas em vidro laminado;
Tubos de queda de água pluvial em inox;
Videoporteiro;
Porta corta-fogo na garagem;
Portão da garagem eletrificado e com comando;
Terraço e jardim individual (para cada moradia) à retaguarda;
Acabamentos
Aplicação de isolamento térmico e acústico nas lajes e entre paredes e telhado, de acordo com as normas energéticas em vigor;
Iluminação encastrada com leds de baixo consumo em todas as divisões;
Tetos e paredes dos hall, sala e quartos em seral pintado;
Na garagem, chão revestido a mosaico cerâmico e paredes e teto em seral pintado;
Pavimento dos hall, corredores, sala e quartos e escadas em flutuante de 8 mm da marca 'FINSA'cor à escolha do cliente;
Portas interiores, rodapés e guarnições e escadas em MDF hidrófugo;
Puxadores tipo 'Tupai';
Corrimão em madeira nas escadas;
Ripado de madeira vertical nas escadas;
Cozinha
Paredes da cozinha pintadas com tinta de esmalte lavável;
Pavimento da cozinha em mosaico cerâmico à escolha do cliente, mediante modelos pré-definidos pelo construtor;
Armários de cozinha em madeira lacada, cor à escolha do cliente;
Eletrodomésticos da marca Balay com garantia de 5 anos (forno, placa de indução, microondas, exaustor, frigorífico combinado e máquina de lavar loiça);
Bancada da cozinha e espaço da parede entre armários em granito preto angolano;
Casas de Banho
Paredes revestidas a azulejo e pavimento em mosaico à escolha do cliente, mediante modelos pré-definidos pelo construtor;
Loiças sanitárias e torneiras da marca ROCA ou VALADARES;
Móveis com espelho e iluminação da marca ROCA - modelo pré-definido pelo construtor;
Radiador seca-toalhas nas casas de banho;
Misturadoras termoestáticas nos chuveiros da marca'GABI';
Bases de chuveiro de 1m ou 1,20m e respetivos resguardos. Só colocamos banheira e respetivo resguardo a pedido do cliente;
Outros equipamentos
Claraboia panorâmica por cima das escadas interiores da habitação;
Roupeiros embutidos em todos os quartos e no 1 no hall/corredor;
Ventilação elétrica nas casas de banho e na cozinha;
Sistema de aquecimento/arrefecimento por Ar Condicionado;
Bomba de calor de 300L para águas sanitárias;
Paineis fotovoltaicos de 2 kW;
Pré-instalação para carregador de veículos elétricos;
Pré-instalação de vídeo-vigilância;
Pré-instalação de alarme;
Instalação de segurança contra incêndios.
COM EXCELENTE LOCALIZAÇÃO.
PERTO DE TRANSPORTES PUBLICOS, COMERCIO E AUTO-ESTRADA
Espaço Exterior Comum
Entrada no recinto comum com portão eletrificado;
Iluminação Exterior;
Videoporteiro;
Estacionamento exterior privativo em frente a cada moradia;
2.700 m2 de zona verde privada na retaguarda;
Sala de condomínio com casa de banho privativa e sala técnica com depósito de água com capacidade de fornecimento para 3 dias;
Instalação de Antena comum para os canais terrestres;
Fibra óptica;
Características construtivas e equipamentos individuais
Estrutura em betão armado, vigas e pilares, conforme projeto;
Lajes aligeiradas com vigas e vigotas de cimento e abobadilhas em Leca para evitar ruídos entre pisos;
Paredes em tijolo de Leca de 30cm;
As fachadas exteriores são rebocadas a cimento e posteriormente é aplicado o 'capotto' de 8 cm, conforme projeto;
Caixilharia certificada em PVC 72 mm - oscilobatente com rotura térmica e vidro duplo 'DO CALOR' 4+20+6;
Estores elétricos em alumínio de 2 cm com isolamento térmico e caixa dupla;
Guardas das varandas em vidro laminado;
Tubos de queda de água pluvial em inox;
Videoporteiro;
Porta corta-fogo na garagem;
Portão da garagem eletrificado e com comando;
Terraço e jardim individual (para cada moradia) à retaguarda;
Acabamentos
Aplicação de isolamento térmico e acústico nas lajes e entre paredes e telhado, de acordo com as normas energéticas em vigor;
Iluminação encastrada com leds de baixo consumo em todas as divisões;
Tetos e paredes dos hall, sala e quartos em seral pintado;
Na garagem, chão revestido a mosaico cerâmico e paredes e teto em seral pintado;
Pavimento dos hall, corredores, sala e quartos e escadas em flutuante de 8 mm da marca 'FINSA'cor à escolha do cliente;
Portas interiores, rodapés e guarnições e escadas em MDF hidrófugo;
Puxadores tipo 'Tupai';
Corrimão em madeira nas escadas;
Ripado de madeira vertical nas escadas;
Cozinha
Paredes da cozinha pintadas com tinta de esmalte lavável;
Pavimento da cozinha em mosaico cerâmico à escolha do cliente, mediante modelos pré-definidos pelo construtor;
Armários de cozinha em madeira lacada, cor à escolha do cliente;
Eletrodomésticos da marca Balay com garantia de 5 anos (forno, placa de indução, microondas, exaustor, frigorífico combinado e máquina de lavar loiça);
Bancada da cozinha e espaço da parede entre armários em granito preto angolano;
Casas de Banho
Paredes revestidas a azulejo e pavimento em mosaico à escolha do cliente, mediante modelos pré-definidos pelo construtor;
Loiças sanitárias e torneiras da marca ROCA ou VALADARES;
Móveis com espelho e iluminação da marca ROCA - modelo pré-definido pelo construtor;
Radiador seca-toalhas nas casas de banho;
Misturadoras termoestáticas nos chuveiros da marca'GABI';
Bases de chuveiro de 1m ou 1,20m e respetivos resguardos. Só colocamos banheira e respetivo resguardo a pedido do cliente;
Outros equipamentos
Claraboia panorâmica por cima das escadas interiores da habitação;
Roupeiros embutidos em todos os quartos e no 1 no hall/corredor;
Ventilação elétrica nas casas de banho e na cozinha;
Sistema de aquecimento/arrefecimento por Ar Condicionado;
Bomba de calor de 300L para águas sanitárias;
Paineis fotovoltaicos de 2 kW;
Pré-instalação para carregador de veículos elétricos;
Pré-instalação de vídeo-vigilância;
Pré-instalação de alarme;
Instalação de segurança contra incêndios.
Localização
Valongo, Valongo, Porto
Informação do anúncio
ID do anúncio
1779805
Referência Externa
HAB_731
Atualizado em
25/04/2026 13:53:25
Moradia T3 para Venda em Valongo