Apartamento T2 para Venda em Figueiro
198.000 €
Tipo
Apartamento
Negócio
Venda
Quartos
2
Área Bruta
119 m²
Área Útil
77 m²
Condição
Novo
Certificado Energético
A+
Apartamento T2 Venda em Figueiró,Paços de Ferreira
Apartamento T2 no Empreendimento VALE DO PINHEIRO – Figueiró, Paços de Ferreira | Desde 198.000€
Apresentamos este moderno apartamento T2 inserido no empreendimento VALE DO PINHEIRO, localizado em Figueiró, ideal para quem procura conforto, eficiência e qualidade de construção numa zona tranquila.
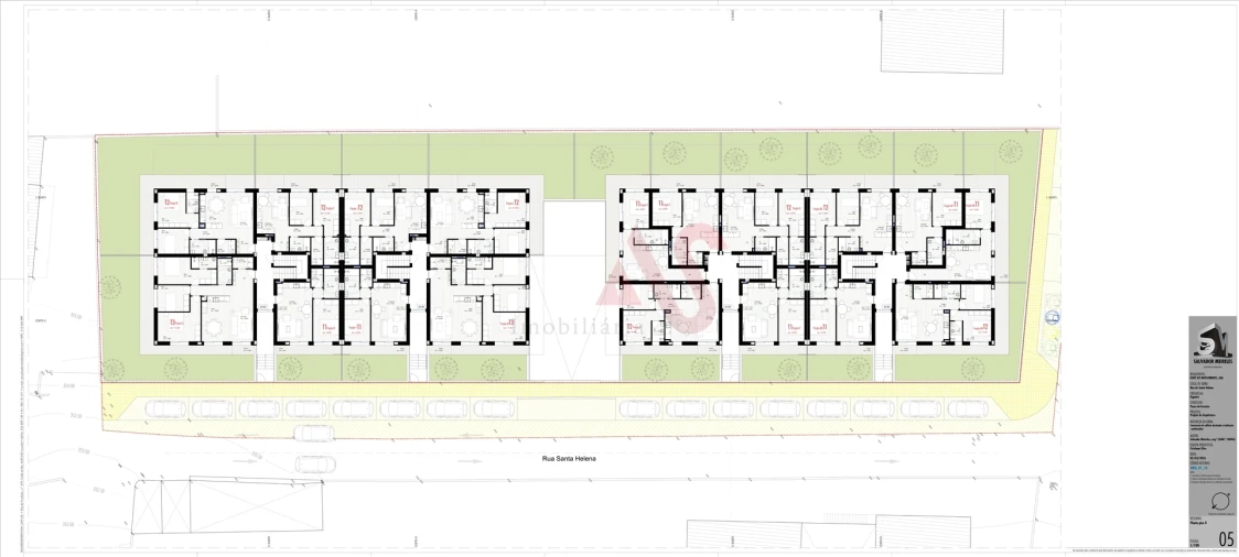
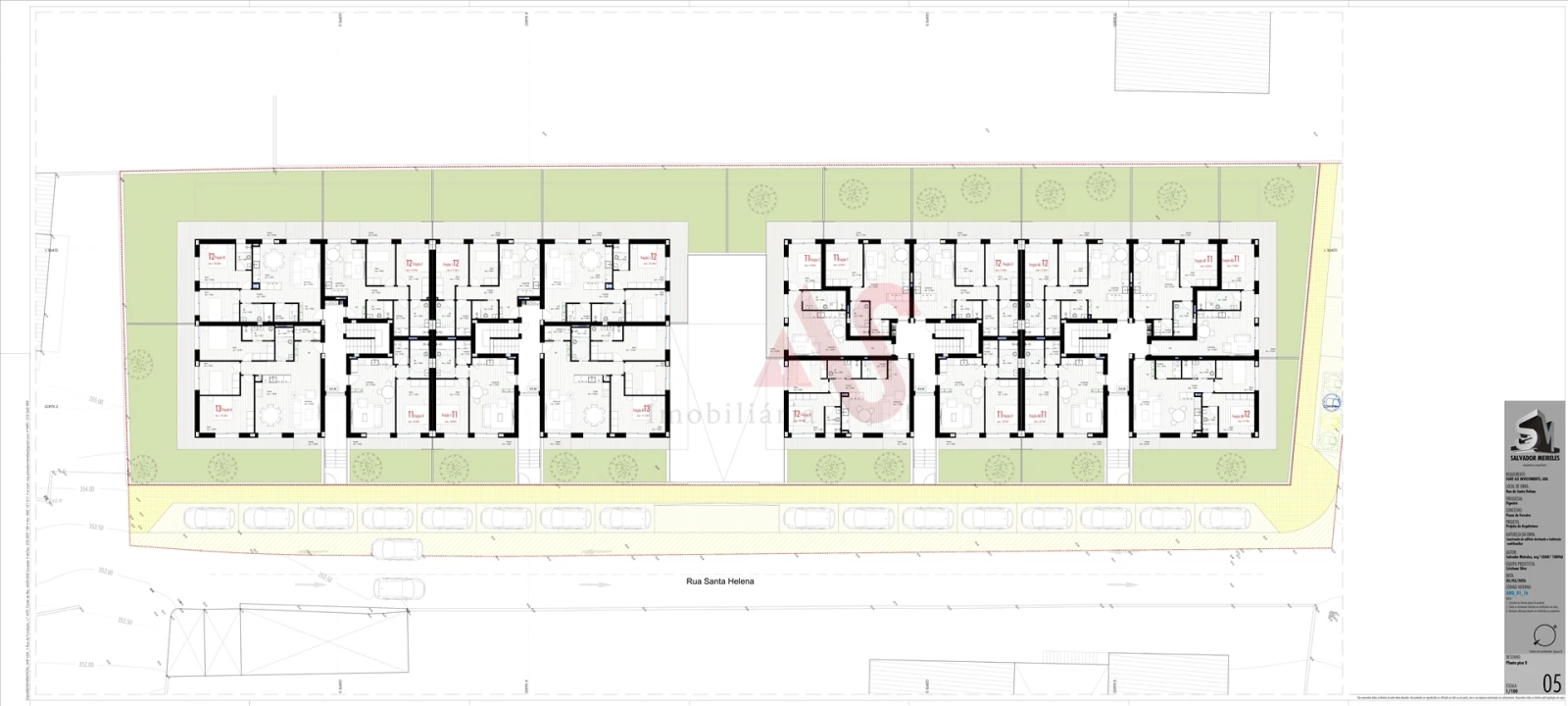
O empreendimento Vale do Pinheiro é composto por um edifício contemporâneo com 16 frações, concebido com foco no conforto, funcionalidade e qualidade de vida, destacando-se pelas boas áreas, excelente luminosidade natural e ligação ao exterior através de varandas.
Com uma área útil de 78 m², este apartamento apresenta uma distribuição prática e harmoniosa, proporcionando um ambiente acolhedor e moderno.
A fração inclui ainda uma varanda com 13,80 m², ideal para momentos de lazer, e dois lugares de garagem com 28,50 m², garantindo total comodidade.
Características principais: Tipologia T2 Área útil: 78 m² Varanda: 13,80 m² 2 Lugares de garagem: 28,50 m² Roupeiros embutidos Excelente exposição solar Ideal para habitação própria ou investimentoDestaques de construção e acabamentos: Fachada com sistema ETICS (isolamento térmico exterior) Caixilharia em alumínio com corte térmico e vidro duplo Estores elétricos Pavimentos vinílicos nas zonas principais e cerâmicos nas zonas húmidas Tetos falsos em gesso cartonado com iluminação LED embutida Paredes com acabamento em gesso projetado e pintura plásticaCozinha e equipamentos: Cozinha equipada com eletrodomésticos encastrados Mobiliário moderno em termolaminado Tampo em quartzo compacto (Compac Luna ou equivalente) Lava-loiça embutido e misturadora cromadaConforto e tecnologia: Bomba de calor para águas quentes sanitárias Pré-instalação de ar condicionado Sistema de videoporteiro Elevado desempenho térmico e acústicoLocalização:
Inserido numa zona residencial calma em Figueiró, com bons acessos e proximidade a comércio, serviços e vias principais, a poucos minutos do centro de Paços de Ferreira.
Prazos de construção: Início da obra: 2026 Conclusão prevista: Final de 2028💰 Preços desde 198.000€
👉 Uma excelente oportunidade no VALE DO PINHEIRO – ideal para viver com conforto ou investir com elevada rentabilidade!
Referência: ASL26007
Por sermos intermediários de crédito devidamente autorizados pelo Banco de Portugal (Reg. 2736) fazemos a gestão de todo o seu processo de financiamento, sempre com as melhores soluções de mercado.
Porquê escolher a AS Imobiliária?
Com mais de 18 anos no ramo imobiliário e milhares de famílias felizes, dispomos de 10 agências estrategicamente localizadas, para o servir com proximidade, corresponder à suas expectativas e ajudá-lo a adquirir a sua casa de sonho. Compromisso, Competência e Confiança são os nossos valores que entregamos aos nossos Clientes na hora de comprar, arrendar ou vender o seu imóvel.
A nossa prioridade é a sua Felicidade!
Na AS Imobiliária somos apaixonados por vender casas!
Especialistas imobiliários em Vizela ; Guimarães ; Felgueiras ; Lousada ; Santo Tirso ; Porto ; Braga ; Trofa; Lisboa ; Fafe
Apresentamos este moderno apartamento T2 inserido no empreendimento VALE DO PINHEIRO, localizado em Figueiró, ideal para quem procura conforto, eficiência e qualidade de construção numa zona tranquila.
O empreendimento Vale do Pinheiro é composto por um edifício contemporâneo com 16 frações, concebido com foco no conforto, funcionalidade e qualidade de vida, destacando-se pelas boas áreas, excelente luminosidade natural e ligação ao exterior através de varandas.
Com uma área útil de 78 m², este apartamento apresenta uma distribuição prática e harmoniosa, proporcionando um ambiente acolhedor e moderno.
A fração inclui ainda uma varanda com 13,80 m², ideal para momentos de lazer, e dois lugares de garagem com 28,50 m², garantindo total comodidade.
Características principais: Tipologia T2 Área útil: 78 m² Varanda: 13,80 m² 2 Lugares de garagem: 28,50 m² Roupeiros embutidos Excelente exposição solar Ideal para habitação própria ou investimentoDestaques de construção e acabamentos: Fachada com sistema ETICS (isolamento térmico exterior) Caixilharia em alumínio com corte térmico e vidro duplo Estores elétricos Pavimentos vinílicos nas zonas principais e cerâmicos nas zonas húmidas Tetos falsos em gesso cartonado com iluminação LED embutida Paredes com acabamento em gesso projetado e pintura plásticaCozinha e equipamentos: Cozinha equipada com eletrodomésticos encastrados Mobiliário moderno em termolaminado Tampo em quartzo compacto (Compac Luna ou equivalente) Lava-loiça embutido e misturadora cromadaConforto e tecnologia: Bomba de calor para águas quentes sanitárias Pré-instalação de ar condicionado Sistema de videoporteiro Elevado desempenho térmico e acústicoLocalização:
Inserido numa zona residencial calma em Figueiró, com bons acessos e proximidade a comércio, serviços e vias principais, a poucos minutos do centro de Paços de Ferreira.
Prazos de construção: Início da obra: 2026 Conclusão prevista: Final de 2028💰 Preços desde 198.000€
👉 Uma excelente oportunidade no VALE DO PINHEIRO – ideal para viver com conforto ou investir com elevada rentabilidade!
Referência: ASL26007
Por sermos intermediários de crédito devidamente autorizados pelo Banco de Portugal (Reg. 2736) fazemos a gestão de todo o seu processo de financiamento, sempre com as melhores soluções de mercado.
Porquê escolher a AS Imobiliária?
Com mais de 18 anos no ramo imobiliário e milhares de famílias felizes, dispomos de 10 agências estrategicamente localizadas, para o servir com proximidade, corresponder à suas expectativas e ajudá-lo a adquirir a sua casa de sonho. Compromisso, Competência e Confiança são os nossos valores que entregamos aos nossos Clientes na hora de comprar, arrendar ou vender o seu imóvel.
A nossa prioridade é a sua Felicidade!
Na AS Imobiliária somos apaixonados por vender casas!
Especialistas imobiliários em Vizela ; Guimarães ; Felgueiras ; Lousada ; Santo Tirso ; Porto ; Braga ; Trofa; Lisboa ; Fafe
Localização
Figueiro, Paços de Ferreira, Porto
Informação do anúncio
ID do anúncio
1784252
Referência Externa
ASL26007
Atualizado em
22/04/2026 02:06:07
Anunciante
Chamada para a rede fixa nacional
AS Imobiliária
AMI 13249
Referência do imóvel:
ASL26007
Apartamento T2 para Venda em Figueiro