Terreno para Venda em São Mamede de Infesta e Senhora da Hora
1.220.000 €
Tipo
Terreno
Negócio
Venda
Área do Terreno
1375 m²
Terreno para Construção 5 moradias - Loteamento Aprovado - Senhora da Hora
Terreno para Construção - 5 lotes para construção de moradias - Oportunidade para Investidores e Construtores
Descrição do Projeto
Apresentamos uma oportunidade imperdível na Senhora da Hora: um terreno com 1.375m², distribuído em 5 lotes, todos projetados para moradias de tipologia T4. As áreas totais das moradias variam entre 345m² e 391m², cada uma com um jardim voltado a sul, garantindo uma excelente exposição solar.
Características das Moradias
Cada moradia é composta por cave, rés-do-chão e primeiro andar, proporcionando um layout funcional e espaçoso. As propriedades incluem:
Cave: Garagem para 2 veículos, espaço multifuncional ideal para área de lazer ou para arrumos
Rés-do-chão: Sala de estar e jantar amplas, cozinha moderna e funcional, escritório e uma casa de banho.
Primeiro Andar: Quatro quartos projetados para maximizar conforto e privacidade, sendo que cada casa possui, no mínimo, 2 suítes
Espaço Exterior: Jardins voltados a sul, perfeitos para atividades ao ar livre, com a possibilidade de instalação de piscina (mediante aprovação).
Localização Privilegiada
Nas imediações, encontra-se uma variedade de comércio local, incluindo supermercados, farmácias e restaurantes, que garantem conveniência e praticidade no dia a dia. Para além disso, o NorteShopping, um dos maiores centros comerciais da região, fica a poucos minutos, oferecendo uma vasta gama de lojas, serviços e opções de entretenimento.
A apenas 3 km das praias de Matosinhos e Leça da Palmeira
No que diz respeito à educação, a zona conta com escolas de qualidade, tornando-a uma escolha ideal para famílias. A acessibilidade é outro ponto forte deste projeto, com uma estação de metro situada a apenas 500 metros, facilitando o deslocamento para outras áreas da cidade e tornando o transporte público uma opção viável e rápida.
Adicionalmente, o aeroporto encontra-se a apenas 6,5 km de distância, o que é uma mais-valia para quem viaja com frequência. O acesso facilitado à A4 e às principais vias de comunicação torna esta localização ainda mais atrativa, permitindo uma ligação rápida e eficiente a outras cidades e regiões.
Documentação e Infraestruturas
O projeto de arquitetura e especialidades, juntamente com o mapa de quantidades, já foi aprovado pelas entidades competentes, proporcionando uma transição tranquila para a fase de construção.
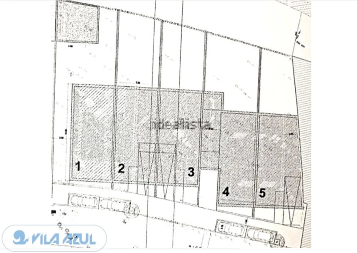
O terreno está dividido em 5 lotes, com passeios, infraestruturas e iluminação pública já implementados, prontos para a construção de moradias modernas e funcionais.
Detalhes dos Lotes:
Lote1 - 304,7m2 área de lote/ 230,4m2 área de construção/ 391,5m2 de área total de construção - 10,20 metros de frente
Lote2 - 211,7m2 área de lote/ 230,4m2 área de construção/ 345,6m2 de área total de construção - 7,20 metros de frente
Lote3 - 210,3m2 área de lote/ 230,4m2 área de construção/ 345,6m2 de área total de construção - 7,30 metros de frente
Lote4 - 266,9m2 área de lote/ 258m2 área de construção/ 356,55m2 de área total de construção - 9,30 metros de frente
Lote5 - 218,6m2 área de lote/ 255,1m2 área de construção/ 382,65m2 de área total de construção - 8,45 metros de frente
Este projeto representa uma excelente oportunidade para investidores e construtores que buscam atender à demanda por habitação de alta qualidade em uma localização estratégica. Com toda a documentação em ordem e aprovações já obtidas, o desenvolvimento pode ser iniciado de imediato, acelerando o retorno sobre o investimento.
Existe também a possibilidade de venda dos lotes de forma individual, adaptando-se às necessidades do mercado.
Para mais informações contacte
Helena Mendes
962878342
Vila Azul Imobiliária
Descrição do Projeto
Apresentamos uma oportunidade imperdível na Senhora da Hora: um terreno com 1.375m², distribuído em 5 lotes, todos projetados para moradias de tipologia T4. As áreas totais das moradias variam entre 345m² e 391m², cada uma com um jardim voltado a sul, garantindo uma excelente exposição solar.
Características das Moradias
Cada moradia é composta por cave, rés-do-chão e primeiro andar, proporcionando um layout funcional e espaçoso. As propriedades incluem:
Cave: Garagem para 2 veículos, espaço multifuncional ideal para área de lazer ou para arrumos
Rés-do-chão: Sala de estar e jantar amplas, cozinha moderna e funcional, escritório e uma casa de banho.
Primeiro Andar: Quatro quartos projetados para maximizar conforto e privacidade, sendo que cada casa possui, no mínimo, 2 suítes
Espaço Exterior: Jardins voltados a sul, perfeitos para atividades ao ar livre, com a possibilidade de instalação de piscina (mediante aprovação).
Localização Privilegiada
Nas imediações, encontra-se uma variedade de comércio local, incluindo supermercados, farmácias e restaurantes, que garantem conveniência e praticidade no dia a dia. Para além disso, o NorteShopping, um dos maiores centros comerciais da região, fica a poucos minutos, oferecendo uma vasta gama de lojas, serviços e opções de entretenimento.
A apenas 3 km das praias de Matosinhos e Leça da Palmeira
No que diz respeito à educação, a zona conta com escolas de qualidade, tornando-a uma escolha ideal para famílias. A acessibilidade é outro ponto forte deste projeto, com uma estação de metro situada a apenas 500 metros, facilitando o deslocamento para outras áreas da cidade e tornando o transporte público uma opção viável e rápida.
Adicionalmente, o aeroporto encontra-se a apenas 6,5 km de distância, o que é uma mais-valia para quem viaja com frequência. O acesso facilitado à A4 e às principais vias de comunicação torna esta localização ainda mais atrativa, permitindo uma ligação rápida e eficiente a outras cidades e regiões.
Documentação e Infraestruturas
O projeto de arquitetura e especialidades, juntamente com o mapa de quantidades, já foi aprovado pelas entidades competentes, proporcionando uma transição tranquila para a fase de construção.
O terreno está dividido em 5 lotes, com passeios, infraestruturas e iluminação pública já implementados, prontos para a construção de moradias modernas e funcionais.
Detalhes dos Lotes:
Lote1 - 304,7m2 área de lote/ 230,4m2 área de construção/ 391,5m2 de área total de construção - 10,20 metros de frente
Lote2 - 211,7m2 área de lote/ 230,4m2 área de construção/ 345,6m2 de área total de construção - 7,20 metros de frente
Lote3 - 210,3m2 área de lote/ 230,4m2 área de construção/ 345,6m2 de área total de construção - 7,30 metros de frente
Lote4 - 266,9m2 área de lote/ 258m2 área de construção/ 356,55m2 de área total de construção - 9,30 metros de frente
Lote5 - 218,6m2 área de lote/ 255,1m2 área de construção/ 382,65m2 de área total de construção - 8,45 metros de frente
Este projeto representa uma excelente oportunidade para investidores e construtores que buscam atender à demanda por habitação de alta qualidade em uma localização estratégica. Com toda a documentação em ordem e aprovações já obtidas, o desenvolvimento pode ser iniciado de imediato, acelerando o retorno sobre o investimento.
Existe também a possibilidade de venda dos lotes de forma individual, adaptando-se às necessidades do mercado.
Para mais informações contacte
Helena Mendes
962878342
Vila Azul Imobiliária
Localização
São Mamede de Infesta e Senhora da Hora, Matosinhos, Porto
Informação do anúncio
ID do anúncio
1787465
Referência Externa
12607024
Atualizado em
26/04/2026 08:06:08
Anunciante
Chamada para a rede fixa nacional
Grande Cruzada
AMI 12024
Referência do imóvel:
12607024
Terreno para Venda em São Mamede de Infesta e Senhora da Hora