Voltar
Moradia T3 para Venda em Marinha Grande Foto 1
Moradia T3 para Venda em Marinha Grande Foto 2
Moradia T3 para Venda em Marinha Grande Foto 3
Moradia T3 para Venda em Marinha Grande Foto 4
Moradia T3 para Venda em Marinha Grande Foto 5

Moradia T3 para Venda em Marinha Grande

315.000 €

Tipo
Moradia
Negócio
Venda
Quartos
3
Área Útil
128 m²
Condição
Novo
Certificado Energético
A+
Área do Terreno
913 m²

Moradia T3 Venda em Marinha Grande,Marinha Grande

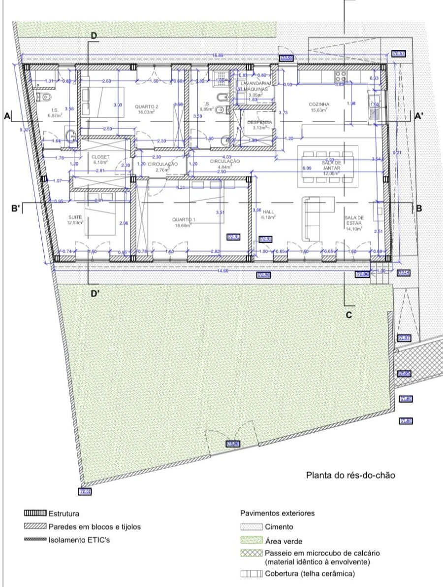
Pretende uma moradia completamente reconstruída que alie a modernidade ao charme do antigamente?! Então não deixe escapar esta moradia?! Localizada num lote de 913m2, esta moradia com uma área útil de 128,9m2, esta moradia poderá ser a sua próxima casa. A moradia térrea tem um amplo espaço de 52m2 onde se organiza uma cozinha e uma sala equipada com lareira. Os quartos, com áreas de 16m2 e 18 m2, permitem disfrutar do seu descanso tranquilamente. Aos quartos junta-se uma suite de 25m2 composta por um espaço de closet, casa de banho com duche e um quarto. A moradia fica completa com uma casa de banho com duche, lavandaria e despensa. No exterior, tem um espaçoso jardim para relaxar, um espaço com churrasqueira e um espaço para destinado a parque coberto de 2 carros. Um lar que acolhe, um espaço que inspira, um futuro que começa aqui. Esta moradia T3 de arquitetura moderna combina conforto, funcionalidade e uma tranquilidade que se encaixa no ritmo do quotidiano. O interior foi pensado ao detalhe: uma sala e cozinha em open space luminosas criam um ambiente moderno e envolvente, complementado por três quartos amplos, incluindo uma suíte com closet. Dispõe ainda de casa de banho com base de duche, lavandaria e despensa. Entre os vários confortos adicionais, destacam-se as pré-instalações de ar condicionado e aquecimento central, estores elétricos, janelas em PVC, vidros duplos e portão automático. Esta moradia situada numa zona serena oferece a proximidade perfeita a serviços, escolas, comércio e às belas praias da região. Um equilíbrio natural entre praticidade e bem-estar. Agende a sua visita e descubra o lugar onde os seus próximos capítulos podem começar. O termino da construção da moradia está prevista para o agosto/2026, pelo que ainda existe possibilidade de adaptações ao gosto do comprador.

Localização

Marinha Grande, Marinha Grande, Leiria

Informação do anúncio

ID do anúncio 1789397
Referência Externa DSFIGFGFVAR54
Atualizado em 19/04/2026 02:26:17
DS FIGUEIRA DA FOZ AMI 14942
Referência do imóvel: DSFIGFGFVAR54
Phone
Chamada para a rede fixa nacional
DS FIGUEIRA DA FOZ AMI 14942
Referência do imóvel: DSFIGFGFVAR54
Phone
Chamada para a rede fixa nacional
1 / 9
Moradia T3 para Venda em Marinha Grande Foto 1
Moradia T3 para Venda em Marinha Grande Foto 2
Moradia T3 para Venda em Marinha Grande Foto 3
Moradia T3 para Venda em Marinha Grande Foto 4
Moradia T3 para Venda em Marinha Grande Foto 5
Moradia T3 para Venda em Marinha Grande Foto 6
Moradia T3 para Venda em Marinha Grande Foto 7
Moradia T3 para Venda em Marinha Grande Foto 8
Moradia T3 para Venda em Marinha Grande Foto 9
Clicky