Voltar
Terreno para Venda em Quarteira Foto 1
Terreno para Venda em Quarteira Foto 2
Terreno para Venda em Quarteira Foto 3
Terreno para Venda em Quarteira Foto 4
Terreno para Venda em Quarteira Foto 5

Terreno para Venda em Quarteira

5.980.000 €

Tipo
Terreno
Negócio
Venda
Área Bruta
5007 m²
Condição
Usado
Certificado Energético
Isento
Área do Terreno
1500 m²

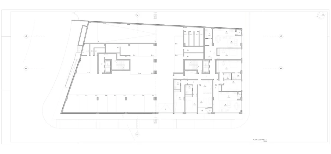
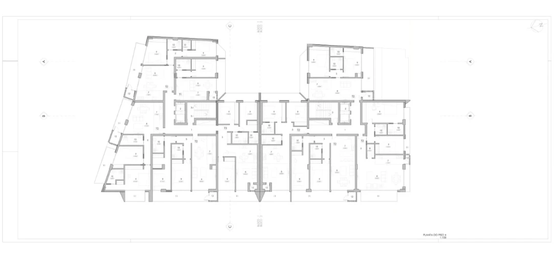
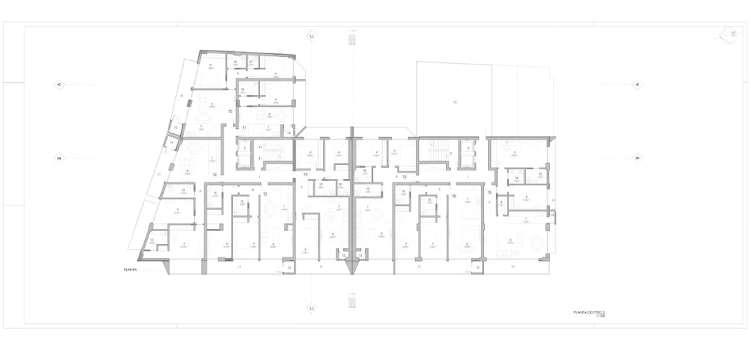
Quarteira - Terreno urbano permite a construção de 46 apartamentos

Venda | Terreno urbano | 1.500 m² | Área de construção 5.006,75 m² | 46 apartamentos | Quarteira

Excelente lote de terreno urbano destinado a habitação coletiva, situado no centro de Quarteira, a curta distância da praia.

Com uma área total de 1.500 m², este lote permite a construção de 46 apartamentos, distribuídos por dois blocos, com uma área bruta de construção de 5.006,75 m².

O Bloco 1 contempla 6 apartamentos T1, 14 apartamentos T2 e 5 apartamentos T3.

O Bloco 2 inclui 1 apartamento T1, 18 apartamentos T2 e 2 apartamentos T3.

O terreno dispõe atualmente de um PIP (Pedido de Informação Prévia) e será vendido com projeto aprovado para a construção dos 46 apartamentos.

O projeto prevê 6 pisos acima do solo e 2 caves, incluindo 82 lugares de estacionamento para viaturas ligeiras (74 interiores e 8 exteriores) e 33 arrecadações.

Trata-se de uma excelente oportunidade de investimento, com uma localização privilegiada.

Localização:

Situado em Quarteira, junto a Vilamoura e próximo de Vale do Lobo, no concelho de Loulé.

Localiza-se no centro da cidade, perto de restaurantes, bares, comércio e supermercados, e a apenas 5 minutos a pé da praia e do calçadão de Quarteira.

A 20 minutos do Aeroporto de Faro, a cerca de 2 horas de Lisboa e a 1 hora das praias da costa alentejana.

Localização

Quarteira, Loulé, Faro

Informação do anúncio

ID do anúncio 1789844
Referência Externa TE1426NS
Atualizado em 26/04/2026 01:48:21
CLUTTONS Algarve AMI 19669
Referência do imóvel: TE1426NS
Phone
Chamada para a rede fixa nacional
CLUTTONS Algarve AMI 19669
Referência do imóvel: TE1426NS
Phone
Chamada para a rede fixa nacional
1 / 15
Terreno para Venda em Quarteira Foto 1
Terreno para Venda em Quarteira Foto 2
Terreno para Venda em Quarteira Foto 3
Terreno para Venda em Quarteira Foto 4
Terreno para Venda em Quarteira Foto 5
Terreno para Venda em Quarteira Foto 6
Terreno para Venda em Quarteira Foto 7
Terreno para Venda em Quarteira Foto 8
Terreno para Venda em Quarteira Foto 9
Terreno para Venda em Quarteira Foto 10
Terreno para Venda em Quarteira Foto 11
Terreno para Venda em Quarteira Foto 12
Terreno para Venda em Quarteira Foto 13
Terreno para Venda em Quarteira Foto 14
Terreno para Venda em Quarteira Foto 15
Planta 1 / 12
Terreno para Venda em Quarteira Planta 1
Terreno para Venda em Quarteira Planta 2
Terreno para Venda em Quarteira Planta 3
Terreno para Venda em Quarteira Planta 4
Terreno para Venda em Quarteira Planta 5
Terreno para Venda em Quarteira Planta 6
Terreno para Venda em Quarteira Planta 7
Terreno para Venda em Quarteira Planta 8
Terreno para Venda em Quarteira Planta 9
Terreno para Venda em Quarteira Planta 10
Terreno para Venda em Quarteira Planta 11
Terreno para Venda em Quarteira Planta 12
Clicky