Terreno Agricola ou Rústico para Venda em Sado
2.780.000 €
Tipo
Terreno Agricola ou Rústico
Negócio
Venda
Área do Terreno
68440 m²
Terreno Industrial. Porto Setúbal. Próximo redes rodoviárias e ferroviárias, saídas norte
OFERTA ATO ÚNICO ESCRITURA E REGISTOS. CONSULTE CONDIÇÕES. !
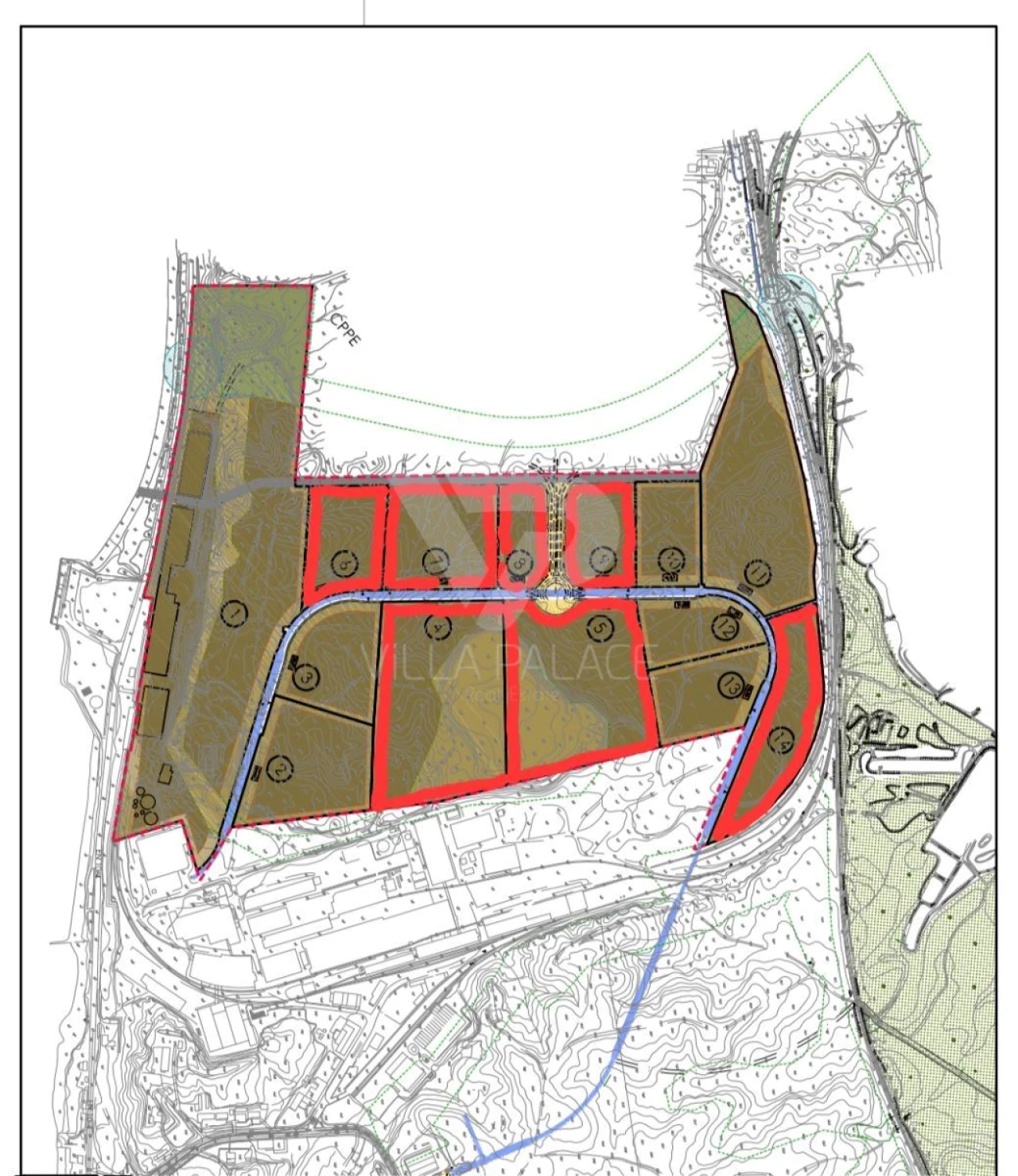
Os vários lotes estão localizados no Parque Industrial da Península de Setúbal, na Herdade das Praias.
O imóvel (LOTE 5) insere-se numa zona industrial perto da Central Termoelétrica de Setúbal, caracterizada pela presença de armazéns e indústria, nomeadamente algumas atividades industriais de grande dimensão, onde se destaca a Alstom, Portucel, Setenave, Porto de Setúbal e uma envolvente mais distante diversificada, contando com áreas residenciais nas Praias Sado, Manteigadas e o Politécnico de Setúbal.
A rede viária garante uma grande proximidade aos eixos de circulação local, regional e nacional, encontrando-se igualmente próxima da via-férrea.
Dadas as características e implantação de indústrias, a zona é ponto de passagem de veículos ligeiros e pesados.
Em termos de desenvolvimento urbanístico, trata-se de uma zona industrial estabilizada, existindo parcelas de terreno sem ocupação perto dos imóveis.
O local beneficia de bons acessos rodoviários, encontrando-se a cerca de 5km da EN10 e 8km da A12.
A estação ferroviária de Praias - Sado localiza-se a cerca de 3kms.
Existe ainda um ramal ferroviário que serve o parque industrial, bem como um cais portuário.
O estacionamento em superfície processa-se sem dificuldade à entrada dos lotes através de espaços destinados a esse fim.
O local dispõe igualmente de zonas de parqueamento de veículos pesados.
Lotes desde 14.565 m2 até 74.367 m2.
Os vários lotes estão localizados no Parque Industrial da Península de Setúbal, na Herdade das Praias.
O imóvel (LOTE 5) insere-se numa zona industrial perto da Central Termoelétrica de Setúbal, caracterizada pela presença de armazéns e indústria, nomeadamente algumas atividades industriais de grande dimensão, onde se destaca a Alstom, Portucel, Setenave, Porto de Setúbal e uma envolvente mais distante diversificada, contando com áreas residenciais nas Praias Sado, Manteigadas e o Politécnico de Setúbal.
A rede viária garante uma grande proximidade aos eixos de circulação local, regional e nacional, encontrando-se igualmente próxima da via-férrea.
Dadas as características e implantação de indústrias, a zona é ponto de passagem de veículos ligeiros e pesados.
Em termos de desenvolvimento urbanístico, trata-se de uma zona industrial estabilizada, existindo parcelas de terreno sem ocupação perto dos imóveis.
O local beneficia de bons acessos rodoviários, encontrando-se a cerca de 5km da EN10 e 8km da A12.
A estação ferroviária de Praias - Sado localiza-se a cerca de 3kms.
Existe ainda um ramal ferroviário que serve o parque industrial, bem como um cais portuário.
O estacionamento em superfície processa-se sem dificuldade à entrada dos lotes através de espaços destinados a esse fim.
O local dispõe igualmente de zonas de parqueamento de veículos pesados.
Lotes desde 14.565 m2 até 74.367 m2.
Localização
Sado, Setúbal, Setúbal
Informação do anúncio
ID do anúncio
1791042
Referência Externa
T/02190
Atualizado em
19/04/2026 08:13:18
Terreno Agricola ou Rústico para Venda em Sado