Moradia T3 para Venda em Santa Maria da Feira, Travanca, Sanfins e Espargo
485.000 €
Tipo
Moradia
Negócio
Venda
Quartos
3
Casas de Banho
2
Área Útil
111 m²
Condição
Novo
Certificado Energético
Isento
Área do Terreno
136 m²
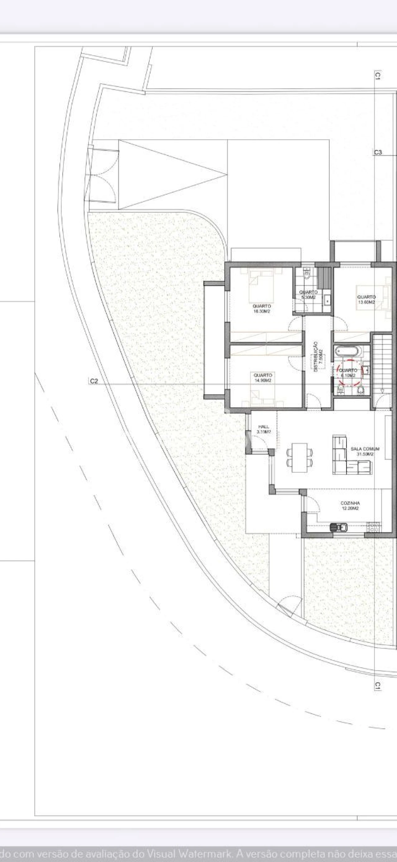
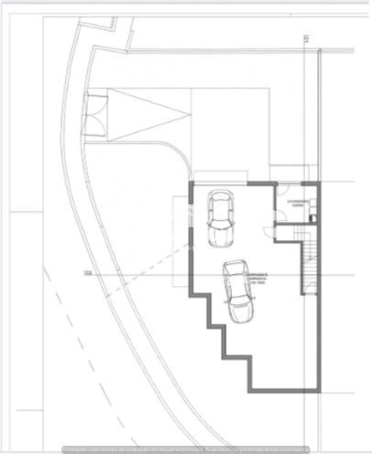
Moradia V3 Cave + Rés do Chão - Travanca, Santa Maria da Feira
? Moradia T3 Moderna em Travanca – Conforto, Espaço e Qualidade de Vida!
Apresentamos-lhe esta fantástica moradia T3, situada em Travanca, uma zona tranquila e familiar de Santa Maria da Feira, onde a qualidade de vida se encontra com o conforto moderno.
✨ Principais Características:
- Hall de entrada;
- 1 suíte com roupeiros embutidos e uma casa de banho completa;
- 2 quartos com roupeiros embutidos;
- 1 casa de banho completa;
- Sala ampla;
- Cozinha totalmente equipada;
- Garagem para dois carros;
- Lavandaria e arrumos;
- Jardim.
Ideal para famílias que procuram um lar acolhedor, funcional e pronto a habitar.
Mapa de acabamentos:
? Pedreiro
- Construção em bloco térmico 50x20x25cm;
- Paredes entre moradias em bloco térmico 50x20x25cm e painel de cortiça;
- Muros envolventes em tijolo 20cm;
- Passeios em cimento com malha de ferro e revestidos com paralelo de granito;
- Cobertura com isolamento em tela asfáltica, isolamento com Pirmate 4cm, XPS 6cm e seixo.
? Trolha
- Paredes exteriores com isolamento em capoto de 8cm, revestidas de cor branca e cinza;
- Paredes interiores revestidas a pladur e pintadas de branco;
- Tetos falsos pintados de branco;
- Casas de banho com paredes e pisos revestidos com tijoleira branca tipo mármore 120x60.
? Pichelaria
- Torneiras das casas de banho e cozinha da marca Grohe;
- Louça suspensa em todas as casas de banho da marca Sanitana;
- Rufos em zinco puro;
- Bomba de calor Proteu 300 litros;
- Bases de chuveiro tipo pedra branca com resguardos em vidro;
- Móveis suspensos com espelho nas casas de banho.
? Carpintaria
- Portas interiores até ao teto e rodapés embutidos em madeira de sucupira.
? Eletricidade
- Focos LED embutidos em toda a casa;
- Focos embutidos no muro da rua da garagem;
- Vídeo porteiro;
- Ar condicionado Proteu com Wi-Fi.
? Serralharia
- Caixilharia em alumínio com corte térmico e de cor cinza antracite mate;
- Vidro duplo com caixa-de-ar e proteção solar;
- Portas e janelas de correr em alumínio de cor cinza antracite mate;
- Portão da rua da garagem com comando à distância na cor cinza antracite mate;
- Portão de entrada a pé em alumínio de cor cinza antracite mate;
- Estores elétricos com comando à distância e Wi-Fi, na cor cinza antracite mate.
?️ Outros Equipamentos
- Móveis de cozinha com balcão em Silestone;
- Chaminé de exaustão Bosch;
- Placa de indução Bosch;
-Máquina de lavar louça Bosch;
- Frigorífico combinado Bosch;
-Micro-ondas Bosch;
- Revestimento do piso e paredes dos anexos em tijoleira cinza tipo betão antiderrapante.
? Localização Estratégica:
- Situada a poucos minutos do centro de Santa Maria da Feira, com bons acessos à A1 e A29, escolas, comércio e serviços nas proximidades. Um equilíbrio perfeito entre tranquilidade e conveniência.
Agende a sua visita!
Chave Nova Feira
Apresentamos-lhe esta fantástica moradia T3, situada em Travanca, uma zona tranquila e familiar de Santa Maria da Feira, onde a qualidade de vida se encontra com o conforto moderno.
✨ Principais Características:
- Hall de entrada;
- 1 suíte com roupeiros embutidos e uma casa de banho completa;
- 2 quartos com roupeiros embutidos;
- 1 casa de banho completa;
- Sala ampla;
- Cozinha totalmente equipada;
- Garagem para dois carros;
- Lavandaria e arrumos;
- Jardim.
Ideal para famílias que procuram um lar acolhedor, funcional e pronto a habitar.
Mapa de acabamentos:
? Pedreiro
- Construção em bloco térmico 50x20x25cm;
- Paredes entre moradias em bloco térmico 50x20x25cm e painel de cortiça;
- Muros envolventes em tijolo 20cm;
- Passeios em cimento com malha de ferro e revestidos com paralelo de granito;
- Cobertura com isolamento em tela asfáltica, isolamento com Pirmate 4cm, XPS 6cm e seixo.
? Trolha
- Paredes exteriores com isolamento em capoto de 8cm, revestidas de cor branca e cinza;
- Paredes interiores revestidas a pladur e pintadas de branco;
- Tetos falsos pintados de branco;
- Casas de banho com paredes e pisos revestidos com tijoleira branca tipo mármore 120x60.
? Pichelaria
- Torneiras das casas de banho e cozinha da marca Grohe;
- Louça suspensa em todas as casas de banho da marca Sanitana;
- Rufos em zinco puro;
- Bomba de calor Proteu 300 litros;
- Bases de chuveiro tipo pedra branca com resguardos em vidro;
- Móveis suspensos com espelho nas casas de banho.
? Carpintaria
- Portas interiores até ao teto e rodapés embutidos em madeira de sucupira.
? Eletricidade
- Focos LED embutidos em toda a casa;
- Focos embutidos no muro da rua da garagem;
- Vídeo porteiro;
- Ar condicionado Proteu com Wi-Fi.
? Serralharia
- Caixilharia em alumínio com corte térmico e de cor cinza antracite mate;
- Vidro duplo com caixa-de-ar e proteção solar;
- Portas e janelas de correr em alumínio de cor cinza antracite mate;
- Portão da rua da garagem com comando à distância na cor cinza antracite mate;
- Portão de entrada a pé em alumínio de cor cinza antracite mate;
- Estores elétricos com comando à distância e Wi-Fi, na cor cinza antracite mate.
?️ Outros Equipamentos
- Móveis de cozinha com balcão em Silestone;
- Chaminé de exaustão Bosch;
- Placa de indução Bosch;
-Máquina de lavar louça Bosch;
- Frigorífico combinado Bosch;
-Micro-ondas Bosch;
- Revestimento do piso e paredes dos anexos em tijoleira cinza tipo betão antiderrapante.
? Localização Estratégica:
- Situada a poucos minutos do centro de Santa Maria da Feira, com bons acessos à A1 e A29, escolas, comércio e serviços nas proximidades. Um equilíbrio perfeito entre tranquilidade e conveniência.
Agende a sua visita!
Chave Nova Feira
Localização
Santa Maria da Feira, Travanca, Sanfins e Espargo, Santa Maria da Feira, Aveiro
Informação do anúncio
ID do anúncio
1791078
Referência Externa
SMF/02984
Atualizado em
19/04/2026 08:13:35
Anunciante
Chamada para a rede fixa nacional
CN Santa Maria Feira
AMI 7142
Referência do imóvel:
SMF/02984
Moradia T3 para Venda em Santa Maria da Feira, Travanca, Sanfins e Espargo