Prédio para Venda em Covilhã e Canhoso
1.700.000 €
Tipo
Prédio
Negócio
Venda
Condição
Usado
Certificado Energético
D
Área do Terreno
3952 m²
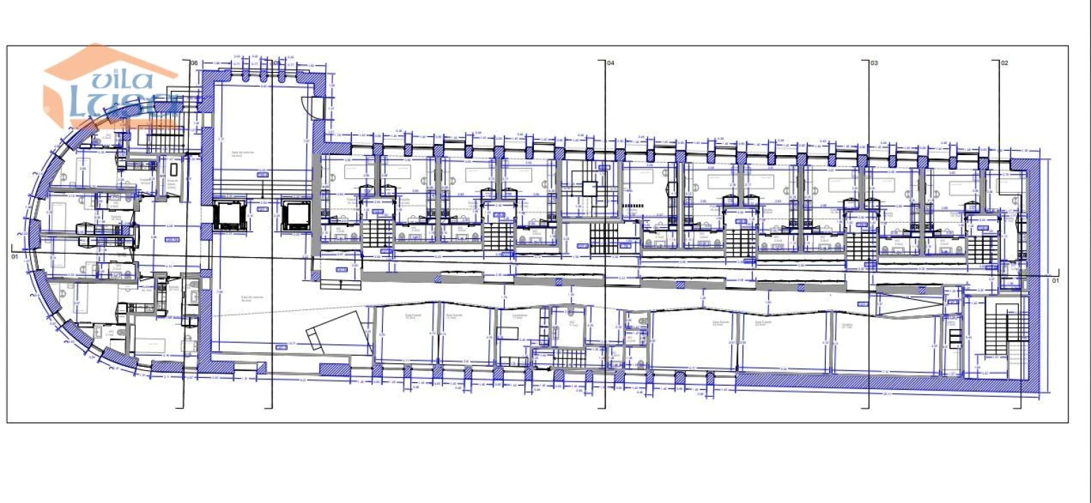
Prédio com projeto aprovado para residências para Estudantes Universitários na Covilhã 10
Projeto Residencial para Estudantes Universitários – Covilhã | 103 Estúdios
Oportunidade de Investimento Imobiliário Pronto a Avançar
Localização premium, a poucos metros da Universidade da Beira Interior (UBI)
Apresentamos uma excelente oportunidade de investimento na Covilhã: edifício industrial para reabilitação, com projeto aprovado para residência de estudantes. Situado junto à Faculdade de Ciências Sociais e Humanas da UBI, este imóvel destaca-se pela localização estratégica e pelo potencial de rentabilidade.
O projeto, já aprovado pelas entidades competentes, prevê a transformação do edifício existente numa moderna residência universitária, composta por 103 estúdios independentes, todos com kitchenette privativa, proporcionando conforto, privacidade e funcionalidade aos futuros residentes.
Principais características do projeto:
103 estúdios modernos e independentes, com kitchenette privativa
Zonas comuns: ginásio, áreas de estudo, espaço de lazer e lavandaria partilhada
Arquitetura funcional e contemporânea
Projeto de arquitetura e especialidades já validados
Pronto para levantamento da licença de construção e início imediato das obras
Pontos fortes:
Segmento académico com forte procura
Localização privilegiada junto à UBI
Potencial de elevada rentabilidade
Oportunidade única para investidores que pretendam iniciar a obra de imediato e garantir presença num mercado dinâmico e valorizado
Não perca esta oportunidade de investir no futuro da habitação académica na Covilhã.
Para mais informações ou agendar reunião, contacte-nos!
Oportunidade de Investimento Imobiliário Pronto a Avançar
Localização premium, a poucos metros da Universidade da Beira Interior (UBI)
Apresentamos uma excelente oportunidade de investimento na Covilhã: edifício industrial para reabilitação, com projeto aprovado para residência de estudantes. Situado junto à Faculdade de Ciências Sociais e Humanas da UBI, este imóvel destaca-se pela localização estratégica e pelo potencial de rentabilidade.
O projeto, já aprovado pelas entidades competentes, prevê a transformação do edifício existente numa moderna residência universitária, composta por 103 estúdios independentes, todos com kitchenette privativa, proporcionando conforto, privacidade e funcionalidade aos futuros residentes.
Principais características do projeto:
103 estúdios modernos e independentes, com kitchenette privativa
Zonas comuns: ginásio, áreas de estudo, espaço de lazer e lavandaria partilhada
Arquitetura funcional e contemporânea
Projeto de arquitetura e especialidades já validados
Pronto para levantamento da licença de construção e início imediato das obras
Pontos fortes:
Segmento académico com forte procura
Localização privilegiada junto à UBI
Potencial de elevada rentabilidade
Oportunidade única para investidores que pretendam iniciar a obra de imediato e garantir presença num mercado dinâmico e valorizado
Não perca esta oportunidade de investir no futuro da habitação académica na Covilhã.
Para mais informações ou agendar reunião, contacte-nos!
Localização
Covilhã e Canhoso, Covilhã, Castelo Branco
Informação do anúncio
ID do anúncio
1793828
Referência Externa
808251025
Atualizado em
12/05/2026 08:12:53
Anunciante
Chamada para a rede fixa nacional
Loja 08 - VILA LUSA - Gaia Litoral
AMI 7917
Referência do imóvel:
808251025
Prédio para Venda em Covilhã e Canhoso