Moradia T2 para Venda em Lavos
185.000 €
Tipo
Moradia
Negócio
Venda
Ano de Construção
1951
Quartos
2
Casas de Banho
2
Área Bruta
208 m²
Área Útil
95 m²
Certificado Energético
E
Área do Terreno
730 m²
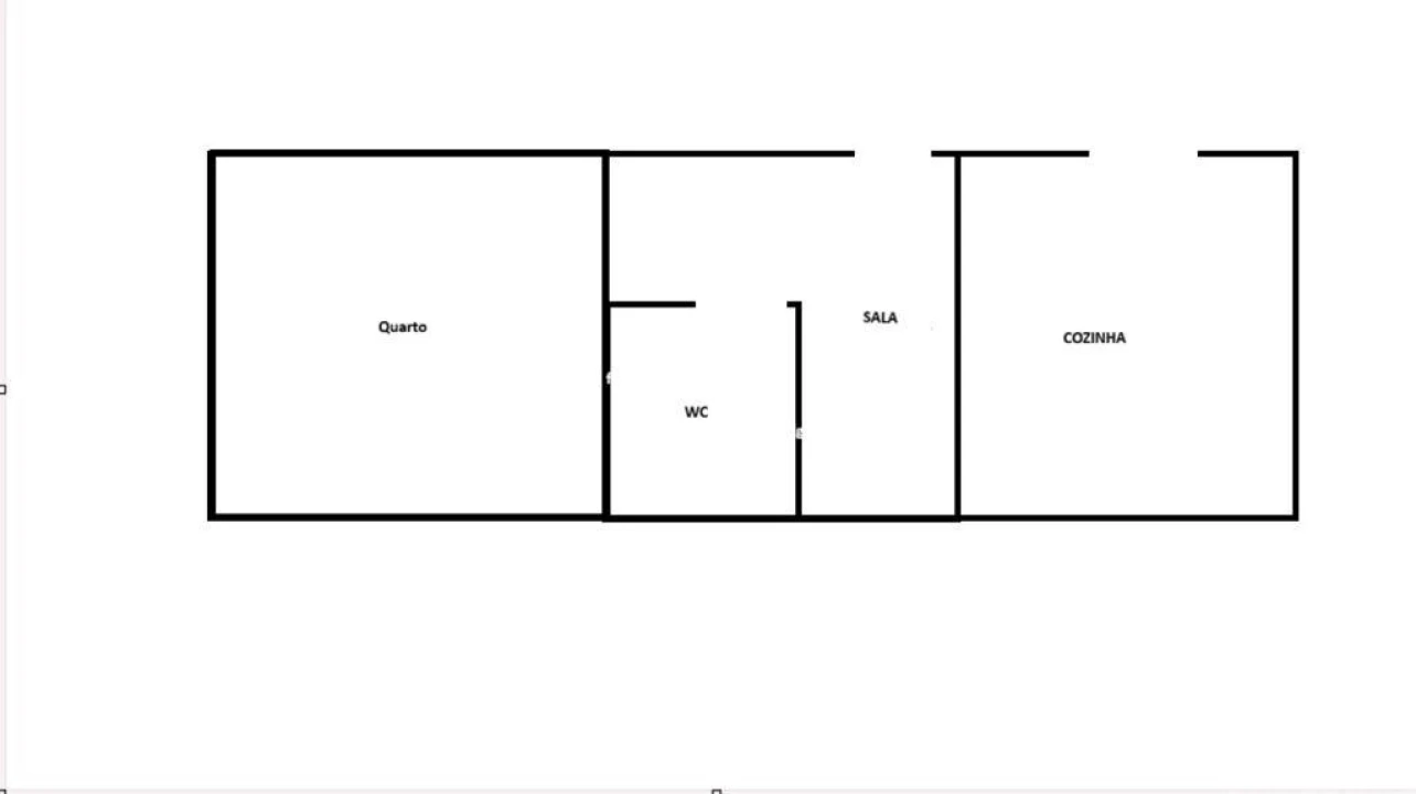
Moradia térrea T2 em Lavos de 95 m²
Moradia T2 com terreno de 730m2, em casal da fonte, Figueira da Foz.
Descubra esta encantadora moradia térrea, localizada em casal da fonte, Figueira da Foz, que oferece um vasto terreno de 730m², como poço funcional,repleto de potencial. Com áreas amplas e luminosas, esta casa de 1951 está pronta para acolher a sua família e transformar-se no seu refúgio de sonho.
A moradia está a ser completamente remodelada, com entrega prevista em 4 meses.
Se for um investidor, este é um ótimo negócio pois estará a adquirir duas moradias. Uma Moradia T2 + uma Moradia T1 com potêncial de duas rendas num valor total de 1200€ mensais.
Características do Imóvel:
-1 Quarto Suite (com casa de banho) com armário embutido;
-1 Quarto com closet;
-1 cozinha equipada com sala open space.
-1 casa de banho completa
-Pré instalação de ar condicionado
- Jardim Espaçoso: A presença de um amplo jardim permite desfrutar de momentos ao ar livre,
realizar atividades ao ar livre e até mesmo criar uma área de lazer personalizada.
- Terraço Convidativo: A presença de um terraço proporciona um espaço exterior adicional para desfrutar de refeições ao ar livre ou simplesmente relaxar.
- Ambientes Claros: Com exposição a Nascente, desfrute da luminosidade natural que inunda os espaços interiores, criando uma atmosfera acolhedora.
Detalhes Técnicos:
- Área Total: 95m²
- Ano de Construção: 1951
- Condição Geral: Remodelada
- Aquecimento: Fornecimento de Energia Elétrica e Gás Natural
- Amenidades: Cabo TV, Fibra Óptica, Acesso PRM
Anexos e Áreas Adicionais:
-Anexo que fácilmente pode ser remodelado para ter uma moradia adicional T1 com baixos custos.
-Anexo para remodelação ou construção de garagem
- Estacionamento: Sim (2 vagas)
- Terraço: Sim
- Jardim: Sim
Localização e Arredores:
-Próximo da Freguesia de São Pedro e da Zona industrial da Figueira da Foz, das Salinas, do Rio ...da natureza.
#ref: 878823
Descubra esta encantadora moradia térrea, localizada em casal da fonte, Figueira da Foz, que oferece um vasto terreno de 730m², como poço funcional,repleto de potencial. Com áreas amplas e luminosas, esta casa de 1951 está pronta para acolher a sua família e transformar-se no seu refúgio de sonho.
A moradia está a ser completamente remodelada, com entrega prevista em 4 meses.
Se for um investidor, este é um ótimo negócio pois estará a adquirir duas moradias. Uma Moradia T2 + uma Moradia T1 com potêncial de duas rendas num valor total de 1200€ mensais.
Características do Imóvel:
-1 Quarto Suite (com casa de banho) com armário embutido;
-1 Quarto com closet;
-1 cozinha equipada com sala open space.
-1 casa de banho completa
-Pré instalação de ar condicionado
- Jardim Espaçoso: A presença de um amplo jardim permite desfrutar de momentos ao ar livre,
realizar atividades ao ar livre e até mesmo criar uma área de lazer personalizada.
- Terraço Convidativo: A presença de um terraço proporciona um espaço exterior adicional para desfrutar de refeições ao ar livre ou simplesmente relaxar.
- Ambientes Claros: Com exposição a Nascente, desfrute da luminosidade natural que inunda os espaços interiores, criando uma atmosfera acolhedora.
Detalhes Técnicos:
- Área Total: 95m²
- Ano de Construção: 1951
- Condição Geral: Remodelada
- Aquecimento: Fornecimento de Energia Elétrica e Gás Natural
- Amenidades: Cabo TV, Fibra Óptica, Acesso PRM
Anexos e Áreas Adicionais:
-Anexo que fácilmente pode ser remodelado para ter uma moradia adicional T1 com baixos custos.
-Anexo para remodelação ou construção de garagem
- Estacionamento: Sim (2 vagas)
- Terraço: Sim
- Jardim: Sim
Localização e Arredores:
-Próximo da Freguesia de São Pedro e da Zona industrial da Figueira da Foz, das Salinas, do Rio ...da natureza.
#ref: 878823
Localização
Lavos, Figueira da Foz, Coimbra
Informação do anúncio
ID do anúncio
1795245
Referência Externa
878823
Atualizado em
25/04/2026 23:21:26
Moradia T2 para Venda em Lavos
Vídeo