Apartamento T3 para Venda em Alvalade
849.000 €
Tipo
Apartamento
Negócio
Venda
Ano de Construção
2026
Quartos
3
Casas de Banho
2
Área Bruta
118 m²
Área Útil
110 m²
Certificado Energético
C
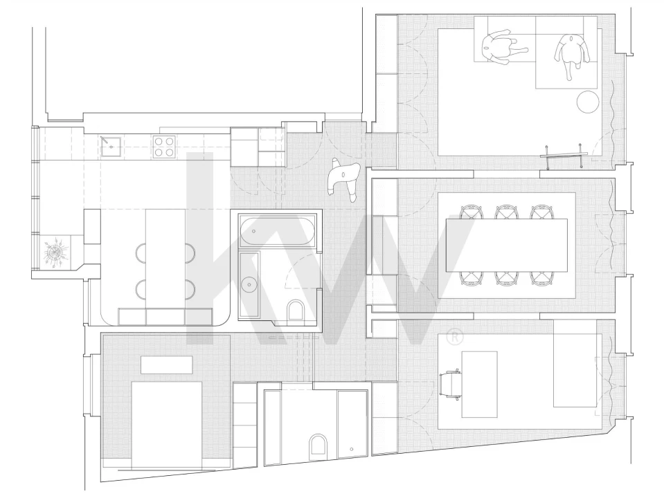
Entrecampos | T2-T3 c/ varanda, arrecadação e renovado por Atelier de Arquitetura
Apresentamos este elegante apartamento em Entrecampos, numa das zonas com maior potencial de valorização da cidade.
Inserido num edifício sólido da década de 60 — reconhecido pela qualidade de construção, áreas generosas e excelente robustez — o prédio conta com dois elevadores, garantindo conforto no dia a dia.
A fração foi alvo de uma reabilitação total em 2023, assinada por um arquiteto, onde cada detalhe foi cuidadosamente pensado. Os materiais e acabamentos de elevada qualidade, aliados a soluções de design diferenciadoras, conferem ao espaço uma identidade única e contemporânea, sem perder o charme original.
Preservada e cuidada a madeira exótica de origem, o pavimento em taco nobre é provavelmente a peça de arte mais destacada deste imóvel, que conta ainda com ar-condicionado em todas as divisões incluindo cozinha e casas de banho, eletrodomésticos AEG e janelas de vidro duplo com caixilhos em madeira maciça de Kâmbala.
Originalmente um T4, o apartamento foi transformado num versátil T2 com amplas áreas sociais, podendo ser facilmente adaptado a T3, consoante as necessidades:
Como T2: oferece uma confortável sala de estar, sala de jantar distinta, dois quartos amplos (um em suite) e ainda uma agradável zona de refeições na cozinha.
Como T3: permite criar três quartos, mantendo uma sala comum funcional e ligação fluida à cozinha, e ao espaço de refeições.
A fração beneficia de uma orientação solar Nascente/Poente, garantindo excelente luminosidade ao longo de todo o dia
Destaca-se ainda a presença de uma ampla varanda, na zona da sala e do(s) quarto(s), ideal para momentos de pausa.
A localização é verdadeiramente estratégica: transportes como metro, comboio e autocarros estão mesmo à porta do prédio, proporcionando uma ligação rápida a toda a cidade. A proximidade ao projeto de requalificação da antiga Feira Popular reforça o potencial de valorização desta zona de Entrecampos, cada vez mais procurada.
Pode encontrar na envolvência:
- Cidade Universitária
- Hospital Santa Maria
- Jardim do Campo Grande
- Centro Comercial do Campo Pequeno
- Creches, escolas primárias, básicas e secundárias reconhecidas
- Restaurantes para todos os gostos
Nesta casa, o carro passará a ser uma mera opção, ainda assim com facilidade de estacionamento à porta por ser uma rua exclusiva a residentes, ou se preferir fazer uma avença na garagem independente que se encontra no R/C e Cave deste mesmo prédio.
Este apartamento dispõe de uma ampla arrecadação no último piso.
O condómino que adquirir este apartamento fica com a propriedade de um décimo da casa de porteira, já devoluta que será rentabilizada em breve.
LU nº 493 emitida pela CM Lisboa.
Um imóvel que combina comodidade, arquitetura e funcionalidade — ideal para quem valoriza centralidade, design e flexibilidade de espaços.
Não perca esta oportunidade. Tratamos do seu financiamento através dos nossos intermediários de crédito, registados junto do banco de Portugal com o Nº 0007407.
Your partner for life.
Este anúncio foi efetuado por uma rotina informática, todos os dados carecem de validação com a equipa comercial.
Inserido num edifício sólido da década de 60 — reconhecido pela qualidade de construção, áreas generosas e excelente robustez — o prédio conta com dois elevadores, garantindo conforto no dia a dia.
A fração foi alvo de uma reabilitação total em 2023, assinada por um arquiteto, onde cada detalhe foi cuidadosamente pensado. Os materiais e acabamentos de elevada qualidade, aliados a soluções de design diferenciadoras, conferem ao espaço uma identidade única e contemporânea, sem perder o charme original.
Preservada e cuidada a madeira exótica de origem, o pavimento em taco nobre é provavelmente a peça de arte mais destacada deste imóvel, que conta ainda com ar-condicionado em todas as divisões incluindo cozinha e casas de banho, eletrodomésticos AEG e janelas de vidro duplo com caixilhos em madeira maciça de Kâmbala.
Originalmente um T4, o apartamento foi transformado num versátil T2 com amplas áreas sociais, podendo ser facilmente adaptado a T3, consoante as necessidades:
Como T2: oferece uma confortável sala de estar, sala de jantar distinta, dois quartos amplos (um em suite) e ainda uma agradável zona de refeições na cozinha.
Como T3: permite criar três quartos, mantendo uma sala comum funcional e ligação fluida à cozinha, e ao espaço de refeições.
A fração beneficia de uma orientação solar Nascente/Poente, garantindo excelente luminosidade ao longo de todo o dia
Destaca-se ainda a presença de uma ampla varanda, na zona da sala e do(s) quarto(s), ideal para momentos de pausa.
A localização é verdadeiramente estratégica: transportes como metro, comboio e autocarros estão mesmo à porta do prédio, proporcionando uma ligação rápida a toda a cidade. A proximidade ao projeto de requalificação da antiga Feira Popular reforça o potencial de valorização desta zona de Entrecampos, cada vez mais procurada.
Pode encontrar na envolvência:
- Cidade Universitária
- Hospital Santa Maria
- Jardim do Campo Grande
- Centro Comercial do Campo Pequeno
- Creches, escolas primárias, básicas e secundárias reconhecidas
- Restaurantes para todos os gostos
Nesta casa, o carro passará a ser uma mera opção, ainda assim com facilidade de estacionamento à porta por ser uma rua exclusiva a residentes, ou se preferir fazer uma avença na garagem independente que se encontra no R/C e Cave deste mesmo prédio.
Este apartamento dispõe de uma ampla arrecadação no último piso.
O condómino que adquirir este apartamento fica com a propriedade de um décimo da casa de porteira, já devoluta que será rentabilizada em breve.
LU nº 493 emitida pela CM Lisboa.
Um imóvel que combina comodidade, arquitetura e funcionalidade — ideal para quem valoriza centralidade, design e flexibilidade de espaços.
Não perca esta oportunidade. Tratamos do seu financiamento através dos nossos intermediários de crédito, registados junto do banco de Portugal com o Nº 0007407.
Your partner for life.
Este anúncio foi efetuado por uma rotina informática, todos os dados carecem de validação com a equipa comercial.
Localização
Alvalade, Lisboa, Lisboa
Informação do anúncio
ID do anúncio
1799011
Referência Externa
KWPT-031627
Atualizado em
23/04/2026 00:07:28
Apartamento T3 para Venda em Alvalade
Vídeo