Terreno para Venda em Cascais e Estoril
6.000.000 €
Tipo
Terreno
Negócio
Venda
Área Bruta
750 m²
Área Útil
750 m²
Condição
Em projecto
Certificado Energético
D
Área do Terreno
809 m²
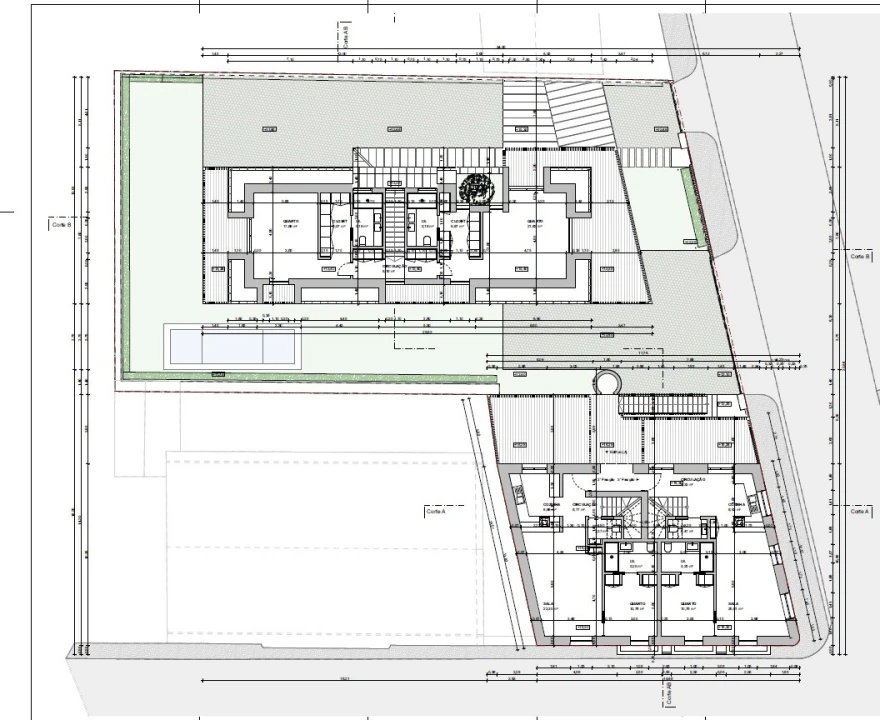
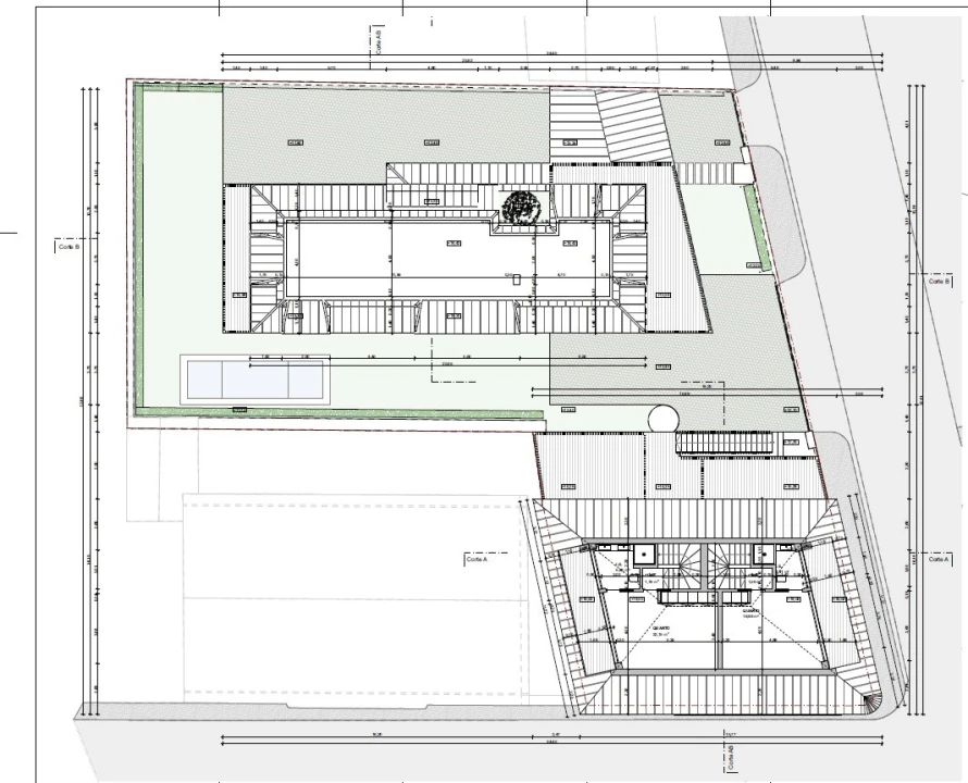
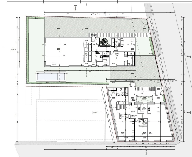
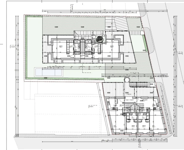
Projecto 1 moradia e 3 apts duplex Cascais centro Histórico
Venda | lote com moradia clássica, com projeto aprovado para 1 Moradia + 3 apts duplex | Jardim, piscina e garagem | Lote 809m2 | ABC 750m2 | Centro Histórico de Cascais perto da Gandarinha
Se procura um ativo com uma grande Potencial de Valorização, no centro da vila de Cascais, esta pode ser uma ótima opção.
Neste momento é uma moradia de arquitectura clássica de meados do séc. XX, mas tem já um projeto aprovado na Câmara, uma oportunidade rara para viver ou investir numa remodelação contemporânea ao seu gosto, mesmo no coração da vila, em frente ao Hipódromo e ao Parque Marechal Carmona, e ao lado do Museu Paula Rego.
PROJECTO APROVADO e licenciado para começar a obra, com aumento da área de construção até 750m²,
MORADIA INDEPENDENTE: ABC: 230m2 com jardim e piscina
EDIFÍCIO 4 PISOS: Prédio independente com 3 Apts Duplex com Terraço e espaços exteriores.
Apartamento 1 - ABC: 243m2
Apartamento 2 - ABC. 86m2 + terraço 35m2
Apartamento 3 - ABC: 84m2 + terraço 25m2
Estacionamento comum para todas as frações
Moradia atual, construída em 1978:
Este lote que já tem 1 moradia construída, também com grande Potencial de Valorização, se for a sua opção de manter o existente.
T6 (2 suites) | 3 andares | Área bruta 443 m² | Lote 809m2 | Jardim amplo com total privacidade , tem uma fonte clássica (da construção original da casa) que proporciona a tranquilidade de um refúgio discreto e protegido, com área para ter uma piscina, se for o seu objetivo.
Garagem 2 carros
Em resumo Localização, Tradição e Valorização sao as palavras chave deste ativo.
Localização
Centro histórico de Cascais. No coração da Riviera Portuguesa.:
Uma vila na Costa do Sol com um centro histórico muito completo, que proporciona uma vida cultural muito activa, com todos os bens e serviços necessários (hospitais, clínicas, conservatória, departamento Finanças, etc) além de oferecer uma grande variedade de praias, uma marina, restaurantes e esplanadas á beira mar, hotéis de cinco estrelas, campos de golfe, escolas internacionais, centros comerciais e um estilo de vida sofisticado.
Tudo isto a poucos minutos de Lisboa e com acesso rápido a aeroportos nacionais e internacionais.
As informações não são vinculativas e não dispensam a consulta dos respetivos documentos ou atualizações junto do consultor responsável da agência imobiliária Cluttons Portugal.
Se procura um ativo com uma grande Potencial de Valorização, no centro da vila de Cascais, esta pode ser uma ótima opção.
Neste momento é uma moradia de arquitectura clássica de meados do séc. XX, mas tem já um projeto aprovado na Câmara, uma oportunidade rara para viver ou investir numa remodelação contemporânea ao seu gosto, mesmo no coração da vila, em frente ao Hipódromo e ao Parque Marechal Carmona, e ao lado do Museu Paula Rego.
PROJECTO APROVADO e licenciado para começar a obra, com aumento da área de construção até 750m²,
MORADIA INDEPENDENTE: ABC: 230m2 com jardim e piscina
EDIFÍCIO 4 PISOS: Prédio independente com 3 Apts Duplex com Terraço e espaços exteriores.
Apartamento 1 - ABC: 243m2
Apartamento 2 - ABC. 86m2 + terraço 35m2
Apartamento 3 - ABC: 84m2 + terraço 25m2
Estacionamento comum para todas as frações
Moradia atual, construída em 1978:
Este lote que já tem 1 moradia construída, também com grande Potencial de Valorização, se for a sua opção de manter o existente.
T6 (2 suites) | 3 andares | Área bruta 443 m² | Lote 809m2 | Jardim amplo com total privacidade , tem uma fonte clássica (da construção original da casa) que proporciona a tranquilidade de um refúgio discreto e protegido, com área para ter uma piscina, se for o seu objetivo.
Garagem 2 carros
Em resumo Localização, Tradição e Valorização sao as palavras chave deste ativo.
Localização
Centro histórico de Cascais. No coração da Riviera Portuguesa.:
Uma vila na Costa do Sol com um centro histórico muito completo, que proporciona uma vida cultural muito activa, com todos os bens e serviços necessários (hospitais, clínicas, conservatória, departamento Finanças, etc) além de oferecer uma grande variedade de praias, uma marina, restaurantes e esplanadas á beira mar, hotéis de cinco estrelas, campos de golfe, escolas internacionais, centros comerciais e um estilo de vida sofisticado.
Tudo isto a poucos minutos de Lisboa e com acesso rápido a aeroportos nacionais e internacionais.
As informações não são vinculativas e não dispensam a consulta dos respetivos documentos ou atualizações junto do consultor responsável da agência imobiliária Cluttons Portugal.
Localização
Cascais e Estoril, Cascais, Lisboa
Informação do anúncio
ID do anúncio
1799168
Referência Externa
TER_2204HEJBC
Atualizado em
22/04/2026 01:49:31
Anunciante
Chamada para a rede fixa nacional
Cluttons Portugal
AMI 14434
Referência do imóvel:
TER_2204HEJBC
Terreno para Venda em Cascais e Estoril