Terreno para Venda em Fânzeres e São Pedro da Cova
630.000 €
Tipo
Terreno
Negócio
Venda
Área Útil
1975 m²
Condição
Novo
Certificado Energético
Isento
Área do Terreno
2850 m²
Terreno com PIP Aprovado para 24 Fogos - Zona ARU - S.Pedro da Cova, Gondomar
Excelente oportunidade de investimento em São Pedro da Cova, na Rua das Mimosas, Lugar da Everdosa, com PIP aprovado em 24/02/2026 pela Câmara Municipal de Gondomar, para construção de habitação multifamiliar
Inserido em Zona ARU (Área de Reabilitação Urbana), com benefícios fiscais e forte potencial de valorização
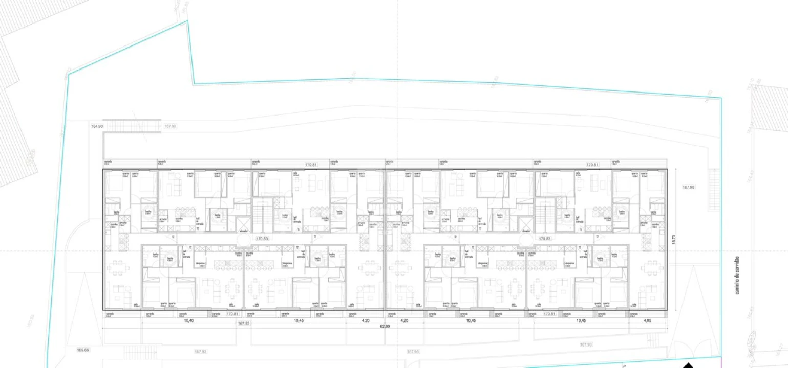
Projeto Aprovado:
24 fogos habitacionais
4 apartamentos T1
20 apartamentos T2
46 lugares de garagem
Número de pisos acima da cota de soleira: 2
Número de pisos abaixo da cota de soleira: 1
Altura da edificação: 8,72 m
Moda de altura da fachada: 5,82 m
Áreas:
Área total do terreno: 2.850m²
Frente de rua: 72 metros
Área de implantação: 1.112,72m² (1.132,72m² incluindo compartimento de resíduos)
Área bruta de construção: 1.975,68m² (2.003,58m² incluindo sala de condomínio)
Volumetria: 5.749,23 m³
Área de cave: 1.107,80m²
Localização e Acessos:
A 3 minutos da Estrada D. Miguel
A 12 minutos do centro de Gondomar
A 13 minutos de Rio Tinto
A 15 minutos de Santa Rita
Aproximadamente a 20 minutos do Porto
Zona bem servida de acessos rodoviários, permitindo ligação rápida às principais vias da área metropolitana.
Envolvente:
Proximidade a comércio local e grandes superfícies
Transportes públicos nas imediações
Serviços essenciais (farmácias, bancos, restauração)
Escolas e equipamentos educativos
Zona residencial tranquila, em crescimento e requalificação
Destaques do Investimento:
PIP aprovado - redução de risco e rapidez no arranque da obra
Inserido em Zona ARU
Projeto otimizado com tipologias de elevada procura (T1 e T2)
Excelente relação entre número de fogos e lugares de estacionamento
Ideal para promotores que procuram um projeto pronto a avançar numa zona com elevada procura habitacional.
Inserido em Zona ARU (Área de Reabilitação Urbana), com benefícios fiscais e forte potencial de valorização
Projeto Aprovado:
24 fogos habitacionais
4 apartamentos T1
20 apartamentos T2
46 lugares de garagem
Número de pisos acima da cota de soleira: 2
Número de pisos abaixo da cota de soleira: 1
Altura da edificação: 8,72 m
Moda de altura da fachada: 5,82 m
Áreas:
Área total do terreno: 2.850m²
Frente de rua: 72 metros
Área de implantação: 1.112,72m² (1.132,72m² incluindo compartimento de resíduos)
Área bruta de construção: 1.975,68m² (2.003,58m² incluindo sala de condomínio)
Volumetria: 5.749,23 m³
Área de cave: 1.107,80m²
Localização e Acessos:
A 3 minutos da Estrada D. Miguel
A 12 minutos do centro de Gondomar
A 13 minutos de Rio Tinto
A 15 minutos de Santa Rita
Aproximadamente a 20 minutos do Porto
Zona bem servida de acessos rodoviários, permitindo ligação rápida às principais vias da área metropolitana.
Envolvente:
Proximidade a comércio local e grandes superfícies
Transportes públicos nas imediações
Serviços essenciais (farmácias, bancos, restauração)
Escolas e equipamentos educativos
Zona residencial tranquila, em crescimento e requalificação
Destaques do Investimento:
PIP aprovado - redução de risco e rapidez no arranque da obra
Inserido em Zona ARU
Projeto otimizado com tipologias de elevada procura (T1 e T2)
Excelente relação entre número de fogos e lugares de estacionamento
Ideal para promotores que procuram um projeto pronto a avançar numa zona com elevada procura habitacional.
Localização
Fânzeres e São Pedro da Cova, Gondomar, Porto
Informação do anúncio
ID do anúncio
1799722
Referência Externa
PD-059665
Atualizado em
26/04/2026 07:18:22
Terreno para Venda em Fânzeres e São Pedro da Cova