Voltar
Terreno para Venda em Quarteira Foto 1
Terreno para Venda em Quarteira Foto 2
Terreno para Venda em Quarteira Foto 3
Terreno para Venda em Quarteira Foto 4
Terreno para Venda em Quarteira Foto 5

Terreno para Venda em Quarteira

5.980.000 €

Tipo
Terreno
Negócio
Venda
Área Bruta
5007 m²
Área Útil
5007 m²
Condição
Não Aplicável
Certificado Energético
Isento
Área do Terreno
1500 m²

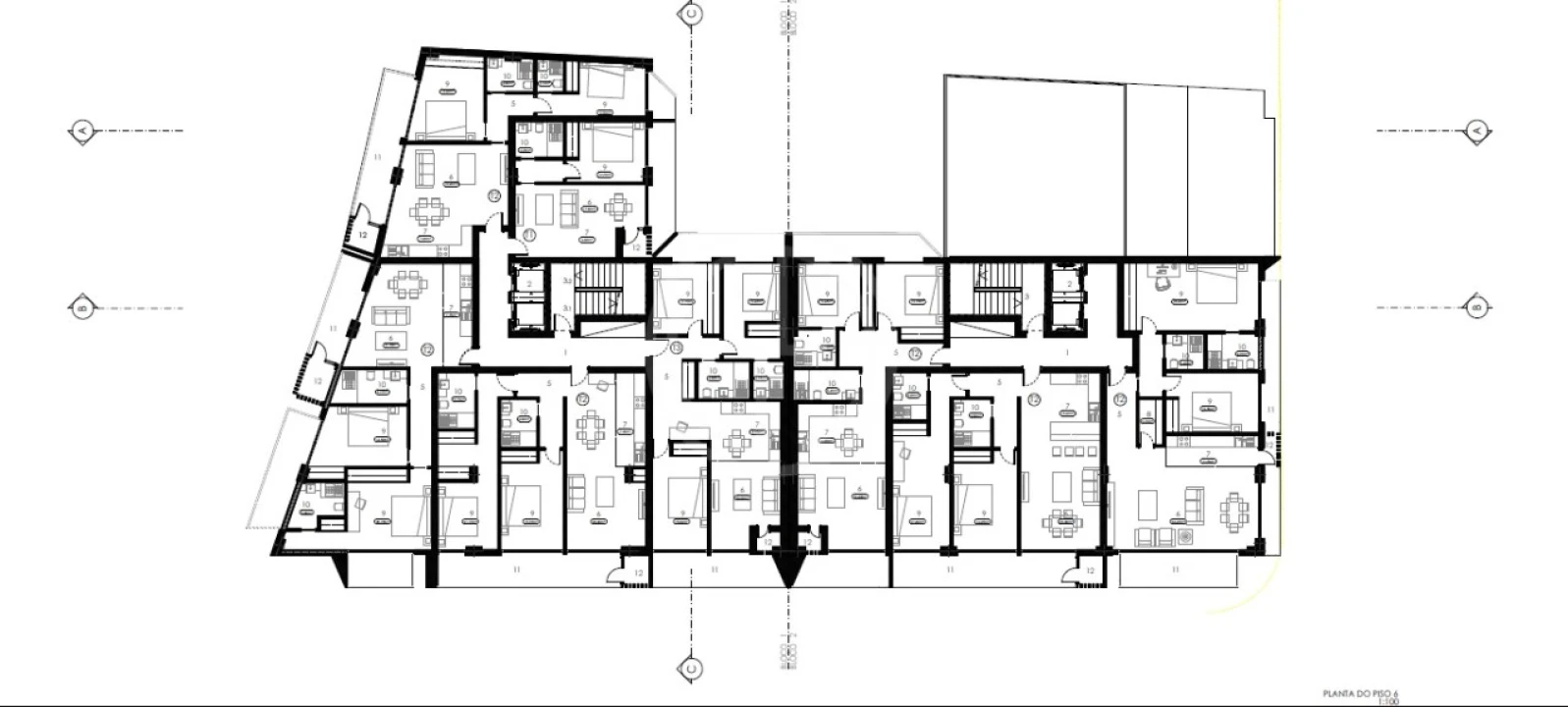
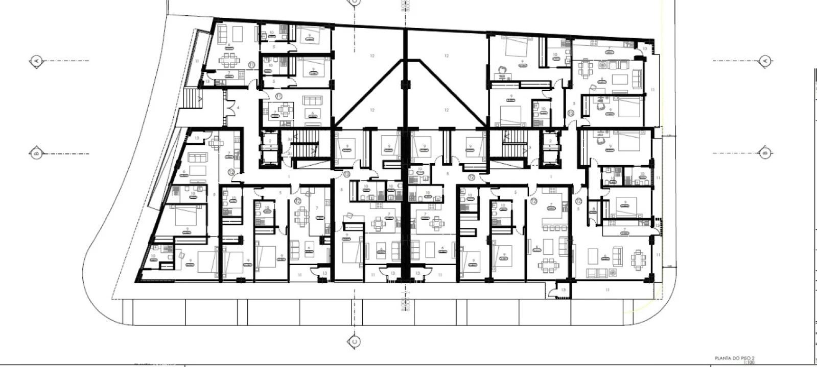
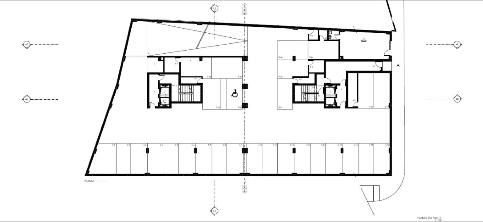
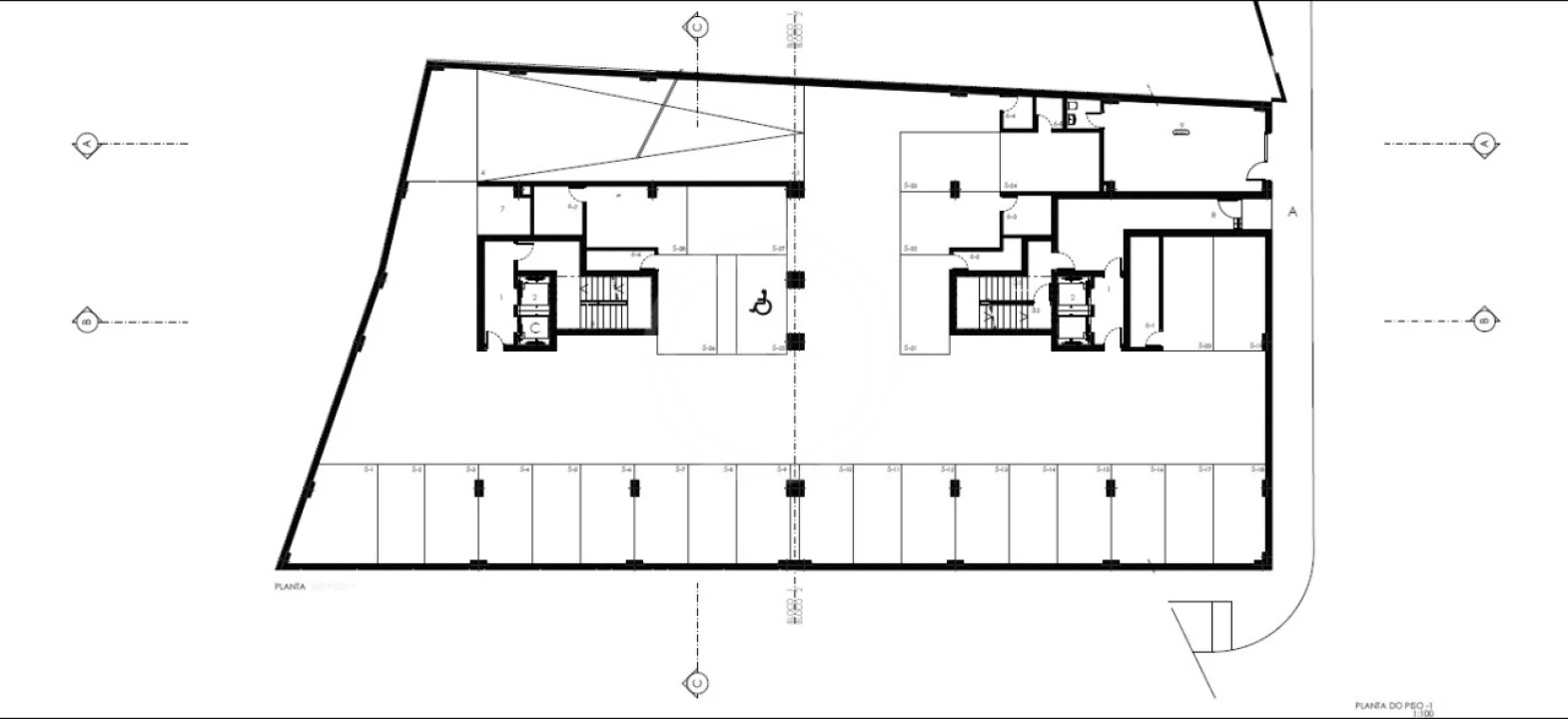
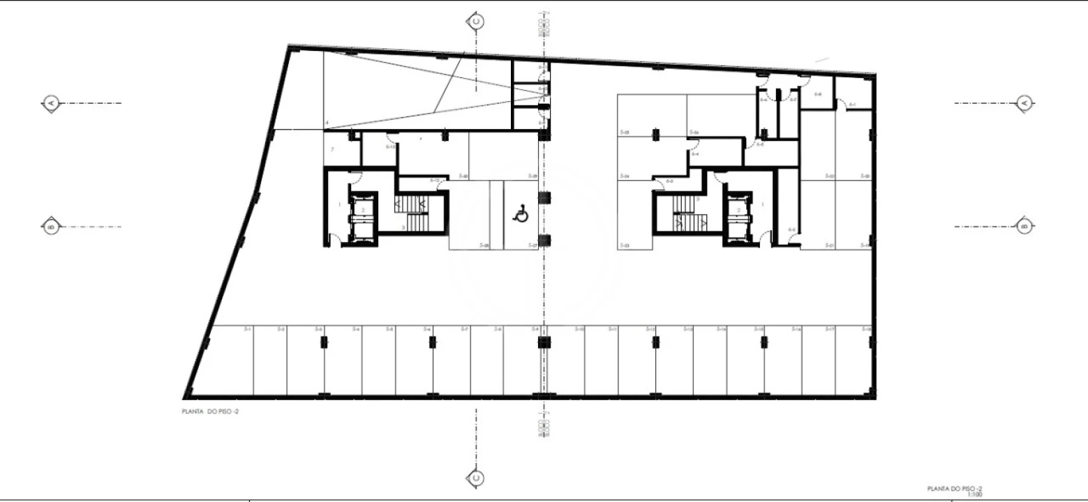
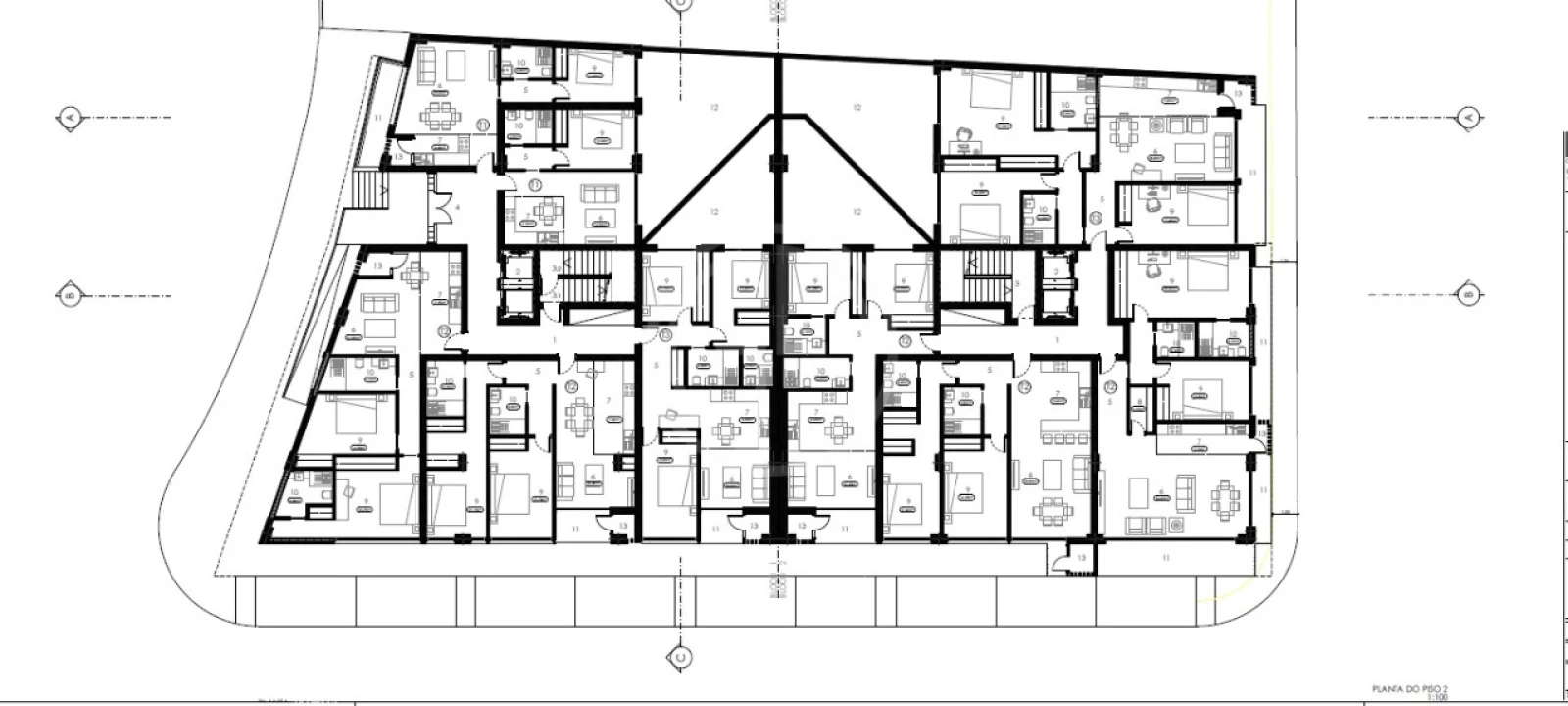
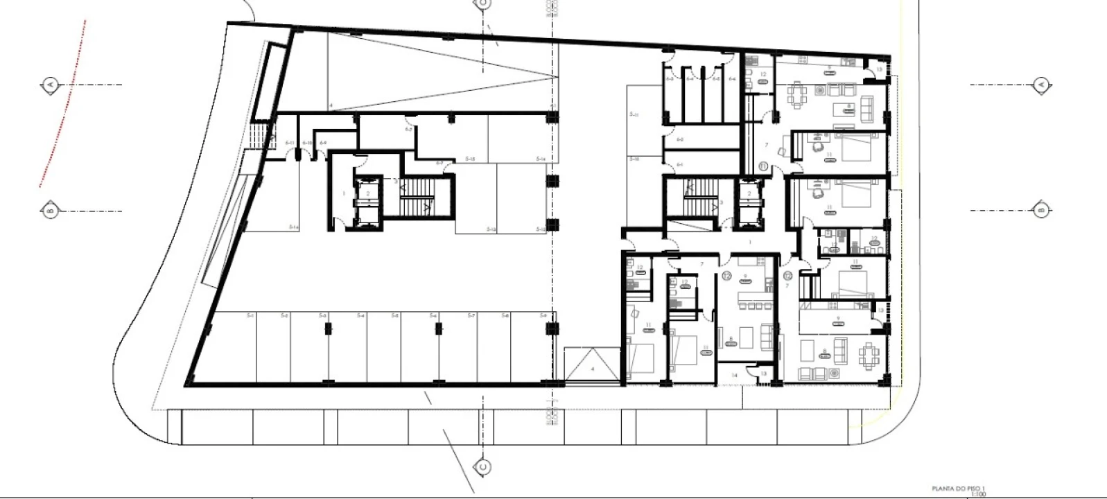
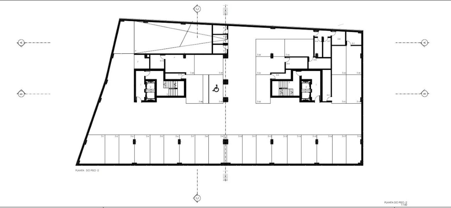
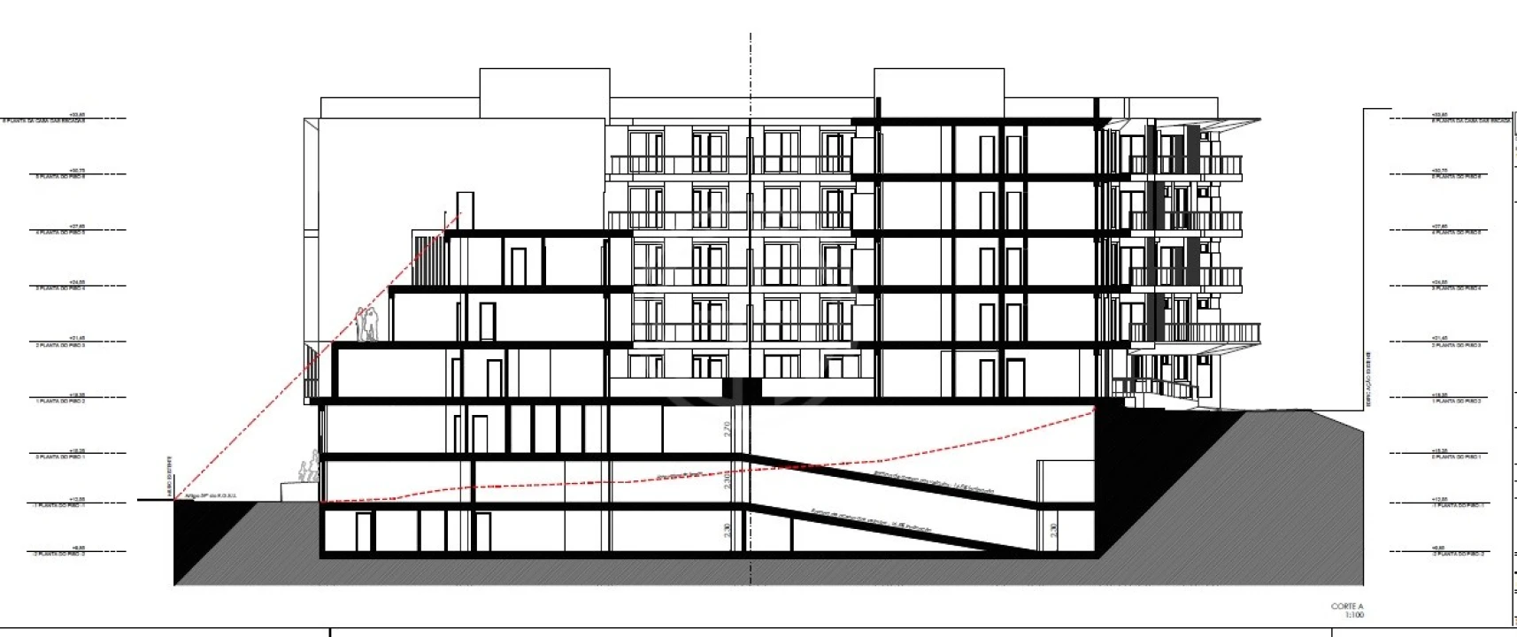
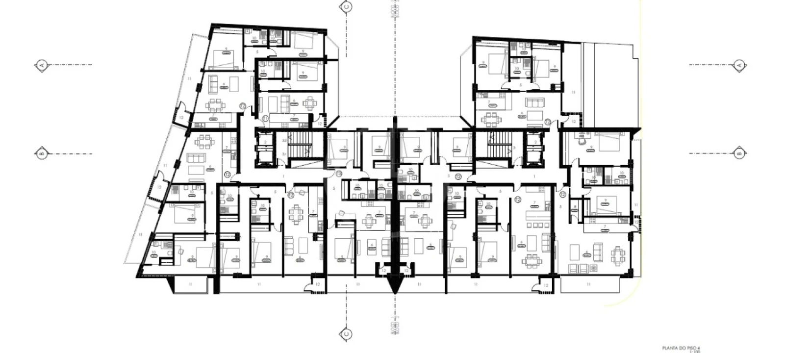
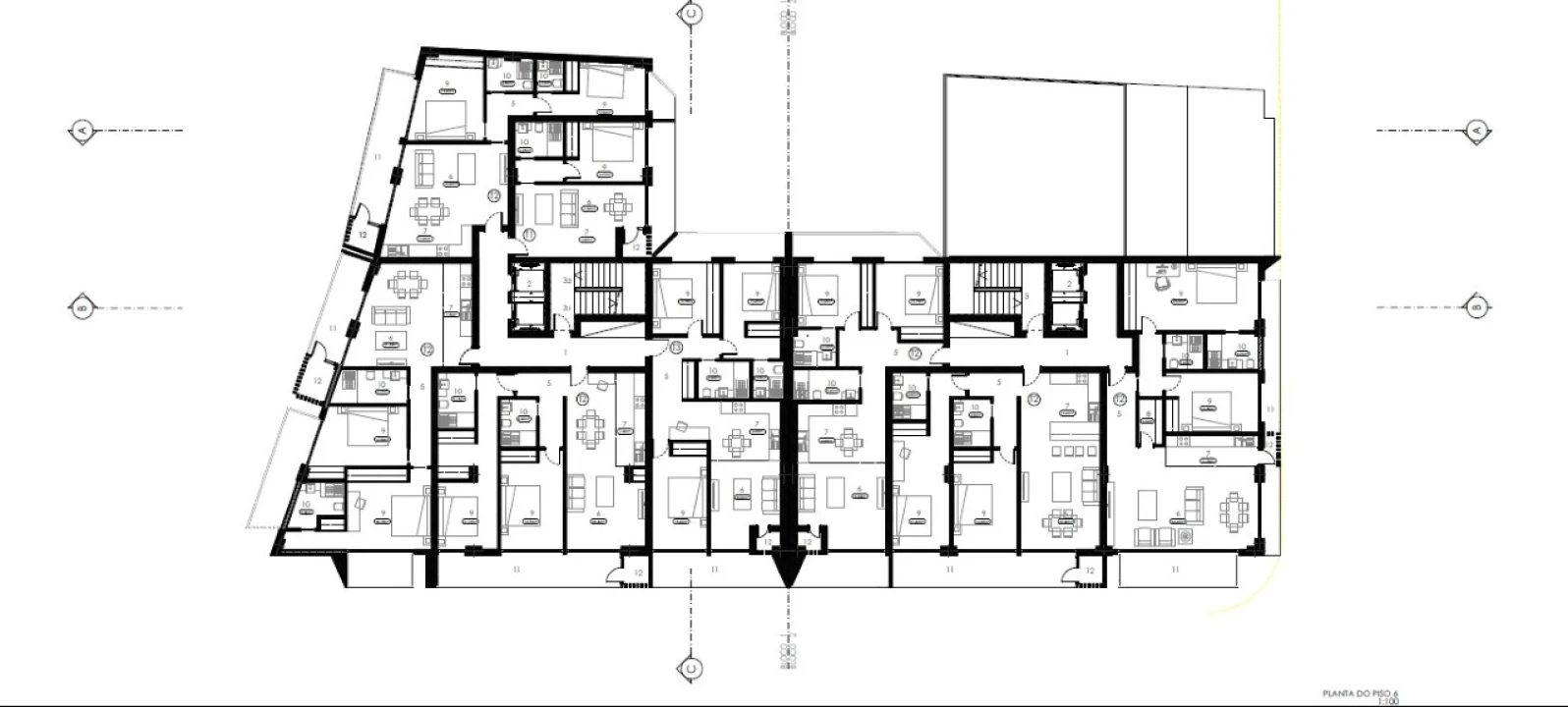
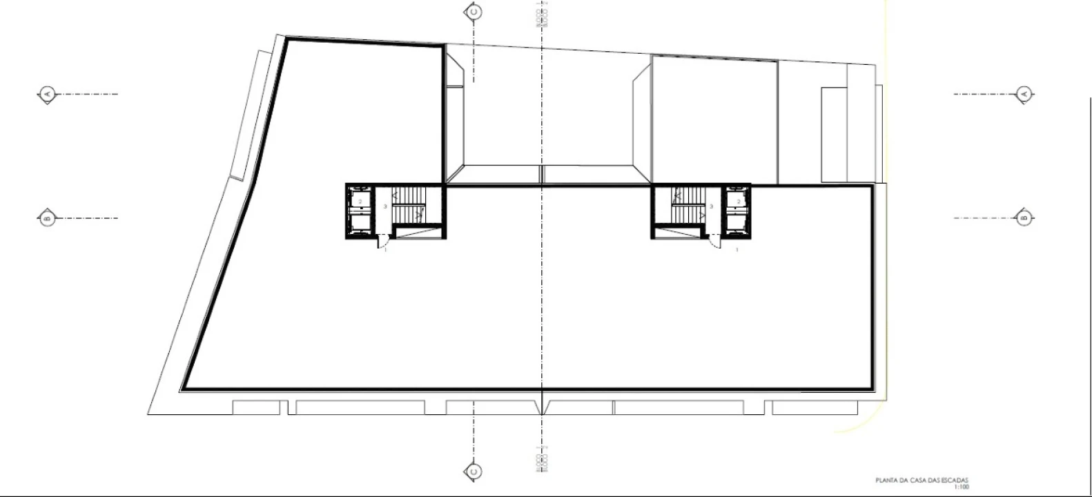
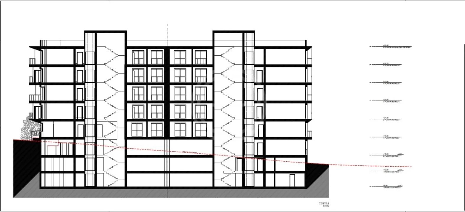
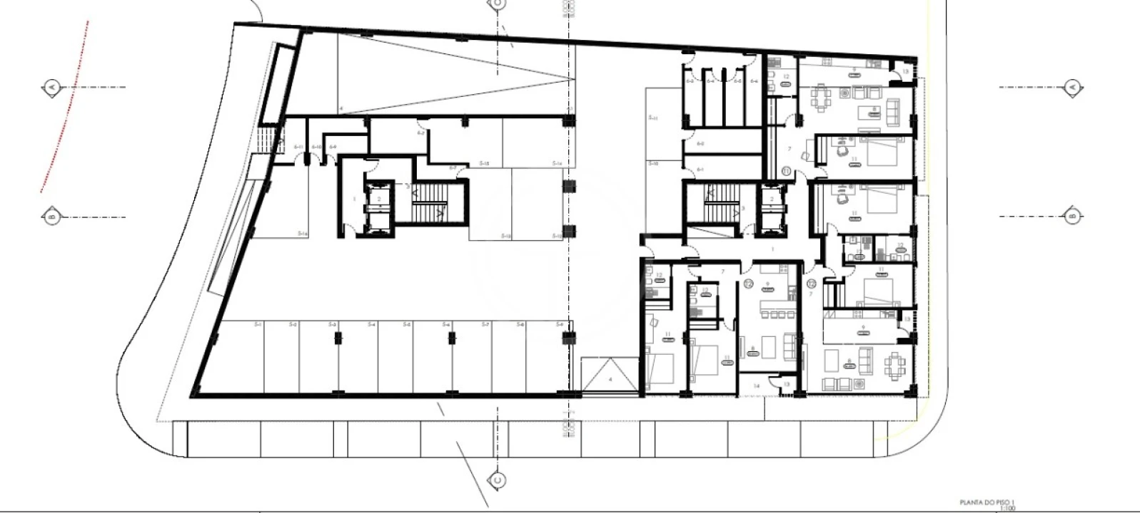
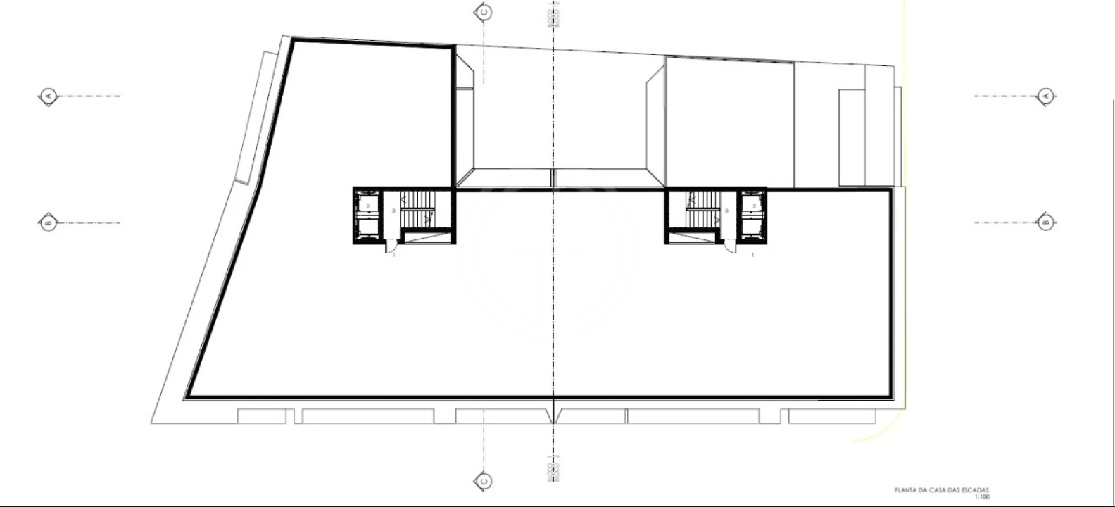
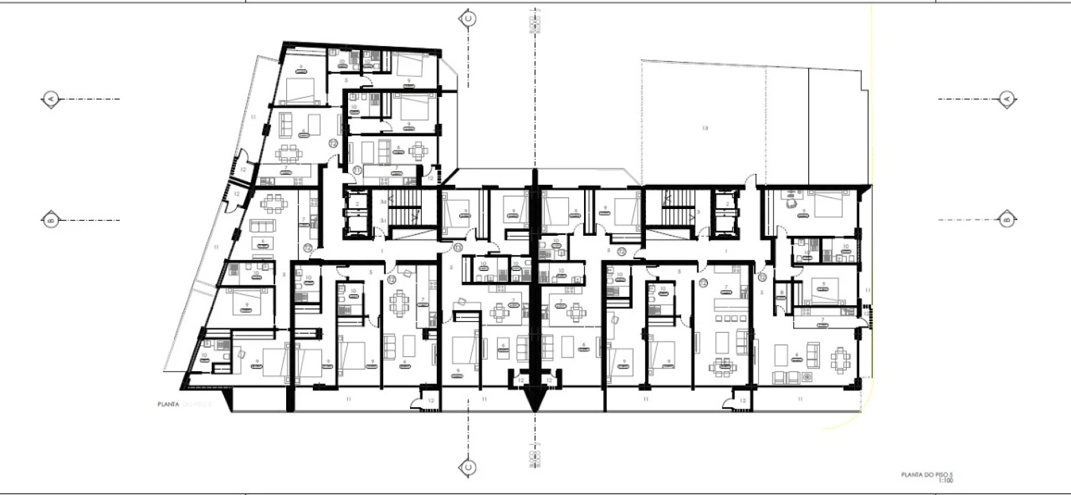
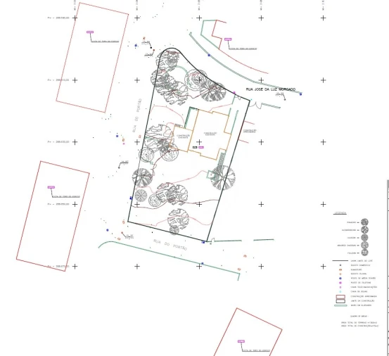
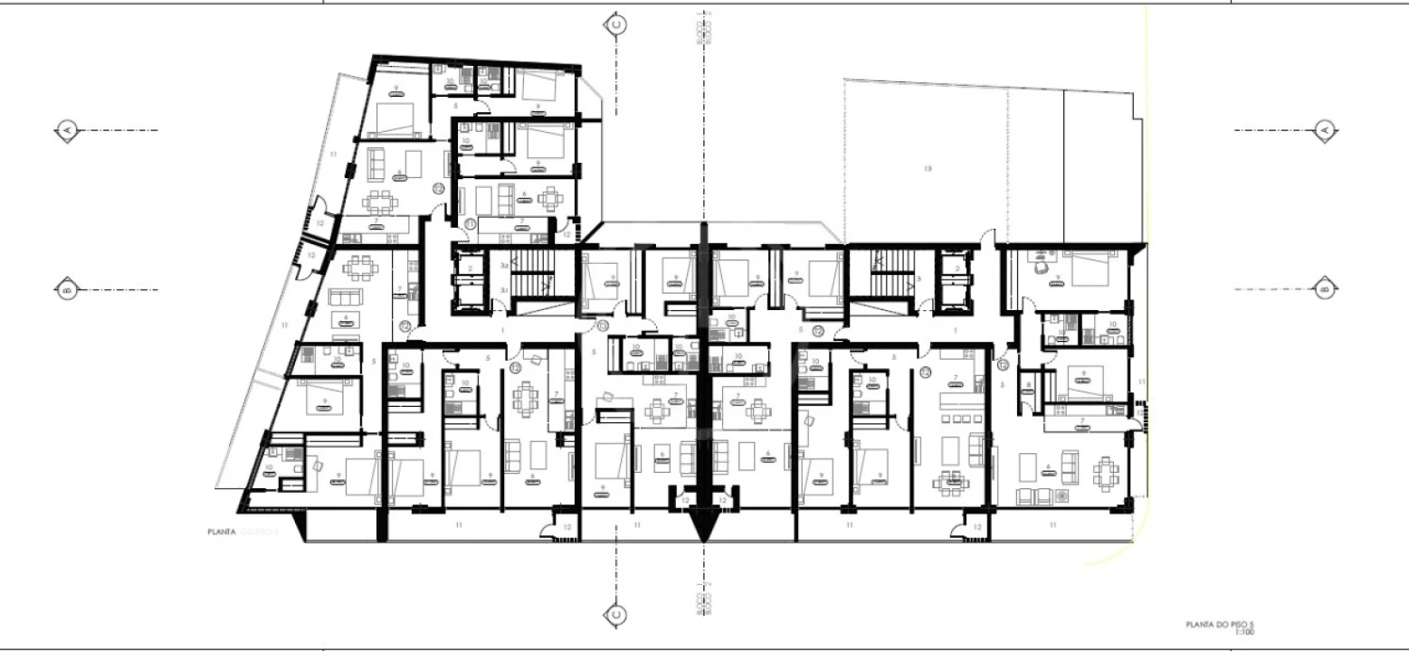
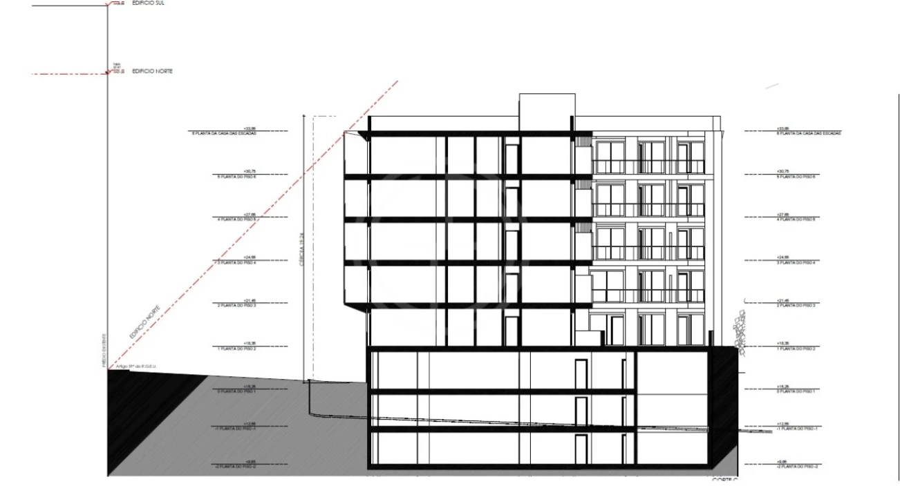
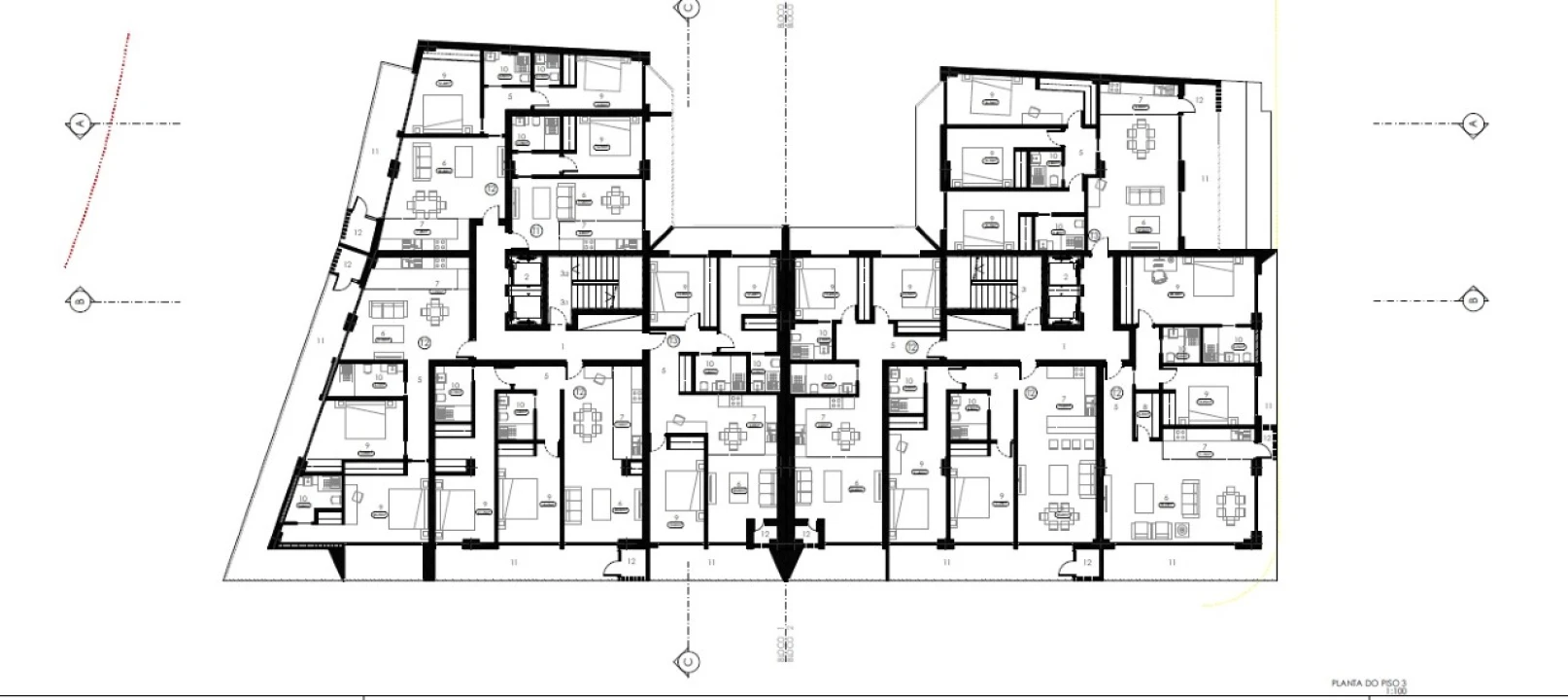
Terreno com projeto aprovado para 46 apartamentos em Quarteira

Apresentamos um terreno de excelência com 1.500 m², estrategicamente localizado numa das zonas com maior dinamismo e potencial de valorização imobiliária em Quarteira.

Destaques do Projeto:

·Projeto Aprovado: O lote inclui um projeto de arquitetura já aprovado para a construção de um empreendimento habitacional moderno.

·Capacidade de Construção: Composto por 46 apartamentos, ideal para maximizar o retorno sobre o investimento.

·Localização Estratégica: Situado numa área de forte procura, garantindo uma elevada taxa de escoamento das unidades.

Vantagens da Localização:

Este ativo beneficia de uma localização privilegiada que oferece:

·Acesso Rápido: Proximidade às famosas praias do Algarve e às principais vias de comunicação.

·Conveniência: Rodeado por uma vasta rede de comércio, serviços essenciais e campos de golfe de renome mundial.

Esta é a oportunidade ideal para investidores e promotores que procuram desenvolver um projeto imobiliário de referência, rentável e com design contemporâneo no coração do Algarve

Quarteira é uma cidade costeira no sul de Portugal, integrada no concelho de Loulé, na região do Algarve. É conhecida sobretudo por ser uma zona balnear muito procurada por turistas, especialmente no verão.

A cidade desenvolveu-se bastante a partir de uma antiga vila piscatória. Ainda hoje, essa herança aparece de forma clara na cultura local: há uma ligação forte ao mar, à pesca artesanal e à gastronomia de peixe fresco. O mercado de peixe e os restaurantes junto à marginal são pontos típicos para experimentar essa identidade mais tradicional.

Um dos maiores destaques de Quarteira é a sua praia extensa, com vários quilómetros de areia dourada e um passeio marítimo (a marginal) bastante longo, ideal para caminhar junto ao oceano. Essa marginal liga-se quase de forma contínua à zona de Vilamoura, que é mais moderna e conhecida pela marina, golfe e turismo de luxo.

Em termos de ambiente, Quarteira mistura duas faces:

uma mais popular e tradicional, ligada aos residentes e à pesca;
outra mais turística, com hotéis, apartamentos e muita atividade no verão.

O clima é tipicamente mediterrânico do Algarve: verões quentes e secos, e invernos suaves, o que ajuda a torná-la um destino turístico durante grande parte do ano.

Localização

Quarteira, Loulé, Faro

Informação do anúncio

ID do anúncio 1800927
Referência Externa GA-10221
Atualizado em 06/05/2026 07:12:04
Golden Properties AMI 8576
Referência do imóvel: GA-10221
Phone
Chamada para a rede fixa nacional
Golden Properties AMI 8576
Referência do imóvel: GA-10221
Phone
Chamada para a rede fixa nacional
1 / 43
Terreno para Venda em Quarteira Foto 1
Terreno para Venda em Quarteira Foto 2
Terreno para Venda em Quarteira Foto 3
Terreno para Venda em Quarteira Foto 4
Terreno para Venda em Quarteira Foto 5
Terreno para Venda em Quarteira Foto 6
Terreno para Venda em Quarteira Foto 7
Terreno para Venda em Quarteira Foto 8
Terreno para Venda em Quarteira Foto 9
Terreno para Venda em Quarteira Foto 10
Terreno para Venda em Quarteira Foto 11
Terreno para Venda em Quarteira Foto 12
Terreno para Venda em Quarteira Foto 13
Terreno para Venda em Quarteira Foto 14
Terreno para Venda em Quarteira Foto 15
Terreno para Venda em Quarteira Foto 16
Terreno para Venda em Quarteira Foto 17
Terreno para Venda em Quarteira Foto 18
Terreno para Venda em Quarteira Foto 19
Terreno para Venda em Quarteira Foto 20
Terreno para Venda em Quarteira Foto 21
Terreno para Venda em Quarteira Foto 22
Terreno para Venda em Quarteira Foto 23
Terreno para Venda em Quarteira Foto 24
Terreno para Venda em Quarteira Foto 25
Terreno para Venda em Quarteira Foto 26
Terreno para Venda em Quarteira Foto 27
Terreno para Venda em Quarteira Foto 28
Terreno para Venda em Quarteira Foto 29
Terreno para Venda em Quarteira Foto 30
Terreno para Venda em Quarteira Foto 31
Terreno para Venda em Quarteira Foto 32
Terreno para Venda em Quarteira Foto 33
Terreno para Venda em Quarteira Foto 34
Terreno para Venda em Quarteira Foto 35
Terreno para Venda em Quarteira Foto 36
Terreno para Venda em Quarteira Foto 37
Terreno para Venda em Quarteira Foto 38
Terreno para Venda em Quarteira Foto 39
Terreno para Venda em Quarteira Foto 40
Terreno para Venda em Quarteira Foto 41
Terreno para Venda em Quarteira Foto 42
Terreno para Venda em Quarteira Foto 43
Planta 1 / 13
Terreno para Venda em Quarteira Planta 1
Terreno para Venda em Quarteira Planta 2
Terreno para Venda em Quarteira Planta 3
Terreno para Venda em Quarteira Planta 4
Terreno para Venda em Quarteira Planta 5
Terreno para Venda em Quarteira Planta 6
Terreno para Venda em Quarteira Planta 7
Terreno para Venda em Quarteira Planta 8
Terreno para Venda em Quarteira Planta 9
Terreno para Venda em Quarteira Planta 10
Terreno para Venda em Quarteira Planta 11
Terreno para Venda em Quarteira Planta 12
Terreno para Venda em Quarteira Planta 13
Clicky