Voltar
Terreno P/ Prédio para Venda em A dos Cunhados e Maceira Foto 1
Terreno P/ Prédio para Venda em A dos Cunhados e Maceira Foto 2
Terreno P/ Prédio para Venda em A dos Cunhados e Maceira Foto 3
Terreno P/ Prédio para Venda em A dos Cunhados e Maceira Foto 4
Terreno P/ Prédio para Venda em A dos Cunhados e Maceira Foto 5

Terreno P/ Prédio para Venda em A dos Cunhados e Maceira

525.000 €

Tipo
Terreno P/ Prédio
Negócio
Venda
Área Útil
1032 m²
Certificado Energético
Isento
Área do Terreno
1032 m²

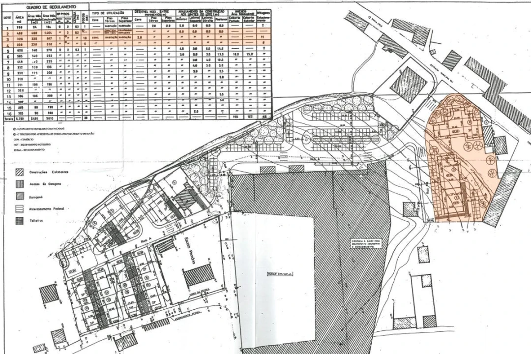
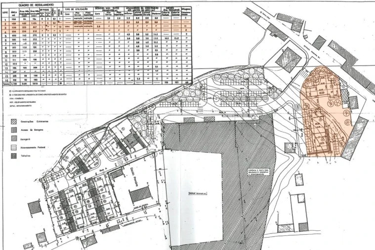
3 Lotes para construção em altura, no Sobreiro Curvo, Torres vedras

### ANGARIAÇÃO PARTICULAR - Esta angariação não provém de desinvestimento bancário ###

Para mais informações:
Rui Arez
?+351_965_150_149
[email protected]

3 Lotes para construção em altura na pacata aldeia do Sobreiro Curvo, Torres vedras

LOTE 2
Área de implantação de 468m²
Área de construção de 1404m²
Este lote permite a construção de uma unidade hoteleira com 70 camas ou para 10 apartamentos.
Para construção de edifício com 3 pisos acima da cota soleira

LOTE 3
Área de implantação de 326m²
Área de construção 847m², aprovado para 10 apartamentos
Cave para estacionamento + 2 pisos de habitação + 1 piso de aproveitamento de sótão

LOTE 4
Área de implantação de 238m²
Área de construção de 618m²,aprovado para 5 apartamentos
Cave para estacionamento + 2 pisos de habitação + 1 piso de aproveitamento de sótão

Localizado:
a 50min de Lisboa
a 10min de Torres Vedras e da A-8
a 10 min das belas praias de Santa -Cruz,Porto Novo e Santa Rita

Sobreiro Curvo situa-se na freguesia de A-Dos-Cunhados, que tem todo o tipo de comercio e serviços tais como Escola Primaria e creche , Bancos, Farmácias. Superfícies Comerciais, Restaurantes, Parque Verde de Lazer e Parque Desportivo

Situa-se a 15m dos Hospitais Soerad e CUF Bem como do Hospital Publico

Perfeito para Investimento!!

Sobreiro Curvo, no Concelho de Torres Vedras, é uma excelente escolha para quem procura terrenos para construir a sua nova habitação com qualidade de vida e tranquilidade. Rodeada por paisagens naturais e próxima das praias de Santa Cruz, oferece o equilíbrio perfeito entre campo e mar. A zona beneficia de bons acessos e de uma comunidade acolhedora, onde se preservam tradições rurais, festas locais e uma forte ligação à terra. Ideal para quem valoriza autenticidade, espaço e bem-estar.

Para mais informações ou marcação de visita, entre em contacto comigo!

A RE/MAX + Grupo Vantagem existe para o ajudar a realizar sonhos, seja na compra ou na venda do seu imóvel.

Localização

A dos Cunhados e Maceira, Torres Vedras, Lisboa

Informação do anúncio

ID do anúncio 1801042
Referência Externa T-27884
Atualizado em 26/04/2026 08:02:50
Remax Vantagem - imóveis banca AMI 7772
Referência do imóvel: T-27884
Phone
Chamada para a rede móvel nacional
Remax Vantagem - imóveis banca AMI 7772
Referência do imóvel: T-27884
Phone
Chamada para a rede móvel nacional
1 / 30
Terreno P/ Prédio para Venda em A dos Cunhados e Maceira Foto 1
Terreno P/ Prédio para Venda em A dos Cunhados e Maceira Foto 2
Terreno P/ Prédio para Venda em A dos Cunhados e Maceira Foto 3
Terreno P/ Prédio para Venda em A dos Cunhados e Maceira Foto 4
Terreno P/ Prédio para Venda em A dos Cunhados e Maceira Foto 5
Terreno P/ Prédio para Venda em A dos Cunhados e Maceira Foto 6
Terreno P/ Prédio para Venda em A dos Cunhados e Maceira Foto 7
Terreno P/ Prédio para Venda em A dos Cunhados e Maceira Foto 8
Terreno P/ Prédio para Venda em A dos Cunhados e Maceira Foto 9
Terreno P/ Prédio para Venda em A dos Cunhados e Maceira Foto 10
Terreno P/ Prédio para Venda em A dos Cunhados e Maceira Foto 11
Terreno P/ Prédio para Venda em A dos Cunhados e Maceira Foto 12
Terreno P/ Prédio para Venda em A dos Cunhados e Maceira Foto 13
Terreno P/ Prédio para Venda em A dos Cunhados e Maceira Foto 14
Terreno P/ Prédio para Venda em A dos Cunhados e Maceira Foto 15
Terreno P/ Prédio para Venda em A dos Cunhados e Maceira Foto 16
Terreno P/ Prédio para Venda em A dos Cunhados e Maceira Foto 17
Terreno P/ Prédio para Venda em A dos Cunhados e Maceira Foto 18
Terreno P/ Prédio para Venda em A dos Cunhados e Maceira Foto 19
Terreno P/ Prédio para Venda em A dos Cunhados e Maceira Foto 20
Terreno P/ Prédio para Venda em A dos Cunhados e Maceira Foto 21
Terreno P/ Prédio para Venda em A dos Cunhados e Maceira Foto 22
Terreno P/ Prédio para Venda em A dos Cunhados e Maceira Foto 23
Terreno P/ Prédio para Venda em A dos Cunhados e Maceira Foto 24
Terreno P/ Prédio para Venda em A dos Cunhados e Maceira Foto 25
Terreno P/ Prédio para Venda em A dos Cunhados e Maceira Foto 26
Terreno P/ Prédio para Venda em A dos Cunhados e Maceira Foto 27
Terreno P/ Prédio para Venda em A dos Cunhados e Maceira Foto 28
Terreno P/ Prédio para Venda em A dos Cunhados e Maceira Foto 29
Terreno P/ Prédio para Venda em A dos Cunhados e Maceira Foto 30
Clicky