Terreno P/ Prédio para Venda em Rio Tinto
4.500.000 €
Tipo
Terreno P/ Prédio
Negócio
Venda
Área Útil
16266 m²
Condição
Novo
Certificado Energético
Isento
Área do Terreno
16266 m²
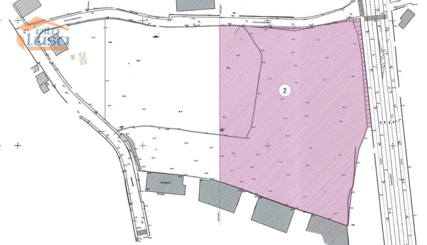
Terreno de Gaveto com 16.200 m2 na Avenida da Conduta, Gondomar
Se procura um terreno com enorme potencial de construção numa localização privilegiada, temos a solução ideal para si!
Apresentamos um terreno de gaveto com uma área de 16.200 m² localizado na Avenida da Conduta em Gondomar. Com viabilidade para construção de habitação, este terreno oferece uma oportunidade única para investidores ou construtores que desejam desenvolver um projeto imobiliário de sucesso.
A área do terreno permite a construção de várias unidades habitacionais, o que o torna ideal para a construção de um condomínio residencial exclusivo e com grande potencial de valorização. Além disso, a sua localização é privilegiada, com fácil acesso a transportes públicos, serviços, comércio e escolas.
Este terreno de gaveto possui características únicas, que o diferenciam de outros terrenos da região. A sua localização, as dimensões e o potencial construtivo são alguns dos fatores que tornam este terreno numa oportunidade excepcional para investidores que procuram investir num mercado imobiliário em constante crescimento.
Não perca esta oportunidade única e entre em contacto connosco para mais informações sobre este terreno excecional. Teremos todo o prazer em apresentar-lhe as potencialidades deste terreno e ajudá-lo a concretizar o seu projeto imobiliário.
Se você está a procurar ajuda com serviços de mediação de crédito, veio ao lugar certo! A nossa equipa especializada em mediação de crédito está aqui para oferecer suporte e orientação durante todo o processo.
Oferecemos uma variedade de serviços para atender às suas necessidades financeiras, incluindo:
1 - Análise e aconselhamento financeiro: os nossos especialistas irão analisar a sua situação financeira atual e oferecer conselhos personalizados para ajudá-lo a tomar decisões informadas.
2- Pesquisa de opções de crédito: faremos uma pesquisa abrangente das opções de crédito disponíveis no mercado, identificando as melhores soluções para você, conforme as suas necessidades e capacidade financeira.
3- Apoio na obtenção de crédito. Orientaremos durante todo o processo de obtenção de crédito, auxiliando na preparação de documentação, submissão de pedidos e acompanhamento junto às instituições financeiras.
4- Negociação de condições favoráveis. Utilizaremos a nossa experiência e conhecimento para negociar as melhores condições de crédito no seu nome, buscando taxas de juros competitivas e prazos adequados.
Acompanhamento contínuo: a nossa equipa estará disponível para responder a todas as suas dúvidas e fornecer suporte contínuo ao longo do seu relacionamento com a instituição financeira.
Independentemente das suas necessidades financeiras, estamos comprometidos em ajudá-lo a encontrar as melhores soluções de crédito. A nossa experiência e conhecimento do mercado nos permitem oferecer um serviço profissional e personalizado.
Entre em contacto connosco hoje mesmo para agendar uma consulta e descobrir como podemos ajudá-lo a obter o crédito de que precisa. Estamos aqui para orientá-lo e simplificar o processo, tornando a sua experiência mais fácil e tranquila.
Apresentamos um terreno de gaveto com uma área de 16.200 m² localizado na Avenida da Conduta em Gondomar. Com viabilidade para construção de habitação, este terreno oferece uma oportunidade única para investidores ou construtores que desejam desenvolver um projeto imobiliário de sucesso.
A área do terreno permite a construção de várias unidades habitacionais, o que o torna ideal para a construção de um condomínio residencial exclusivo e com grande potencial de valorização. Além disso, a sua localização é privilegiada, com fácil acesso a transportes públicos, serviços, comércio e escolas.
Este terreno de gaveto possui características únicas, que o diferenciam de outros terrenos da região. A sua localização, as dimensões e o potencial construtivo são alguns dos fatores que tornam este terreno numa oportunidade excepcional para investidores que procuram investir num mercado imobiliário em constante crescimento.
Não perca esta oportunidade única e entre em contacto connosco para mais informações sobre este terreno excecional. Teremos todo o prazer em apresentar-lhe as potencialidades deste terreno e ajudá-lo a concretizar o seu projeto imobiliário.
Se você está a procurar ajuda com serviços de mediação de crédito, veio ao lugar certo! A nossa equipa especializada em mediação de crédito está aqui para oferecer suporte e orientação durante todo o processo.
Oferecemos uma variedade de serviços para atender às suas necessidades financeiras, incluindo:
1 - Análise e aconselhamento financeiro: os nossos especialistas irão analisar a sua situação financeira atual e oferecer conselhos personalizados para ajudá-lo a tomar decisões informadas.
2- Pesquisa de opções de crédito: faremos uma pesquisa abrangente das opções de crédito disponíveis no mercado, identificando as melhores soluções para você, conforme as suas necessidades e capacidade financeira.
3- Apoio na obtenção de crédito. Orientaremos durante todo o processo de obtenção de crédito, auxiliando na preparação de documentação, submissão de pedidos e acompanhamento junto às instituições financeiras.
4- Negociação de condições favoráveis. Utilizaremos a nossa experiência e conhecimento para negociar as melhores condições de crédito no seu nome, buscando taxas de juros competitivas e prazos adequados.
Acompanhamento contínuo: a nossa equipa estará disponível para responder a todas as suas dúvidas e fornecer suporte contínuo ao longo do seu relacionamento com a instituição financeira.
Independentemente das suas necessidades financeiras, estamos comprometidos em ajudá-lo a encontrar as melhores soluções de crédito. A nossa experiência e conhecimento do mercado nos permitem oferecer um serviço profissional e personalizado.
Entre em contacto connosco hoje mesmo para agendar uma consulta e descobrir como podemos ajudá-lo a obter o crédito de que precisa. Estamos aqui para orientá-lo e simplificar o processo, tornando a sua experiência mais fácil e tranquila.
Localização
Rio Tinto, Gondomar, Porto
Informação do anúncio
ID do anúncio
1803055
Referência Externa
801231020
Atualizado em
26/04/2026 08:12:35
Anunciante
Chamada para a rede fixa nacional
Loja 01 - VILA LUSA - Gaia
AMI 7917
Referência do imóvel:
801231020
Consultor
Pedro Novais
Terreno P/ Prédio para Venda em Rio Tinto