Terreno para Venda em Quarteira
5.980.000 €
Tipo
Terreno
Negócio
Venda
Área Bruta
8527 m²
Área Útil
5007 m²
Condição
Não Aplicável
Certificado Energético
Isento
Área do Terreno
1500 m²
Terreno com Projeto Aprovado para 46 Apartamentos | Oportunidade de Investimento no Algarv
Terreno urbano com projeto aprovado para a construção de um edifício residencial com 46 apartamentos, localizado numa zona consolidada do Algarve, com ótimos acessos e enquadramento urbano qualificado.
Empreendimento pensado para responder à elevada procura por habitação contemporânea, tanto para residência permanente como para investimento.
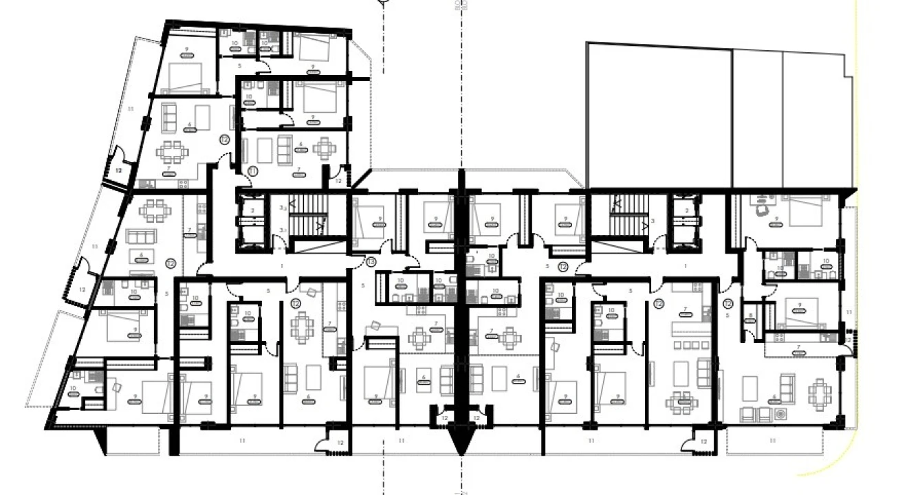
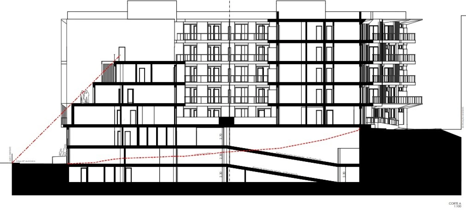
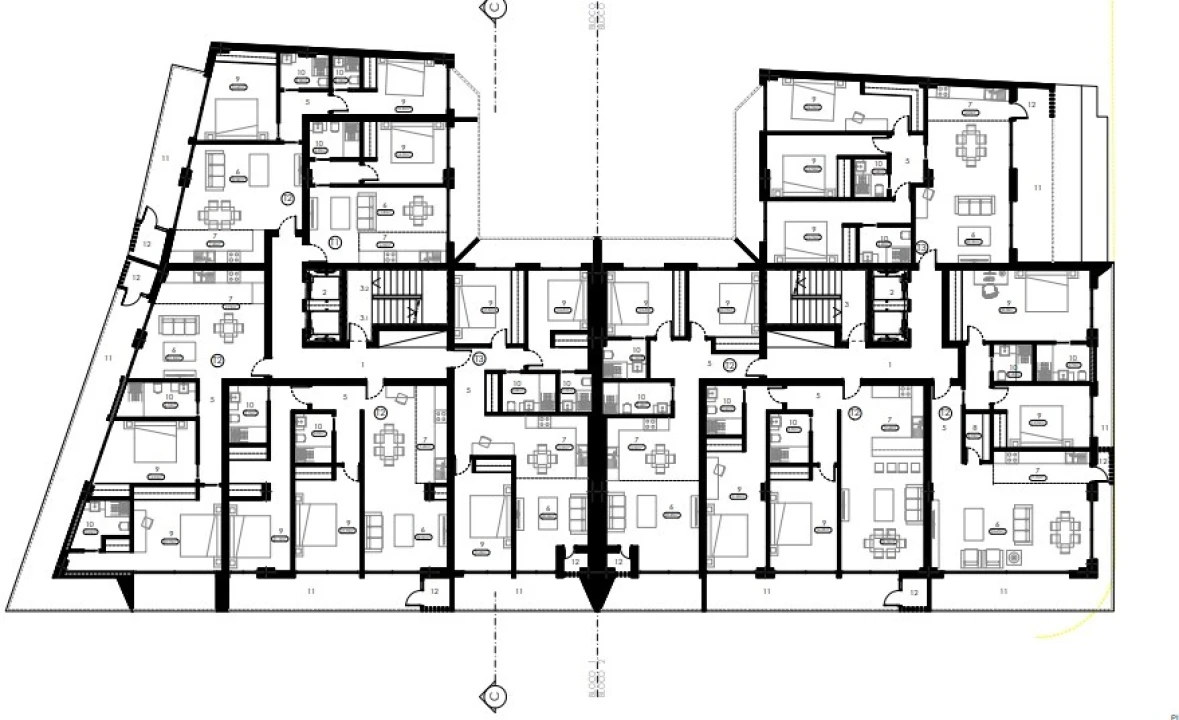
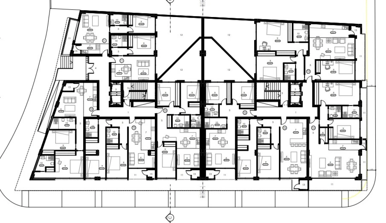
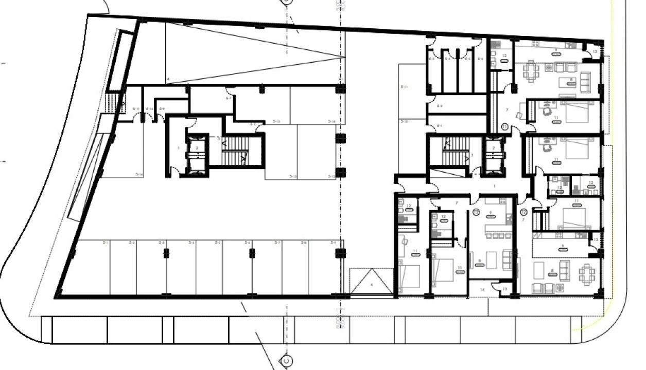
O projeto prevê um edifício com 2 blocos e 6 pisos, integrando 7 apartamentos T1, 32 apartamentos T2 e 7 apartamentos T3, oferecendo uma combinação equilibrada de tipologias familiares e unidades de investimento.
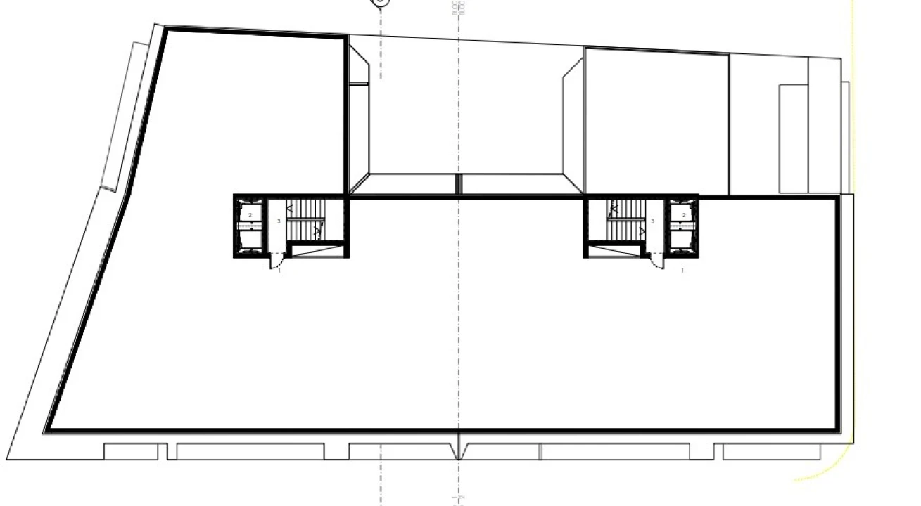
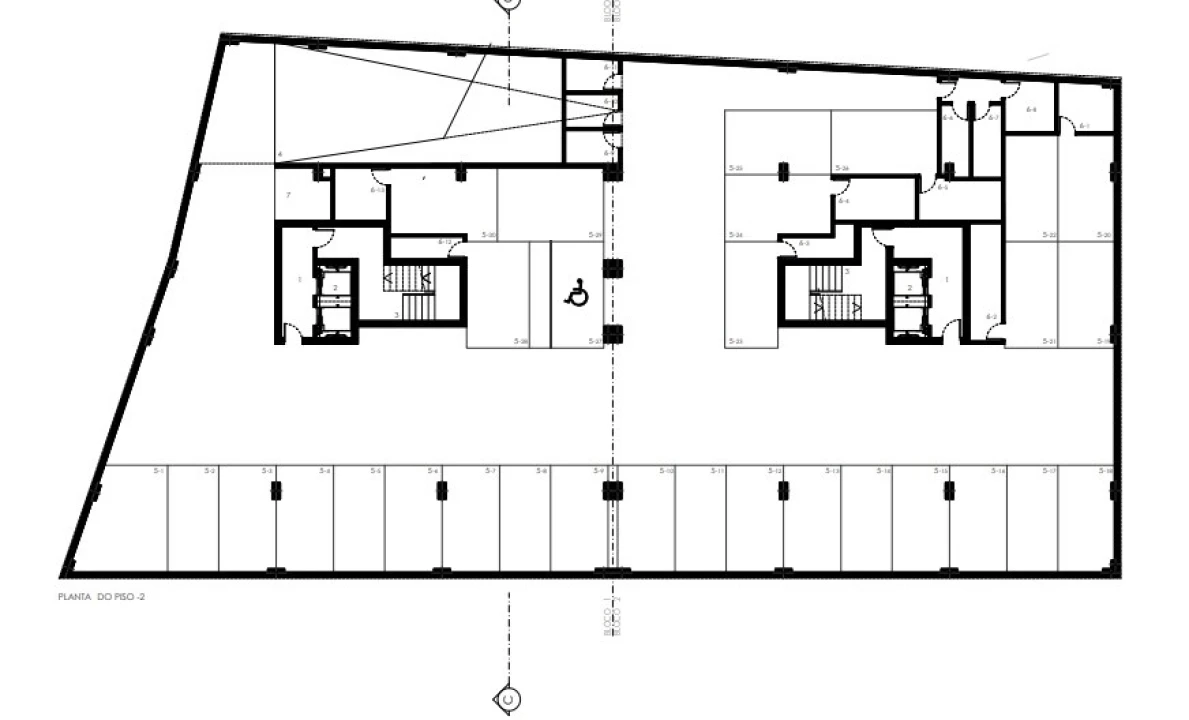
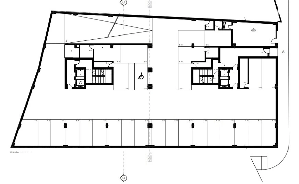
Dispõe de 74 lugares de estacionamento privativo em cave (incluindo lugares adaptados a mobilidade condicionada) e 8 lugares de estacionamento públicos, bem como arrecadações e sala de condomínio.
Inserido em zona urbana servida por comércio, serviços e transportes, o terreno beneficia de distâncias muito competitivas a vários pontos de interesse:
- 0,35 km - supermercados;
- 0,14 km - comércio, restaurantes e ginásio;
- 1 Km - acesso à A22;
- 1,2 km - Hospital de Loulé;
- 13 km - praias;
- 20 km - Aeroporto Internacional de Faro.
Com uma Área Bruta de Construção de 8,527 m2, este ativo posiciona-se como uma oportunidade de investimento premium na região.
Toda a documentação técnica e legal relevante encontra-se organizada e validada, incluindo memória descritiva, quadro de viabilidade, contrato de mediação, certidões, plantas e elementos de projeto aprovados.
Fale connosco para mais informações.
Empreendimento pensado para responder à elevada procura por habitação contemporânea, tanto para residência permanente como para investimento.
O projeto prevê um edifício com 2 blocos e 6 pisos, integrando 7 apartamentos T1, 32 apartamentos T2 e 7 apartamentos T3, oferecendo uma combinação equilibrada de tipologias familiares e unidades de investimento.
Dispõe de 74 lugares de estacionamento privativo em cave (incluindo lugares adaptados a mobilidade condicionada) e 8 lugares de estacionamento públicos, bem como arrecadações e sala de condomínio.
Inserido em zona urbana servida por comércio, serviços e transportes, o terreno beneficia de distâncias muito competitivas a vários pontos de interesse:
- 0,35 km - supermercados;
- 0,14 km - comércio, restaurantes e ginásio;
- 1 Km - acesso à A22;
- 1,2 km - Hospital de Loulé;
- 13 km - praias;
- 20 km - Aeroporto Internacional de Faro.
Com uma Área Bruta de Construção de 8,527 m2, este ativo posiciona-se como uma oportunidade de investimento premium na região.
Toda a documentação técnica e legal relevante encontra-se organizada e validada, incluindo memória descritiva, quadro de viabilidade, contrato de mediação, certidões, plantas e elementos de projeto aprovados.
Fale connosco para mais informações.
Localização
Quarteira, Loulé, Faro
Informação do anúncio
ID do anúncio
1804132
Referência Externa
0279/26
Atualizado em
25/04/2026 23:42:39
Anunciante
Chamada para a rede móvel nacional
Amber Star - Imobiliária
AMI 26490
Referência do imóvel:
0279/26
Terreno para Venda em Quarteira