Terreno para Venda em Almancil
1.650.000 €
Tipo
Terreno
Negócio
Venda
Condição
Não aplicável
Certificado Energético
A+
Área do Terreno
600 m²
Varandas do Lago – Terreno com projeto aprovado para moradia de 4 quartos
Situado na prestigiada zona de Varandas do Lago, entre a Quinta do Lago e Vale do Lobo, este lote com 600m² conta com projeto aprovado para uma moradia contemporânea com 4 quartos e 240m² de construção. Distribuída por três pisos, a propriedade combina arquitetura moderna com conforto e funcionalidade, oferecendo interiores amplos, agradáveis zonas exteriores e uma localização privilegiada próxima de alguns dos resorts mais exclusivos do Algarve.
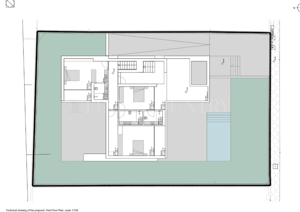
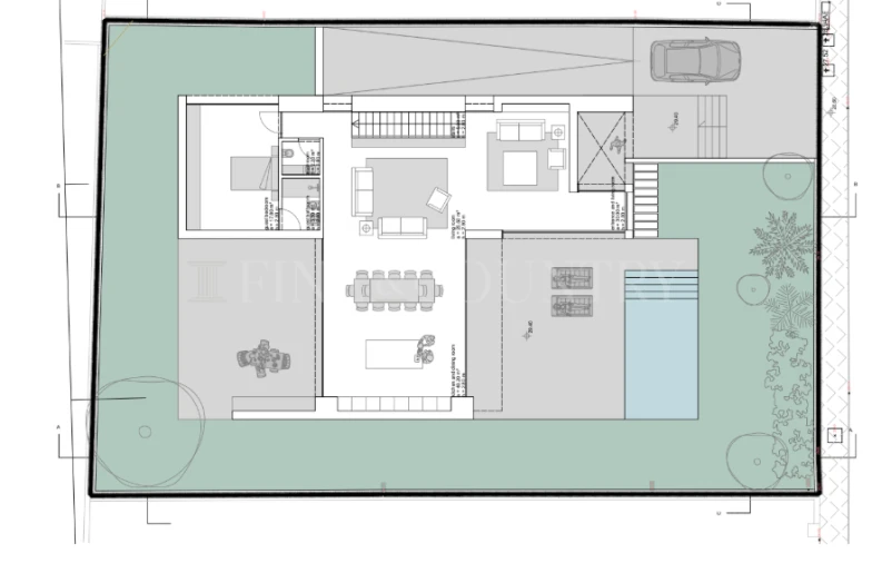
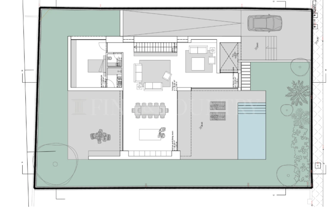
O projeto foi pensado para um estilo de vida atual, com o piso térreo a incluir um quarto em suite, bem como uma cozinha, sala de jantar e sala de estar em open space. As janelas do chão ao teto foram desenhadas para maximizar a entrada de luz natural e criar uma ligação fluida à zona da piscina. No primeiro piso, a moradia dispõe de mais três quartos em suite e de um terraço, proporcionando privacidade e conforto tanto para residência permanente como para receber família e amigos.
Entre os destaques adicionais encontram-se a cave, garagem, terraço na cobertura e acabamentos de luxo previstos em todo o projeto. O desenho da moradia valoriza a vivência entre interior e exterior, com terraços bem dimensionados e uma agradável zona de piscina, ideal para momentos de lazer ou convívio. Inserida numa urbanização consolidada, a propriedade beneficia ainda de proximidade a campos de golfe, praias, restaurantes e serviços, estando o Aeroporto de Faro a cerca de 20 minutos.
Esta é uma excelente oportunidade para adquirir um lote com projeto aprovado numa das localizações mais procuradas do Algarve. Seja para habitação própria, casa de férias ou investimento, esta futura moradia reúne forte apelo de estilo de vida e potencial de valorização no coração do Triângulo Dourado. Contacte-nos para mais informações ou para agendar uma visita ao local.
As características e equipamentos mencionados estão sujeitos a acordo e verificação entre o vendedor e o comprador.
Certificação energética: pre - A+
- Lote com 600m² em Varandas do Lago
- Projeto aprovado para moradia moderna
- 240m² de área de construção
- 4 quartos, todos previstos em suite
- 5 casas de banho distribuídas por três pisos
- Cozinha, sala de estar e sala de jantar em open space
- Janelas do chão ao teto para maior luz natural
- Cave, garagem e terraço na cobertura
- Zona de piscina privada e terraço no primeiro piso
- Perto de serviços, praias, golfe e a 20 minutos do Aeroporto de Faro
O projeto foi pensado para um estilo de vida atual, com o piso térreo a incluir um quarto em suite, bem como uma cozinha, sala de jantar e sala de estar em open space. As janelas do chão ao teto foram desenhadas para maximizar a entrada de luz natural e criar uma ligação fluida à zona da piscina. No primeiro piso, a moradia dispõe de mais três quartos em suite e de um terraço, proporcionando privacidade e conforto tanto para residência permanente como para receber família e amigos.
Entre os destaques adicionais encontram-se a cave, garagem, terraço na cobertura e acabamentos de luxo previstos em todo o projeto. O desenho da moradia valoriza a vivência entre interior e exterior, com terraços bem dimensionados e uma agradável zona de piscina, ideal para momentos de lazer ou convívio. Inserida numa urbanização consolidada, a propriedade beneficia ainda de proximidade a campos de golfe, praias, restaurantes e serviços, estando o Aeroporto de Faro a cerca de 20 minutos.
Esta é uma excelente oportunidade para adquirir um lote com projeto aprovado numa das localizações mais procuradas do Algarve. Seja para habitação própria, casa de férias ou investimento, esta futura moradia reúne forte apelo de estilo de vida e potencial de valorização no coração do Triângulo Dourado. Contacte-nos para mais informações ou para agendar uma visita ao local.
As características e equipamentos mencionados estão sujeitos a acordo e verificação entre o vendedor e o comprador.
Certificação energética: pre - A+
- Lote com 600m² em Varandas do Lago
- Projeto aprovado para moradia moderna
- 240m² de área de construção
- 4 quartos, todos previstos em suite
- 5 casas de banho distribuídas por três pisos
- Cozinha, sala de estar e sala de jantar em open space
- Janelas do chão ao teto para maior luz natural
- Cave, garagem e terraço na cobertura
- Zona de piscina privada e terraço no primeiro piso
- Perto de serviços, praias, golfe e a 20 minutos do Aeroporto de Faro
Localização
Almancil, Loulé, Faro
Informação do anúncio
ID do anúncio
1804198
Referência Externa
FC647GTA
Atualizado em
16/05/2026 00:31:13
Anunciante
Chamada para a rede fixa nacional
Fine Country Algarve
AMI 9767
Referência do imóvel:
FC647GTA
Terreno para Venda em Almancil