Terreno para Venda em Portimão
890.000 €
Tipo
Terreno
Negócio
Venda
Condição
Novo
Certificado Energético
Área do Terreno
2650 m²
Terreno Para Construção Venda em Portimão,Portimão
Uma oportunidade rara para desenvolver um projeto residencial contemporâneo numa zona em crescimento, combinando tranquilidade, acessibilidade e forte potencial de valorização. Este terreno urbano com 2.650 m² integra projeto para 7 moradias em fase final de aprovação, permitindo avançar com previsibilidade e rapidez para o mercado.
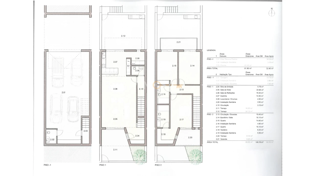
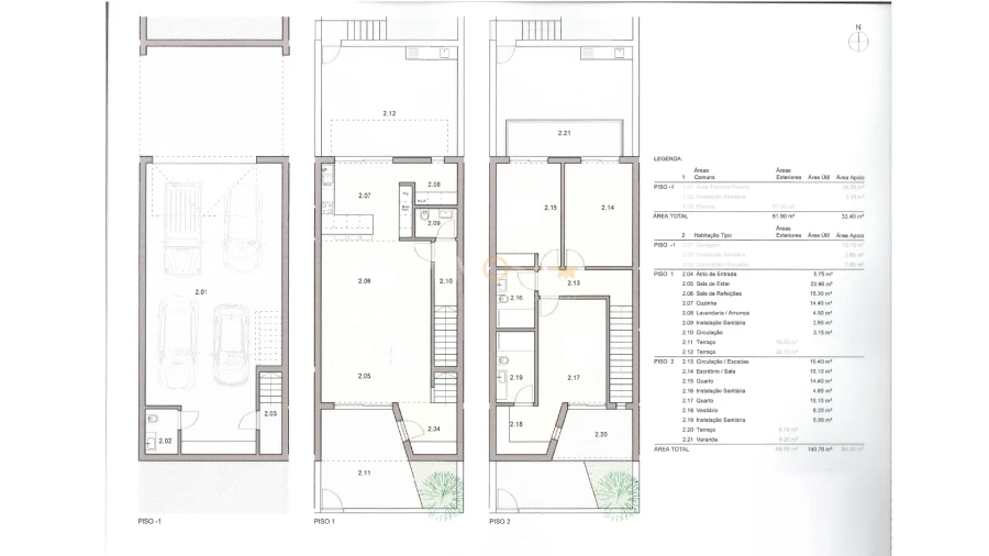
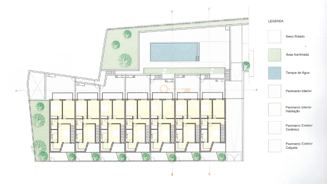
Características Área total do terreno: 2.650 m² Área de construção prevista: 1.200 m² Projeto para 7 moradias com conceito moderno Processo de aprovação em fase final Configuração ideal para promoção, revenda ou exploração turística Excelente exposição solar e enquadramento naturalMeio envolvente Zona residencial tranquila e em expansão urbana Proximidade a praias, comércio, restauração e serviços essenciais Bons acessos às principais vias e mobilidade facilitada Ambiente equilibrado entre qualidade de vida e dinamismo turístico Mercado local com procura consistente, tanto nacional como internacionalPontos fortes Projeto praticamente aprovado → redução de prazos e risco de licenciamento Escala equilibrada que permite diversificar estratégias de saída Venda unitária com elevada liquidez Arrendamento de longa duração Exploração turística (AL / short-rent) Inserção num mercado com escassez de produto novo e bem localizado Ativo com perfil ideal para investidores e promotores que valorizam previsibilidade e retornoUm terreno preparado para transformar visão em produto imobiliário competitivo, num dos mercados mais dinâmicos do Algarve.
Uma base sólida para construir, valorizar e rentabilizar.
Características Área total do terreno: 2.650 m² Área de construção prevista: 1.200 m² Projeto para 7 moradias com conceito moderno Processo de aprovação em fase final Configuração ideal para promoção, revenda ou exploração turística Excelente exposição solar e enquadramento naturalMeio envolvente Zona residencial tranquila e em expansão urbana Proximidade a praias, comércio, restauração e serviços essenciais Bons acessos às principais vias e mobilidade facilitada Ambiente equilibrado entre qualidade de vida e dinamismo turístico Mercado local com procura consistente, tanto nacional como internacionalPontos fortes Projeto praticamente aprovado → redução de prazos e risco de licenciamento Escala equilibrada que permite diversificar estratégias de saída Venda unitária com elevada liquidez Arrendamento de longa duração Exploração turística (AL / short-rent) Inserção num mercado com escassez de produto novo e bem localizado Ativo com perfil ideal para investidores e promotores que valorizam previsibilidade e retornoUm terreno preparado para transformar visão em produto imobiliário competitivo, num dos mercados mais dinâmicos do Algarve.
Uma base sólida para construir, valorizar e rentabilizar.
Localização
Portimão, Portimão, Faro
Informação do anúncio
ID do anúncio
1804569
Referência Externa
T333
Atualizado em
23/04/2026 02:12:36
Terreno para Venda em Portimão