Terreno para Venda em Lavos
60.000 €
Tipo
Terreno
Negócio
Venda
Área Bruta
244 m²
Área Útil
244 m²
Condição
Novo
Certificado Energético
Área do Terreno
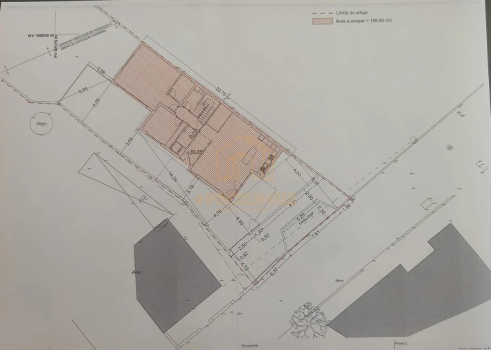
657 m²
Terreno Para Construção Venda em Lavos,Figueira da Foz
Terreno com projeto para construção de moradia.
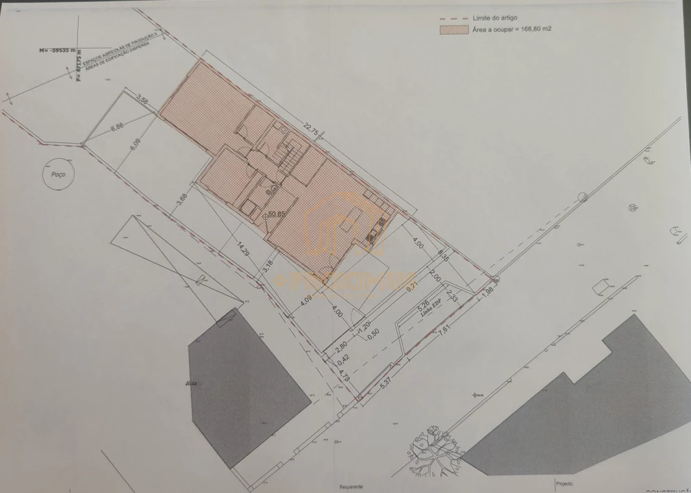
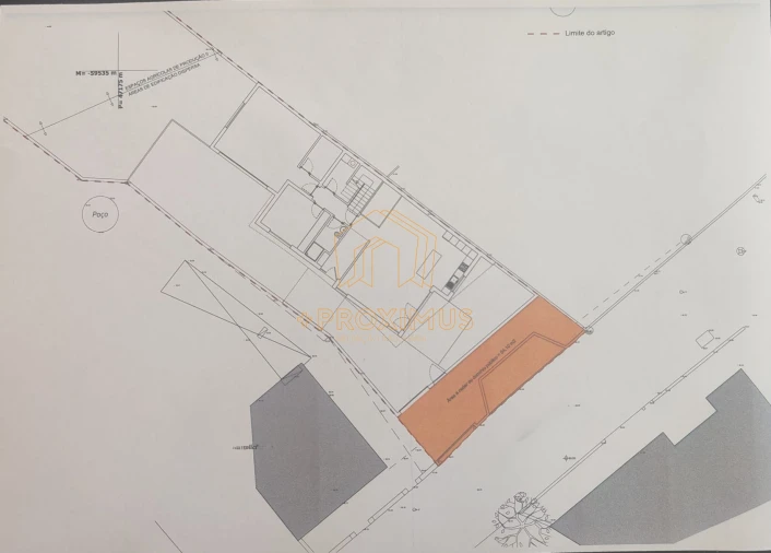
Terreno com uma área total de 657m2, localizado em Santa Luzia de Lavos com projeto para construção de moradia de arquitetura moderna.
Este projeto permite a construção de uma moradia de arquitetura moderna, composta por 2 pisos, garagem para 2 carros e logradouro.
Trata-se de uma moradia T4, com uma área habitacional de 244 m2 inserido numa zona de moradias unifamiliares.
Esta moradia de áreas amplas e boas entradas de luz, brindada por um jardim interior, encontra-se projetada da seguinte forma:
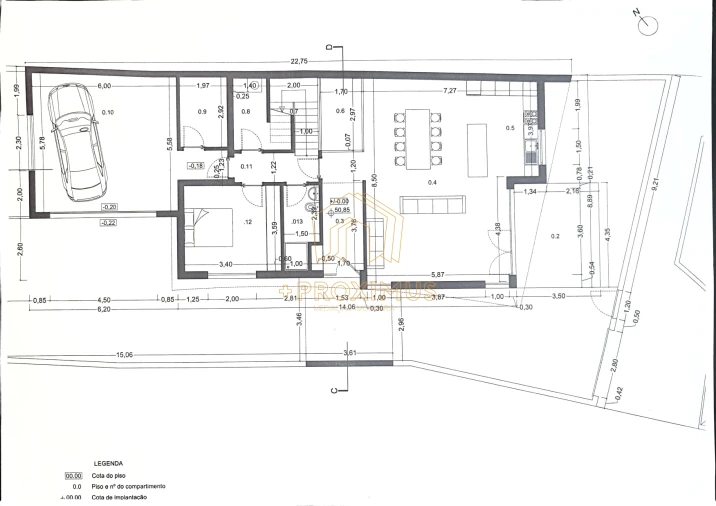
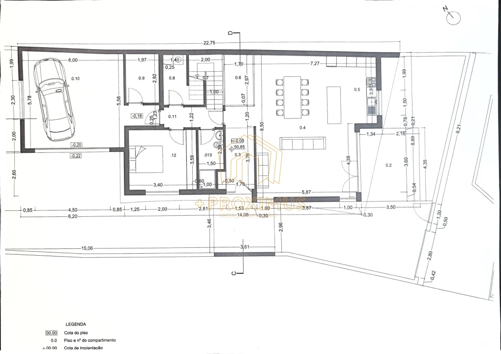
No R/C:
- Sala comum
- Cozinha
- Quarto
- WC social
- Acesso ao 1º piso
- Jardim interior
No 1º piso:
- Uma suite
- Closet
- Dois quartos
- WC Social
- Varanda coberta envolvente
Este pode ser o terreno que lhe permite dar início à moradia que procura.
Marque já a sua visita!
A equipa +PROXIMUS está ao seu dispor.
Escolha trabalhar connosco...
Com a +PROXIMUS tem um profissional que o acompanha.
Sabemos que o momento da compra ou venda de um imóvel é muito mais do que uma transação, por isso, queremos mantê-lo informado de tudo o que está a acontecer.
Vamos caminhar lado a lado.
Temos pessoas que formamos para serem consultores imobiliários dedicados, atenciosos, focados nos clientes e nos negócios, objetivados e que trabalham com a máxima transparência.
Reconhecemos que todos os passos devem ser divididos consigo de forma a sentir-se sempre representado ao longo do processo de compra ou venda do seu imóvel.
Trazemos TRANSPARÊNCIA ao negócio, apoiamos na parte processual, administrativa e apoio no crédito habitação, crédito para obras de forma a que chegue ao final do processo com o ACOMPANHAMENTO devido.
Criamos compromisso para garantir um atendimento de EXCELÊNCIA.
Afinal a nossa área de negócio não são as casas, são as pessoas!
Confie num profissional da +PROXIMUS para o ajudar a encontrar o que procura.
Vamos trabalhar juntos?
Terreno com uma área total de 657m2, localizado em Santa Luzia de Lavos com projeto para construção de moradia de arquitetura moderna.
Este projeto permite a construção de uma moradia de arquitetura moderna, composta por 2 pisos, garagem para 2 carros e logradouro.
Trata-se de uma moradia T4, com uma área habitacional de 244 m2 inserido numa zona de moradias unifamiliares.
Esta moradia de áreas amplas e boas entradas de luz, brindada por um jardim interior, encontra-se projetada da seguinte forma:
No R/C:
- Sala comum
- Cozinha
- Quarto
- WC social
- Acesso ao 1º piso
- Jardim interior
No 1º piso:
- Uma suite
- Closet
- Dois quartos
- WC Social
- Varanda coberta envolvente
Este pode ser o terreno que lhe permite dar início à moradia que procura.
Marque já a sua visita!
A equipa +PROXIMUS está ao seu dispor.
Escolha trabalhar connosco...
Com a +PROXIMUS tem um profissional que o acompanha.
Sabemos que o momento da compra ou venda de um imóvel é muito mais do que uma transação, por isso, queremos mantê-lo informado de tudo o que está a acontecer.
Vamos caminhar lado a lado.
Temos pessoas que formamos para serem consultores imobiliários dedicados, atenciosos, focados nos clientes e nos negócios, objetivados e que trabalham com a máxima transparência.
Reconhecemos que todos os passos devem ser divididos consigo de forma a sentir-se sempre representado ao longo do processo de compra ou venda do seu imóvel.
Trazemos TRANSPARÊNCIA ao negócio, apoiamos na parte processual, administrativa e apoio no crédito habitação, crédito para obras de forma a que chegue ao final do processo com o ACOMPANHAMENTO devido.
Criamos compromisso para garantir um atendimento de EXCELÊNCIA.
Afinal a nossa área de negócio não são as casas, são as pessoas!
Confie num profissional da +PROXIMUS para o ajudar a encontrar o que procura.
Vamos trabalhar juntos?
Localização
Lavos, Figueira da Foz, Coimbra
Informação do anúncio
ID do anúncio
1804694
Referência Externa
MP503
Atualizado em
23/04/2026 02:22:56
Terreno para Venda em Lavos