Terreno para Venda em Constancia
54.000 €
Tipo
Terreno
Negócio
Venda
Área Útil
180 m²
Condição
Novo
Certificado Energético
Isento
Área do Terreno
442 m²
Descrição
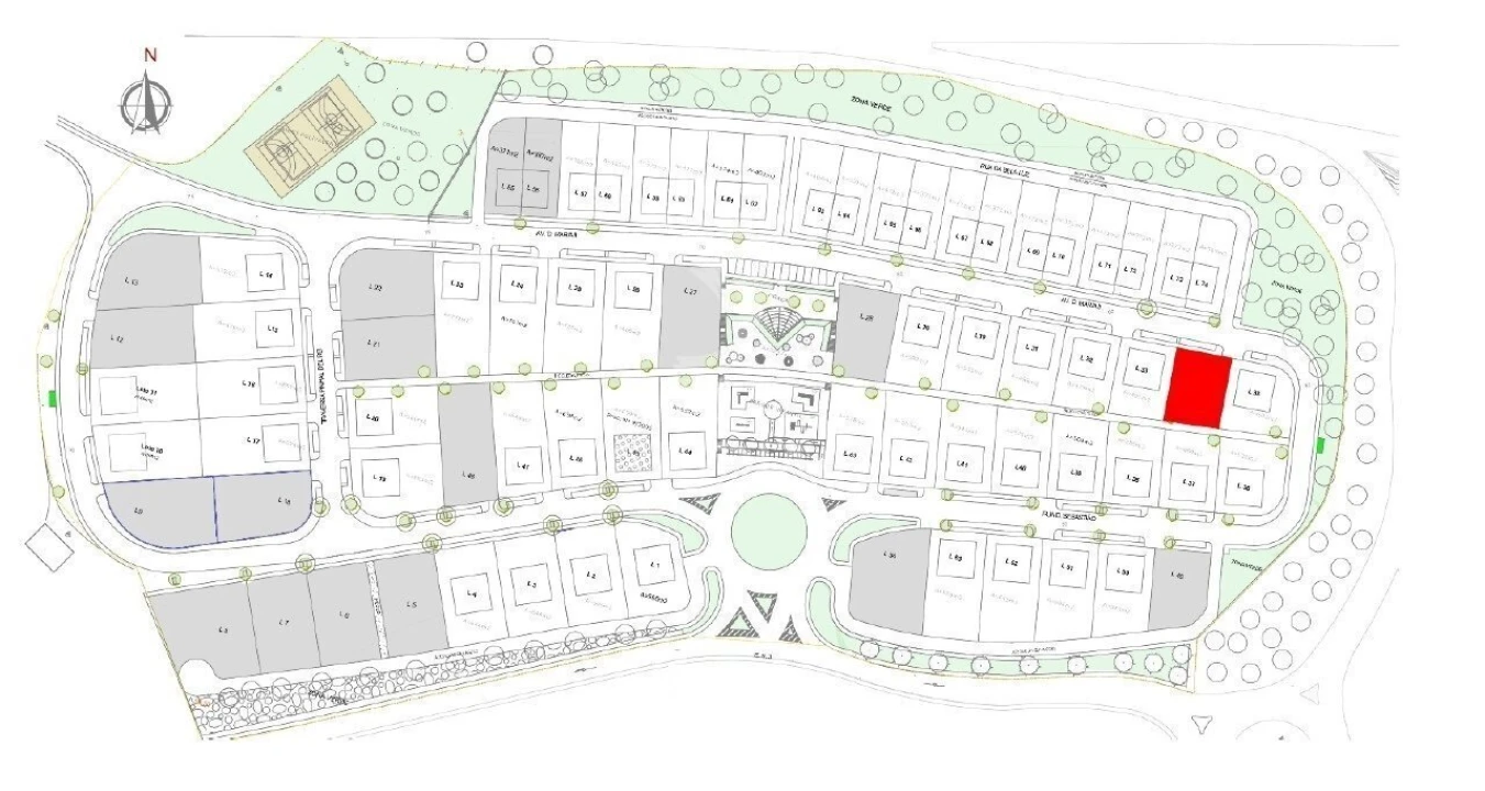
Lote para construção de moradia unifamiliar.
Na simpática vila de Constância, onde o Tejo e o Zêzere se encontram, temos para venda, na Urbanização Pinhal d’El Rei, este lote para construção de moradia unifamiliar.
Com acessos facilitados pela proximidade ao acesso à A23, deixa a sua futura casa a 10 minutos de Abrantes e a cerca de uma hora de Lisboa.
Nas proximidades encontramos os principais serviços: escolas, creche, centro de saúde, farmácia, GNR, bem como comércio local. Estará também a poucos minutos da barragem de Castelo do Bode e da praia fluvial de Constância.
Com uma exposição solar de referência, este lote com 442m², permite uma edificação com 180m² de implantação e 320m² de área bruta de construção, podendo ser distribuídos até dois pisos, a que se pode acrescentar cave.
Em pleno contacto com a natureza e perto de tudo, assim será a sua nova casa. Marque a sua visita.
Na simpática vila de Constância, onde o Tejo e o Zêzere se encontram, temos para venda, na Urbanização Pinhal d’El Rei, este lote para construção de moradia unifamiliar.
Com acessos facilitados pela proximidade ao acesso à A23, deixa a sua futura casa a 10 minutos de Abrantes e a cerca de uma hora de Lisboa.
Nas proximidades encontramos os principais serviços: escolas, creche, centro de saúde, farmácia, GNR, bem como comércio local. Estará também a poucos minutos da barragem de Castelo do Bode e da praia fluvial de Constância.
Com uma exposição solar de referência, este lote com 442m², permite uma edificação com 180m² de implantação e 320m² de área bruta de construção, podendo ser distribuídos até dois pisos, a que se pode acrescentar cave.
Em pleno contacto com a natureza e perto de tudo, assim será a sua nova casa. Marque a sua visita.
Localização
Constancia, Constância, Santarém
Informação do anúncio
ID do anúncio
1804970
Referência Externa
PD-059514
Atualizado em
26/04/2026 07:17:34
Terreno para Venda em Constancia