Apartamento T3 para Venda em Gondomar (São Cosme), Valbom e Jovim
460.000 €
Tipo
Apartamento
Negócio
Venda
Ano de Construção
2026
Quartos
3
Casas de Banho
3
Área Útil
117 m²
Garagem
2 lugares
Condição
Em construção
Certificado Energético
A
Área do Terreno
143 m²
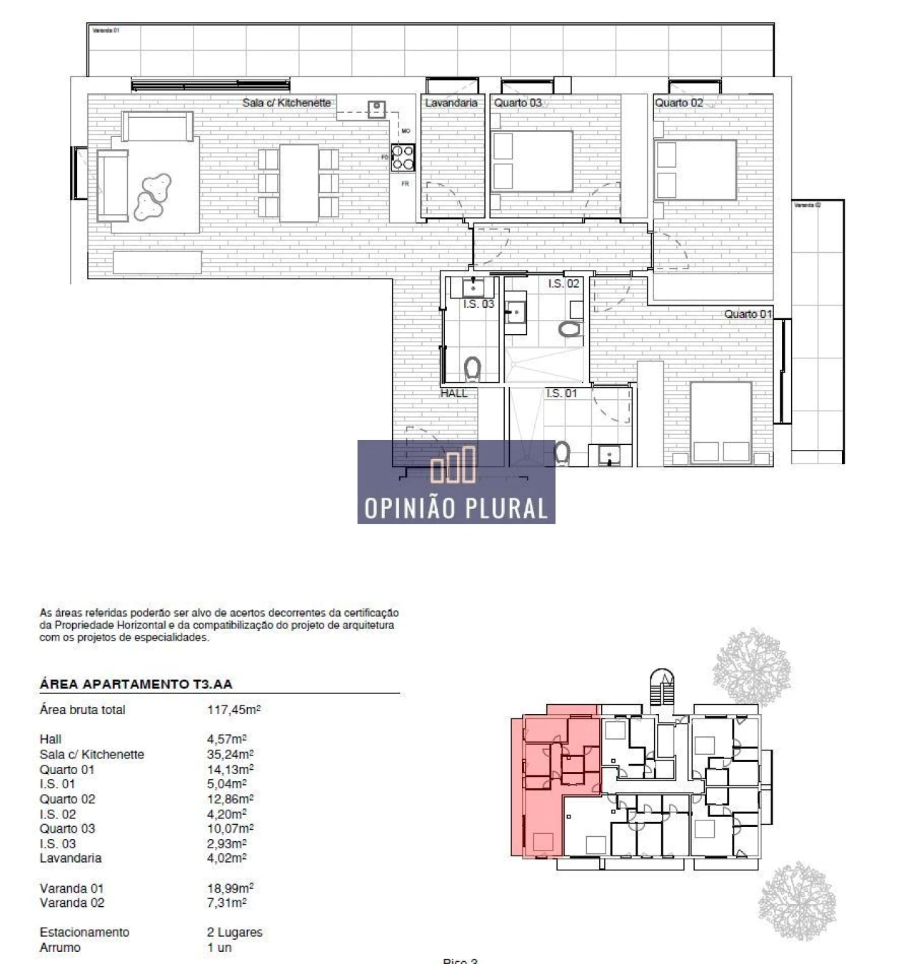
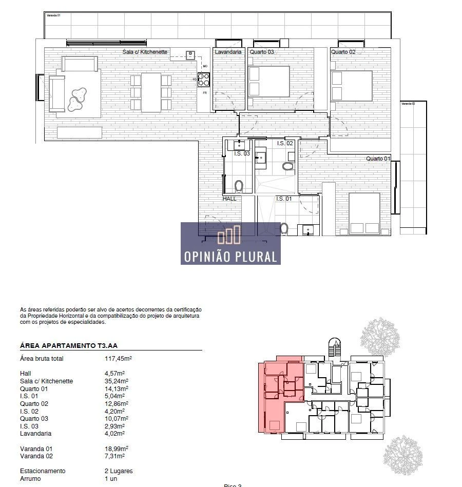
T3 de Luxo com Varanda e Garagem Dupla | Haven Terrazza – Valbom
Apartamento T3 (AA) Novo com Varanda, Garagem Dupla, Arrumos e Acabamentos de Luxo
Haven Terrazza | Valbom – Gondomar
Apresentamos um apartamento T3 novo, com varanda, garagem para 2 veículos e arrumos com acabamentos de elevada qualidade, inserido no prestigiado empreendimento Haven Terrazza, um projeto residencial de segmento premium localizado na freguesia de Valbom, concelho de Gondomar, a escassos minutos do Porto.
Habitação contemporânea com identidade, conforto e exclusividade
O Haven Terrazza foi concebido para redefinir o conceito de habitação moderna em Valbom, afirmando-se como um empreendimento de referência, onde a arquitetura contemporânea, o conforto e a qualidade construtiva se conjugam para proporcionar uma experiência residencial distinta.
Implantado numa zona elevada e privilegiada, este condomínio privado distingue-se pela sua localização estratégica, oferecendo vistas amplas e desafogadas sobre o Porto, Vila Nova de Gaia, o rio Douro, zonas verdes e a envolvente urbana.
Mais do que um espaço para habitar, o Haven Terrazza é um projeto pensado ao detalhe, que valoriza o design, a funcionalidade e a exclusividade, proporcionando um equilíbrio perfeito entre privacidade, elegância e bem-estar.
Com linhas arquitetónicas modernas e uma implantação cuidada, apresenta-se como a escolha ideal para quem valoriza qualidade de vida, proximidade à cidade e uma envolvente rica em conveniências, sem abdicar da tranquilidade.
Um Empreendimento de Excelência
O Haven Terrazza distingue-se pelos seus elevados padrões de qualidade, sofisticação e atenção ao detalhe, evidentes tanto na construção como nos acabamentos.
O empreendimento é composto por 30 frações habitacionais, distribuídas pelas tipologias T1, T2 e T3, todas com:
• Áreas amplas e bem distribuídas
• Excelente luminosidade natural
• Varandas generosas, ideais para momentos de lazer e convívio
Tudo em perfeita harmonia com um ambiente de tranquilidade e conforto.
Orientação Solar: Norte/Poente/Sul
Localização Privilegiada
Situado em Valbom, o empreendimento beneficia de uma localização estratégica:
• A cerca de 3 km do centro de Gondomar
• A aproximadamente 10 minutos do centro do Porto
• A cerca de 20 minutos do Aeroporto Francisco Sá Carneiro
A envolvente é calma e aprazível, contando com uma vasta oferta de comércio, serviços e equipamentos, nomeadamente:
• Bancos, farmácias, escolas básicas e secundárias e hipermercados
• Piscinas e Pavilhão Municipal de Valbom
• Diversas opções de transporte público
• Proximidade à Marina do Freixo (≈ 3 km)
• A aproximadamente 8 km do Aeroporto Internacional Dr. Francisco Sá Carneiro
Excelentes Acessibilidades
A localização permite rápidos e eficientes acessos aos principais eixos rodoviários — A3, A4, A28 e A44 — garantindo ligações diretas ao Porto, Braga, Vila Nova de Gaia e Lisboa.
Obra e Prazos
• Início da construção: Julho de 2026
• Conclusão prevista: dezembro de 2028
• Prazo estimado de entrega: 24 meses após o início da obra
• Durante a fase de construção, existe a possibilidade de personalização dos acabamentos interiores, permitindo adaptar o apartamento ao seu gosto e estilo de vida.
Detalhes Técnicos e Acabamentos de Elevada Qualidade
Estrutura e Isolamento
• Fachadas ventiladas com isolamento térmico em pedra natural ou mosaico imitação de pedra
• Cobertura plana
• Caixilharia em alumínio anodizado com corte térmico e vidro duplo
• Isolamento acústico entre frações com lã mineral
• Isolamento térmico em poliestireno extrudido nas paredes exteriores
• Isolamento acústico entre pavimentos com tela de polietileno
Conforto e Funcionalidade
• Vídeo porteiro a cores
• Estores blackout elétricos nos quartos
• Portões seccionados automáticos com comando à distância
• Sistema de ventilação mecânica
• Climatização por ar condicionado
• Bomba de calor para produção de águas quentes sanitárias (AQS)
• Tetos falsos em todo o apartamento, com sancas para cortinados e iluminação LED embutida
Materiais e Design
• Pavimento vinílico flutuante em halls, quartos, sala e cozinha
• Carpintaria lacada, portas de altura total e dobradiças ocultas
• Cozinhas totalmente equipadas com:
• Móveis lacados
• Tampo e lava-loiça em Krion branco da Porcelanosa ou equivalente
• Torneiras Bruma ou equivalente
• Eletrodomésticos Siemens ou equivalente: placa de indução, forno, micro-ondas, frigorífico combinado, máquina de lavar loiça e exaustor
• Lavandaria independente
Espaços Interiores
• Três quartos, sendo um deles suite, com closet e roupeiros embutidos e acesso direto à varanda
• Sala ampla em open space, com acesso direto á varanda com excelente luminosidade natural
• Instalações sanitárias com:
• Revestimento cerâmico retificado
• Louças sanitárias suspensas
• Base de duche com resguardo em vidro temperado
• Lavatório de pousar e misturadoras monocomando
Garagem e Sustentabilidade
• Lugar de garagem para 2 veículos e arrumos com ponto de carregamento para veículos elétricos
• Classificação energética A, refletindo o compromisso com a eficiência energética e a sustentabilidade
Notas Importantes
• As imagens apresentadas são meramente ilustrativas e não vinculativas, podendo sofrer alterações de caráter técnico, legal ou comercial
• As áreas indicadas são aproximadas, correspondendo a áreas brutas e úteis privativas
Conclusão
O Haven Terrazza é a escolha ideal para quem procura um estilo de vida moderno, confortável e sofisticado, reunindo todas as condições para uma vivência de elevada qualidade, num ambiente seguro, bem localizado e com forte potencial de valorização.
Um investimento seguro e uma oportunidade única no mercado imobiliário da região.
Haven Terrazza | Valbom – Gondomar
Apresentamos um apartamento T3 novo, com varanda, garagem para 2 veículos e arrumos com acabamentos de elevada qualidade, inserido no prestigiado empreendimento Haven Terrazza, um projeto residencial de segmento premium localizado na freguesia de Valbom, concelho de Gondomar, a escassos minutos do Porto.
Habitação contemporânea com identidade, conforto e exclusividade
O Haven Terrazza foi concebido para redefinir o conceito de habitação moderna em Valbom, afirmando-se como um empreendimento de referência, onde a arquitetura contemporânea, o conforto e a qualidade construtiva se conjugam para proporcionar uma experiência residencial distinta.
Implantado numa zona elevada e privilegiada, este condomínio privado distingue-se pela sua localização estratégica, oferecendo vistas amplas e desafogadas sobre o Porto, Vila Nova de Gaia, o rio Douro, zonas verdes e a envolvente urbana.
Mais do que um espaço para habitar, o Haven Terrazza é um projeto pensado ao detalhe, que valoriza o design, a funcionalidade e a exclusividade, proporcionando um equilíbrio perfeito entre privacidade, elegância e bem-estar.
Com linhas arquitetónicas modernas e uma implantação cuidada, apresenta-se como a escolha ideal para quem valoriza qualidade de vida, proximidade à cidade e uma envolvente rica em conveniências, sem abdicar da tranquilidade.
Um Empreendimento de Excelência
O Haven Terrazza distingue-se pelos seus elevados padrões de qualidade, sofisticação e atenção ao detalhe, evidentes tanto na construção como nos acabamentos.
O empreendimento é composto por 30 frações habitacionais, distribuídas pelas tipologias T1, T2 e T3, todas com:
• Áreas amplas e bem distribuídas
• Excelente luminosidade natural
• Varandas generosas, ideais para momentos de lazer e convívio
Tudo em perfeita harmonia com um ambiente de tranquilidade e conforto.
Orientação Solar: Norte/Poente/Sul
Localização Privilegiada
Situado em Valbom, o empreendimento beneficia de uma localização estratégica:
• A cerca de 3 km do centro de Gondomar
• A aproximadamente 10 minutos do centro do Porto
• A cerca de 20 minutos do Aeroporto Francisco Sá Carneiro
A envolvente é calma e aprazível, contando com uma vasta oferta de comércio, serviços e equipamentos, nomeadamente:
• Bancos, farmácias, escolas básicas e secundárias e hipermercados
• Piscinas e Pavilhão Municipal de Valbom
• Diversas opções de transporte público
• Proximidade à Marina do Freixo (≈ 3 km)
• A aproximadamente 8 km do Aeroporto Internacional Dr. Francisco Sá Carneiro
Excelentes Acessibilidades
A localização permite rápidos e eficientes acessos aos principais eixos rodoviários — A3, A4, A28 e A44 — garantindo ligações diretas ao Porto, Braga, Vila Nova de Gaia e Lisboa.
Obra e Prazos
• Início da construção: Julho de 2026
• Conclusão prevista: dezembro de 2028
• Prazo estimado de entrega: 24 meses após o início da obra
• Durante a fase de construção, existe a possibilidade de personalização dos acabamentos interiores, permitindo adaptar o apartamento ao seu gosto e estilo de vida.
Detalhes Técnicos e Acabamentos de Elevada Qualidade
Estrutura e Isolamento
• Fachadas ventiladas com isolamento térmico em pedra natural ou mosaico imitação de pedra
• Cobertura plana
• Caixilharia em alumínio anodizado com corte térmico e vidro duplo
• Isolamento acústico entre frações com lã mineral
• Isolamento térmico em poliestireno extrudido nas paredes exteriores
• Isolamento acústico entre pavimentos com tela de polietileno
Conforto e Funcionalidade
• Vídeo porteiro a cores
• Estores blackout elétricos nos quartos
• Portões seccionados automáticos com comando à distância
• Sistema de ventilação mecânica
• Climatização por ar condicionado
• Bomba de calor para produção de águas quentes sanitárias (AQS)
• Tetos falsos em todo o apartamento, com sancas para cortinados e iluminação LED embutida
Materiais e Design
• Pavimento vinílico flutuante em halls, quartos, sala e cozinha
• Carpintaria lacada, portas de altura total e dobradiças ocultas
• Cozinhas totalmente equipadas com:
• Móveis lacados
• Tampo e lava-loiça em Krion branco da Porcelanosa ou equivalente
• Torneiras Bruma ou equivalente
• Eletrodomésticos Siemens ou equivalente: placa de indução, forno, micro-ondas, frigorífico combinado, máquina de lavar loiça e exaustor
• Lavandaria independente
Espaços Interiores
• Três quartos, sendo um deles suite, com closet e roupeiros embutidos e acesso direto à varanda
• Sala ampla em open space, com acesso direto á varanda com excelente luminosidade natural
• Instalações sanitárias com:
• Revestimento cerâmico retificado
• Louças sanitárias suspensas
• Base de duche com resguardo em vidro temperado
• Lavatório de pousar e misturadoras monocomando
Garagem e Sustentabilidade
• Lugar de garagem para 2 veículos e arrumos com ponto de carregamento para veículos elétricos
• Classificação energética A, refletindo o compromisso com a eficiência energética e a sustentabilidade
Notas Importantes
• As imagens apresentadas são meramente ilustrativas e não vinculativas, podendo sofrer alterações de caráter técnico, legal ou comercial
• As áreas indicadas são aproximadas, correspondendo a áreas brutas e úteis privativas
Conclusão
O Haven Terrazza é a escolha ideal para quem procura um estilo de vida moderno, confortável e sofisticado, reunindo todas as condições para uma vivência de elevada qualidade, num ambiente seguro, bem localizado e com forte potencial de valorização.
Um investimento seguro e uma oportunidade única no mercado imobiliário da região.
Localização
Gondomar (São Cosme), Valbom e Jovim, Gondomar, Porto
Informação do anúncio
ID do anúncio
1805090
Referência Externa
EMPHVT-AA
Atualizado em
26/04/2026 08:03:54
Anunciante
Chamada para a rede móvel nacional
Opinião Plural - Mediação Imobiliária, Lda
AMI 15071
Referência do imóvel:
EMPHVT-AA
Apartamento T3 para Venda em Gondomar (São Cosme), Valbom e Jovim