Quinta para Venda em Teixeira e Teixeiró
120.000 €
Tipo
Quinta
Negócio
Venda
Área Útil
7300 m²
Condição
Venda em Projecto
Certificado Energético
Isento
Área do Terreno
7300 m²
TERRENO com 7300m2 com PROJETO | ALDEIA DE MAFÓMEDES | BAIÃO | TEIXEIRÓ | SERRA DO MARÃO
ALDEIA DE MAFÓMEDES | BAIÃO
TEIXEIRÓ | SERRA DO MARÃO
TERRENO com 7300m2
Tratam-se de 3 Artigos Rústicos
(1 com 400,00m2; 1 com 2.417,00m2 e 1 com 4.526,00m2)
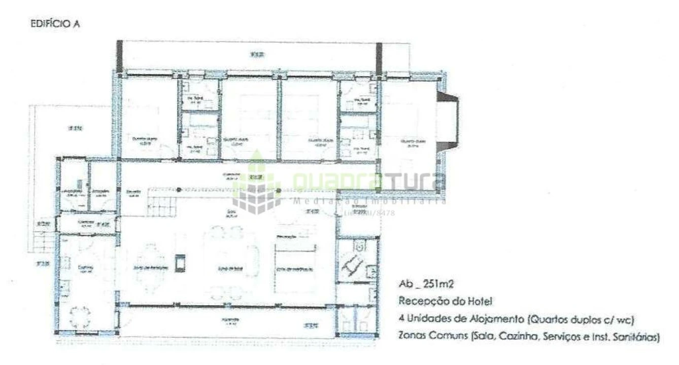
Para estes Terrenos existe um projeto Aprovado para um HOTEL RURAL, com 10 unidades de alojamento, distribuídas por uma casa-mãe com Ab de 251m2 (com 4 suites, amplas zonas de estar, de refeição e comuns, uma cozinha e zonas de pessoal) e 6 pequenos edifícios autónomos no exterior com Ab de 25m2 cada (2 dos quais são apartamentos em estúdio), com capacidade para alojar entre 20 a 30 pessoas.
Está igualmente prevista a construção de um pavilhão, com Ab de 133m2, de apoio independente, que permitirá a prática de diversos eventos.
Nos espaços exteriores existem muitas áreas para prática de eventos ao ar livre, é possível compor recantos que realcem a beleza natural do lugar, permitem descansar, entre muitas outras atividades a pensar no âmbito dos eventos e retiros de fim-de-semana.
- Cascata de Mafómedes a 650 metros
- Praia Fluvial de Mafómedes a 1700 metros
Para Vender, Comprar, Arrendar. Não hesite, fale Connosco!
QUADRATURA
...porque cada casa é um caso!
TEIXEIRÓ | SERRA DO MARÃO
TERRENO com 7300m2
Tratam-se de 3 Artigos Rústicos
(1 com 400,00m2; 1 com 2.417,00m2 e 1 com 4.526,00m2)
Para estes Terrenos existe um projeto Aprovado para um HOTEL RURAL, com 10 unidades de alojamento, distribuídas por uma casa-mãe com Ab de 251m2 (com 4 suites, amplas zonas de estar, de refeição e comuns, uma cozinha e zonas de pessoal) e 6 pequenos edifícios autónomos no exterior com Ab de 25m2 cada (2 dos quais são apartamentos em estúdio), com capacidade para alojar entre 20 a 30 pessoas.
Está igualmente prevista a construção de um pavilhão, com Ab de 133m2, de apoio independente, que permitirá a prática de diversos eventos.
Nos espaços exteriores existem muitas áreas para prática de eventos ao ar livre, é possível compor recantos que realcem a beleza natural do lugar, permitem descansar, entre muitas outras atividades a pensar no âmbito dos eventos e retiros de fim-de-semana.
- Cascata de Mafómedes a 650 metros
- Praia Fluvial de Mafómedes a 1700 metros
Para Vender, Comprar, Arrendar. Não hesite, fale Connosco!
QUADRATURA
...porque cada casa é um caso!
Localização
Teixeira e Teixeiró, Baião, Porto
Informação do anúncio
ID do anúncio
1806523
Referência Externa
PROV/0113
Atualizado em
25/04/2026 08:12:55
Anunciante
Chamada para a rede fixa nacional
QUADRATURA Imobiliária
AMI 8478
Referência do imóvel:
PROV/0113
Quinta para Venda em Teixeira e Teixeiró