Prédio para Venda em Arroios
970.000 €
Tipo
Prédio
Negócio
Venda
Condição
Para recuperar
Certificado Energético
Isento
Área do Terreno
300 m²
Prédio para recuperar na Rua das Fontainhas a São Lourenço em Lisboa
Prédio para recuperar na Rua das Fontainhas a São Lourenço em Lisboa
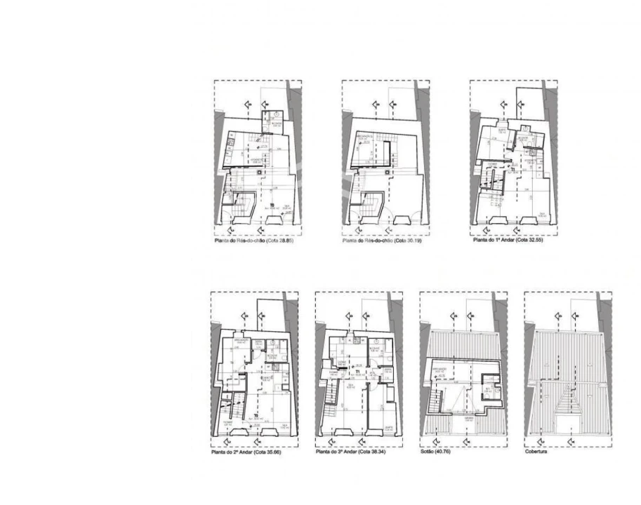
Refere-se o presente Projeto de Reabilitação a um edifício situado na Rua das Fontainhas a
São Lourenço nº 22/24 pertencente à firma SIMOSAN.
Este imóvel anteriormente pertencente à Câmara Municipal de Lisboa, integrou o património
da empresa ora requerente por via de permuta.
O imóvel tem o nº 188 de Matriz e encontra-se registado na Conservatória do Registo Predial
de Lisboa, da Freguesia de Santa Maria Maior sob o nº 45/20080401.
Para o desenvolvimento do projeto de alterações, foi efetuado o levantamento de todo o
edifício, interiormente e exteriormente, e efetuado o levantamento topográfico, de modo a ter
o seu enquadramento e o perfil do arruamento de acesso.
O arruamento de acesso tem apenas ligação por viaturas pelo lado sul, terminando do lado
norte com uma escadaria que liga à Praça do Martim Moniz.
O arruamento tem o seu pavimento em empedrado, com plano único, sem passeios, e com
valetas laterais de drenagem das águas pluviais.
O edifício existente tem a sua fachada principal segundo o plano de acompanhamento do
arruamento que fica voltado a poente, enquanto que a fachada posterior é marginal a um
logradouro que não pertence à requerente.
Localizado junto ao Hotel Mundial, Martim Moniz
Junto a duas estações de metro, várias paragens de autocarro e elétrico
300 m2 de construção acima do solo.
4 pisos
Projeto na Câmara Municipal de Lisboa
Facilitamos contratos com arquitetos
Oferecemos o projeto de arquitetura em curso
Estamos disponíveis para dar todas as informações.
Para além deste imóvel, dispomos de mais imóveis que de certeza encaixam naquilo que pretende.
Mais informações sobre este ou outro imóvel e marcações de visita, contacte a Sua Loja:
Chave Nova
Refere-se o presente Projeto de Reabilitação a um edifício situado na Rua das Fontainhas a
São Lourenço nº 22/24 pertencente à firma SIMOSAN.
Este imóvel anteriormente pertencente à Câmara Municipal de Lisboa, integrou o património
da empresa ora requerente por via de permuta.
O imóvel tem o nº 188 de Matriz e encontra-se registado na Conservatória do Registo Predial
de Lisboa, da Freguesia de Santa Maria Maior sob o nº 45/20080401.
Para o desenvolvimento do projeto de alterações, foi efetuado o levantamento de todo o
edifício, interiormente e exteriormente, e efetuado o levantamento topográfico, de modo a ter
o seu enquadramento e o perfil do arruamento de acesso.
O arruamento de acesso tem apenas ligação por viaturas pelo lado sul, terminando do lado
norte com uma escadaria que liga à Praça do Martim Moniz.
O arruamento tem o seu pavimento em empedrado, com plano único, sem passeios, e com
valetas laterais de drenagem das águas pluviais.
O edifício existente tem a sua fachada principal segundo o plano de acompanhamento do
arruamento que fica voltado a poente, enquanto que a fachada posterior é marginal a um
logradouro que não pertence à requerente.
Localizado junto ao Hotel Mundial, Martim Moniz
Junto a duas estações de metro, várias paragens de autocarro e elétrico
300 m2 de construção acima do solo.
4 pisos
Projeto na Câmara Municipal de Lisboa
Facilitamos contratos com arquitetos
Oferecemos o projeto de arquitetura em curso
Estamos disponíveis para dar todas as informações.
Para além deste imóvel, dispomos de mais imóveis que de certeza encaixam naquilo que pretende.
Mais informações sobre este ou outro imóvel e marcações de visita, contacte a Sua Loja:
Chave Nova
Localização
Arroios, Lisboa, Lisboa
Informação do anúncio
ID do anúncio
1806847
Referência Externa
OD2/00385
Atualizado em
26/04/2026 08:16:05
Anunciante
Chamada para a rede fixa nacional
CN Oliveira do Douro 2
AMI 7142
Referência do imóvel:
OD2/00385
Prédio para Venda em Arroios