Moradia T3 para Venda em Fernao Ferro
485.000 €
Tipo
Moradia
Negócio
Venda
Quartos
3
Casas de Banho
3
Área Bruta
150 m²
Área Útil
130 m²
Condição
Em construção
Certificado Energético
A
Área do Terreno
400 m²
Moradia Gemin. T3 c/2 Suites, Pinhal General - Fernão Ferro
Moradia Geminada Duplex T3 de Arquitetura Contemporânea
Descubra esta elegante moradia geminada duplex T3, atualmente em construção, que alia design contemporâneo, conforto e eficiência energética, inserida num generoso lote de 400 m², com 150 m² de área bruta cuidadosamente distribuídos por dois pisos.
Localizada no Pinhal General, numa zona residencial exclusiva e predominantemente composta por moradias, esta propriedade oferece um ambiente tranquilo, reservado e harmonioso, com excelentes acessos e a apenas 5 minutos de Fernão Ferro e da Quinta do Conde.
A conclusão da obra está prevista para o 2.º Trimestre de 2026.
________________________________________
Distribuição Funcional e Elegante
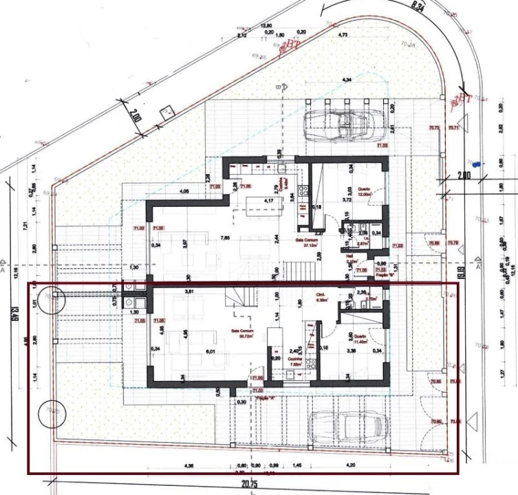
Piso Térreo - Conforto e Versatilidade
Sala e cozinha em open space com 31 m², ideal para momentos de convívio e lazer
Cozinha moderna, totalmente equipada, com acabamentos premium
Quarto com roupeiro, perfeito para escritório, quarto de hóspedes ou mobilidade reduzida
WC social com poliban
Hall de entrada amplo e funcional
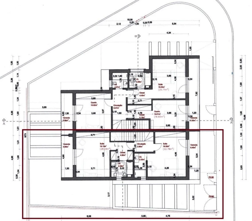
Piso Superior - Privacidade e Sofisticação
Master Suite com closet, acesso a varanda privativa e excelente luminosidade
2 Quartos, igualmente com roupeiro e varanda
Casas de banho modernas, com linhas elegantes e materiais de qualidade
Hall de circulação bem distribuído
________________________________________
Equipamentos e Acabamentos de Gama Superior
Cozinha equipada com placa vitrocerâmica, forno elétrico, micro-ondas e exaustor
Mobiliário em termolaminado de alto brilho e bancadas em Silestone
Painel solar com depósito de 250 litros
Estores elétricos
Caixilharia em PVC termolacado, sistema oscilobatente e vidros duplos
Aspiração central
Vídeo porteiro policromático
Porta blindada e portões automáticos
Pré-instalação de ar condicionado em todas as divisões
Tetos falsos com iluminação LED embutida
Piso flutuante de elevada qualidade (exceto cozinha e WCs)
________________________________________
Espaço Exterior Pensado para o Seu Bem-Estar
Logradouro lateral com pérgula na zona de estacionamento
Logradouro traseiro com pérgula, ideal para lazer
Churrasqueira com bancada de apoio
Zonas ajardinadas que valorizam a envolvente e a privacidade
________________________________________
Certificação Energética: A
Um imóvel pensado para quem procura qualidade de vida, modernidade e exclusividade, numa localização em crescente valorização.
________________________________________
Comercialização:
ÁREA RESTRITA
João Campos
(telefone)
Descubra esta elegante moradia geminada duplex T3, atualmente em construção, que alia design contemporâneo, conforto e eficiência energética, inserida num generoso lote de 400 m², com 150 m² de área bruta cuidadosamente distribuídos por dois pisos.
Localizada no Pinhal General, numa zona residencial exclusiva e predominantemente composta por moradias, esta propriedade oferece um ambiente tranquilo, reservado e harmonioso, com excelentes acessos e a apenas 5 minutos de Fernão Ferro e da Quinta do Conde.
A conclusão da obra está prevista para o 2.º Trimestre de 2026.
________________________________________
Distribuição Funcional e Elegante
Piso Térreo - Conforto e Versatilidade
Sala e cozinha em open space com 31 m², ideal para momentos de convívio e lazer
Cozinha moderna, totalmente equipada, com acabamentos premium
Quarto com roupeiro, perfeito para escritório, quarto de hóspedes ou mobilidade reduzida
WC social com poliban
Hall de entrada amplo e funcional
Piso Superior - Privacidade e Sofisticação
Master Suite com closet, acesso a varanda privativa e excelente luminosidade
2 Quartos, igualmente com roupeiro e varanda
Casas de banho modernas, com linhas elegantes e materiais de qualidade
Hall de circulação bem distribuído
________________________________________
Equipamentos e Acabamentos de Gama Superior
Cozinha equipada com placa vitrocerâmica, forno elétrico, micro-ondas e exaustor
Mobiliário em termolaminado de alto brilho e bancadas em Silestone
Painel solar com depósito de 250 litros
Estores elétricos
Caixilharia em PVC termolacado, sistema oscilobatente e vidros duplos
Aspiração central
Vídeo porteiro policromático
Porta blindada e portões automáticos
Pré-instalação de ar condicionado em todas as divisões
Tetos falsos com iluminação LED embutida
Piso flutuante de elevada qualidade (exceto cozinha e WCs)
________________________________________
Espaço Exterior Pensado para o Seu Bem-Estar
Logradouro lateral com pérgula na zona de estacionamento
Logradouro traseiro com pérgula, ideal para lazer
Churrasqueira com bancada de apoio
Zonas ajardinadas que valorizam a envolvente e a privacidade
________________________________________
Certificação Energética: A
Um imóvel pensado para quem procura qualidade de vida, modernidade e exclusividade, numa localização em crescente valorização.
________________________________________
Comercialização:
ÁREA RESTRITA
João Campos
(telefone)
Localização
Fernao Ferro, Seixal, Setúbal
Informação do anúncio
ID do anúncio
1808783
Referência Externa
AR0753
Atualizado em
24/04/2026 14:14:33
Anunciante
Chamada para a rede móvel nacional
Área Restrita Imobiliária
AMI 20179
Referência do imóvel:
AR0753
Moradia T3 para Venda em Fernao Ferro
Vídeo