Moradia T2 para Venda em Melres e Medas
135.000 €
Tipo
Moradia
Negócio
Venda
Ano de Construção
1951
Quartos
2
Casas de Banho
3
Área Útil
90 m²
Condição
Para recuperar
Certificado Energético
G
Área do Terreno
100 m²
Moradia em Pedra para Reabilitar em Melres – Gondomar | A 2 Passos da Marina
Moradia em Pedra para Reabilitar em Melres – Gondomar | A 2 Passos da Marina
Apresentamos esta excelente oportunidade de investimento em Melres, Gondomar, localizada a escassos minutos da Marina e da margem do Rio Douro.
Trata-se de uma moradia independente de 2 pisos, em construção tradicional em pedra, com enorme potencial para reabilitação, ideal para habitação própria, casa de férias ou projeto de investimento.
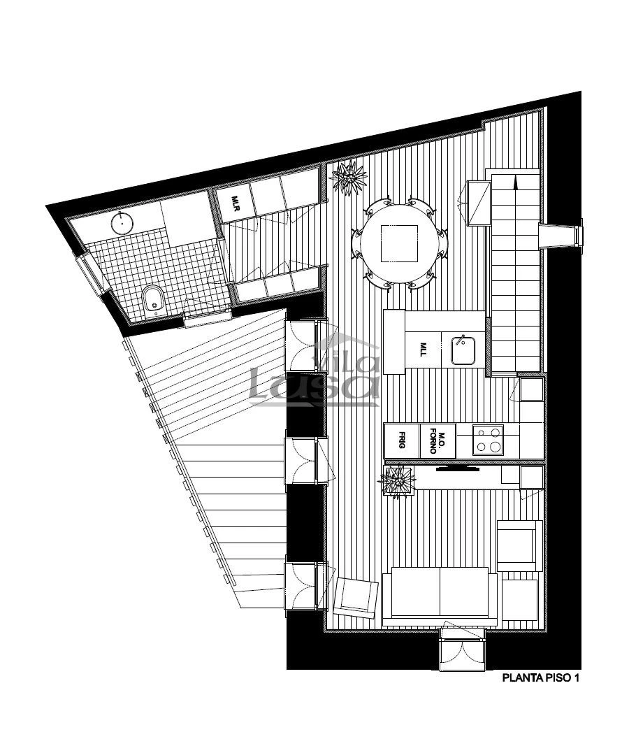
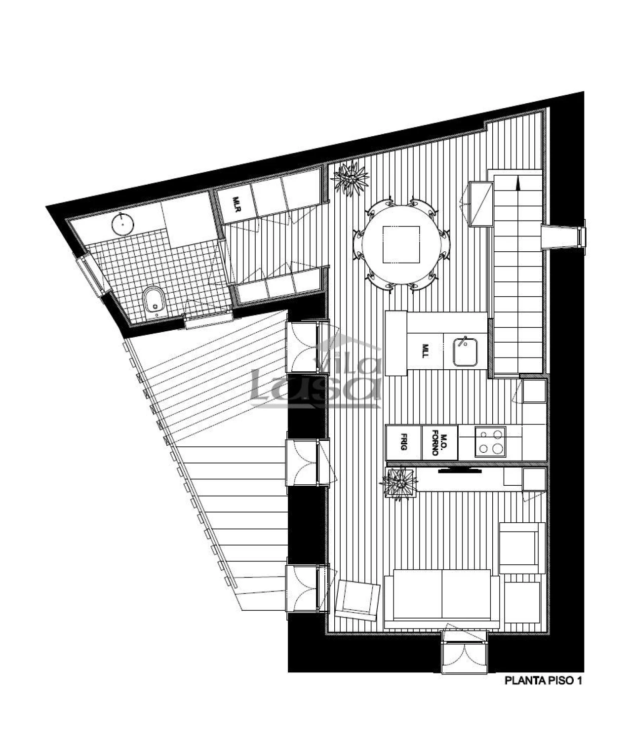
O imóvel já dispõe de projeto de reabilitação, pensado para oferecer conforto e funcionalidade moderna, mantendo o charme original da construção, contemplando:
2 quartos, ambos com wc privativo (suítes)
Sala ampla em open space com cozinha integrada
WC de serviço de apoio à zona social
Excelente aproveitamento de áreas e luminosidade natural
As plantas do projeto (ver e ) demonstram uma organização inteligente dos espaços, separando claramente a zona social da zona privada, garantindo conforto e privacidade.
No exterior, a moradia apresenta uma arquitetura típica e acolhedora, com potencial para criação de uma zona de lazer muito agradável.
Localização de destaque:
A poucos metros da Marina de Melres
Zona tranquila, com excelente exposição solar
Ideal para quem procura qualidade de vida junto à natureza, sem abdicar da proximidade à cidade
Se procura um projeto com identidade, carácter e potencial de valorização, esta é uma oportunidade a não perder.
Para mais informações ou agendamento de visita, entre em contacto.
Apresentamos esta excelente oportunidade de investimento em Melres, Gondomar, localizada a escassos minutos da Marina e da margem do Rio Douro.
Trata-se de uma moradia independente de 2 pisos, em construção tradicional em pedra, com enorme potencial para reabilitação, ideal para habitação própria, casa de férias ou projeto de investimento.
O imóvel já dispõe de projeto de reabilitação, pensado para oferecer conforto e funcionalidade moderna, mantendo o charme original da construção, contemplando:
2 quartos, ambos com wc privativo (suítes)
Sala ampla em open space com cozinha integrada
WC de serviço de apoio à zona social
Excelente aproveitamento de áreas e luminosidade natural
As plantas do projeto (ver e ) demonstram uma organização inteligente dos espaços, separando claramente a zona social da zona privada, garantindo conforto e privacidade.
No exterior, a moradia apresenta uma arquitetura típica e acolhedora, com potencial para criação de uma zona de lazer muito agradável.
Localização de destaque:
A poucos metros da Marina de Melres
Zona tranquila, com excelente exposição solar
Ideal para quem procura qualidade de vida junto à natureza, sem abdicar da proximidade à cidade
Se procura um projeto com identidade, carácter e potencial de valorização, esta é uma oportunidade a não perder.
Para mais informações ou agendamento de visita, entre em contacto.
Localização
Melres e Medas, Gondomar, Porto
Informação do anúncio
ID do anúncio
1809641
Referência Externa
801268008
Atualizado em
26/04/2026 08:03:05
Anunciante
Chamada para a rede fixa nacional
Loja 01 - VILA LUSA - Gaia
AMI 7917
Referência do imóvel:
801268008
Moradia T2 para Venda em Melres e Medas
Vídeo