Voltar
Apartamento T3 para Venda em Paranhos Foto 1
Apartamento T3 para Venda em Paranhos Foto 2
Apartamento T3 para Venda em Paranhos Foto 3
Apartamento T3 para Venda em Paranhos Foto 4
Apartamento T3 para Venda em Paranhos Foto 5

Apartamento T3 para Venda em Paranhos

539.000 €

Tipo
Apartamento
Negócio
Venda
Quartos
3
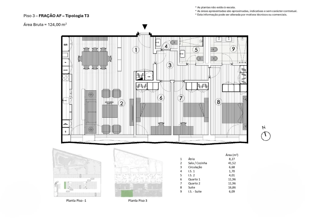
Área Bruta
124 m²
Área Útil
98 m²
Condição
Novo
Certificado Energético
A

Apartamento T3 Venda em Paranhos,Porto

O Boss Gardens é um projeto residencial que conecta arquitetura de vanguarda, inovação e tradição, criando um ambiente onde conforto, natureza e elegância convivem em perfeita harmonia. A solidez da fachada em pedra e madeira combina-se com a delicadeza dos jardins e espaços exteriores, criando um edifício sofisticado e acolhedor. Cada apartamento foi pensado para proporcionar amplitude, luminosidade e uma forte ligação ao exterior. Os apartamentos destacam-se pelos pátios interiores integrados, que permitem a entrada de luz natural e reforçam a sensação de abrir o espaço da casa para o exterior. Os terraços privados e jardins oferecem o cenário ideal para desfrutar de momentos de tranquilidade, aproveitar as noites agradáveis ou simplesmente relaxar. O empreendimento inclui também jardins comuns e parque infantil, proporcionando um ambiente seguro e agradável para toda a família. Localizado em Paranhos, uma das zonas residenciais mais procuradas de Porto, o Boss Gardens beneficia de uma localização estratégica, muito próxima do centro da cidade, dos principais centros empresariais, hospitais, zonas verdes e áreas de lazer. A zona é ainda conhecida por acolher o Polo Universitário do Porto, bem como algumas das universidades e colégios mais prestigiados da cidade. Com acesso fácil às principais vias de comunicação, o Boss Gardens oferece a combinação perfeita entre qualidade de vida, natureza e proximidade urbana. O empreendimento dispõe apenas de apartamentos T3, ideais para quem procura espaço, conforto e uma ligação privilegiada com a cidade. A conclusão da obra está prevista para o primeiro semestre de 2027, tornando este projeto uma excelente oportunidade tanto para habitação própria como para investimento imobiliário no Porto.

Localização

Paranhos, Porto, Porto

Informação do anúncio

ID do anúncio 1810854
Referência Externa DSAMIAL0051
Atualizado em 25/04/2026 02:20:45
DS PORTO AMIAL AMI 25655
Referência do imóvel: DSAMIAL0051
Phone
Chamada para a rede móvel nacional
DS PORTO AMIAL AMI 25655
Referência do imóvel: DSAMIAL0051
Phone
Chamada para a rede móvel nacional
1 / 20
Apartamento T3 para Venda em Paranhos Foto 1
Apartamento T3 para Venda em Paranhos Foto 2
Apartamento T3 para Venda em Paranhos Foto 3
Apartamento T3 para Venda em Paranhos Foto 4
Apartamento T3 para Venda em Paranhos Foto 5
Apartamento T3 para Venda em Paranhos Foto 6
Apartamento T3 para Venda em Paranhos Foto 7
Apartamento T3 para Venda em Paranhos Foto 8
Apartamento T3 para Venda em Paranhos Foto 9
Apartamento T3 para Venda em Paranhos Foto 10
Apartamento T3 para Venda em Paranhos Foto 11
Apartamento T3 para Venda em Paranhos Foto 12
Apartamento T3 para Venda em Paranhos Foto 13
Apartamento T3 para Venda em Paranhos Foto 14
Apartamento T3 para Venda em Paranhos Foto 15
Apartamento T3 para Venda em Paranhos Foto 16
Apartamento T3 para Venda em Paranhos Foto 17
Apartamento T3 para Venda em Paranhos Foto 18
Apartamento T3 para Venda em Paranhos Foto 19
Apartamento T3 para Venda em Paranhos Foto 20
Clicky