Moradia T2 para Venda em Colares
645.000 €
Tipo
Moradia
Negócio
Venda
Ano de Construção
1984
Quartos
2
Casas de Banho
2
Área Útil
108 m²
Condição
Certificado Energético
NC
Área do Terreno
140 m²
Moradia T2 para venda
Moradia em construção, sendo o prazo esperado de conclusão Setembro de 2026, antes da finalização da obra, os interessados poderão concluir a mesma com acabamentos personalizados, dentro do projeto aprovado.
Situado na rua da Alberta nº 25, em Azóia, na Freguesia de Colares, zona muito calma e tranquila.
A rua da Alberta não é de passagem uma vez que apenas serve as moradias ali existentes.
Azóia é uma vila do concelho de Sintra no sudoeste do distrito de Lisboa, Portugal.
Azóia fica a 1 km do Cabo da Roca, tornando-a na vila mais ocidental do continente europeu.
A Igreja Matriz, a "Igreja de Nossa Senhora da Saúde" ergue-se algo descentralizada na vila.
Nas imediações podemos visitar algumas das praias mais carismáticas do nosso País, como a famosa Praia da Ursa e a Praia da Adraga, um pouco mais distante temos a Praia das Maçãs e a Praia Grande.
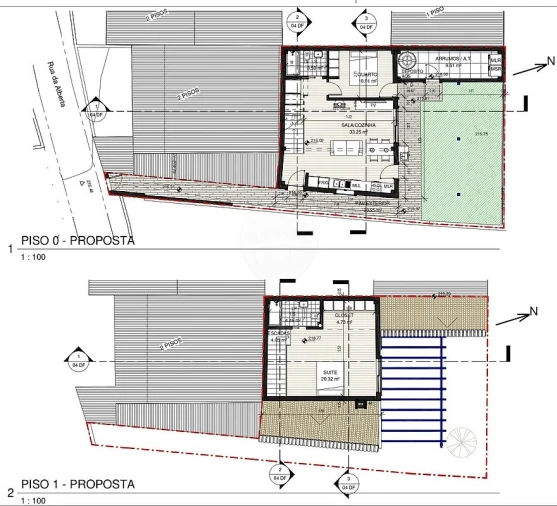
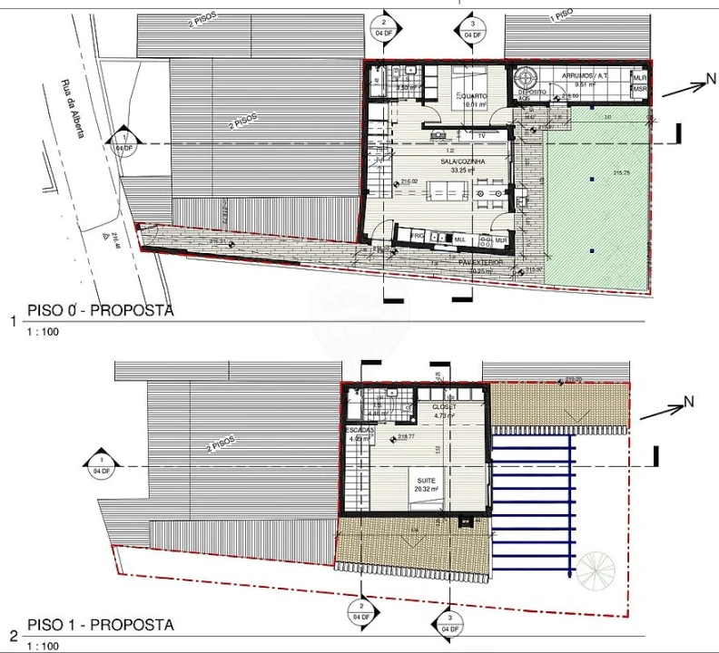
O referido terreno conta com uma área total de 139m2, sendo a área de implantação de 68,5m2 distribuídos por dois pisos e com área bruta dependente de 14,6m2.
O projeto contempla a seguinte configuaração, no rés-do-chão podemos encontrar uma sala com lareira e cozinha em open space, um quarto e um wc completo.
No 1º piso está projetado um quarto em suite com closet, mas devido às áreas bastante nobres, poderá ter dois quartos, tornando a moradia mais apelativa a uma familia maior.
A zona envolvente é composta maioritariamente por moradias e conta com algum comércio, nomeadamente restauração e alguns minimercados, no entanto, a moradia encontra-se afastada destes serviços e comércio, estando em local bastante sossegado.
De salientar as vistas deste local, que serão de mar para norte e serra para oeste e sul. Do primeiro andar poderá usufruir de vistas desafogadas.
Fotos ilustrativas do projeto aprovado.
;ID RE/MAX: 126301153-105
Situado na rua da Alberta nº 25, em Azóia, na Freguesia de Colares, zona muito calma e tranquila.
A rua da Alberta não é de passagem uma vez que apenas serve as moradias ali existentes.
Azóia é uma vila do concelho de Sintra no sudoeste do distrito de Lisboa, Portugal.
Azóia fica a 1 km do Cabo da Roca, tornando-a na vila mais ocidental do continente europeu.
A Igreja Matriz, a "Igreja de Nossa Senhora da Saúde" ergue-se algo descentralizada na vila.
Nas imediações podemos visitar algumas das praias mais carismáticas do nosso País, como a famosa Praia da Ursa e a Praia da Adraga, um pouco mais distante temos a Praia das Maçãs e a Praia Grande.
O referido terreno conta com uma área total de 139m2, sendo a área de implantação de 68,5m2 distribuídos por dois pisos e com área bruta dependente de 14,6m2.
O projeto contempla a seguinte configuaração, no rés-do-chão podemos encontrar uma sala com lareira e cozinha em open space, um quarto e um wc completo.
No 1º piso está projetado um quarto em suite com closet, mas devido às áreas bastante nobres, poderá ter dois quartos, tornando a moradia mais apelativa a uma familia maior.
A zona envolvente é composta maioritariamente por moradias e conta com algum comércio, nomeadamente restauração e alguns minimercados, no entanto, a moradia encontra-se afastada destes serviços e comércio, estando em local bastante sossegado.
De salientar as vistas deste local, que serão de mar para norte e serra para oeste e sul. Do primeiro andar poderá usufruir de vistas desafogadas.
Fotos ilustrativas do projeto aprovado.
;ID RE/MAX: 126301153-105
Localização
Colares, Sintra, Lisboa
Informação do anúncio
ID do anúncio
1814263
Referência Externa
126301153-105
Atualizado em
26/04/2026 12:53:17
Anunciante
Chamada para a rede fixa nacional
Vantagem Home
AMI 7772
Referência do imóvel:
126301153-105
Moradia T2 para Venda em Colares