Terreno para Venda em Grijó e Sermonde
95.000 €
Tipo
Terreno
Negócio
Venda
Área Útil
1382 m²
Área do Terreno
1382 m²
Descrição
Identificação do imóvel: ZMPT588088
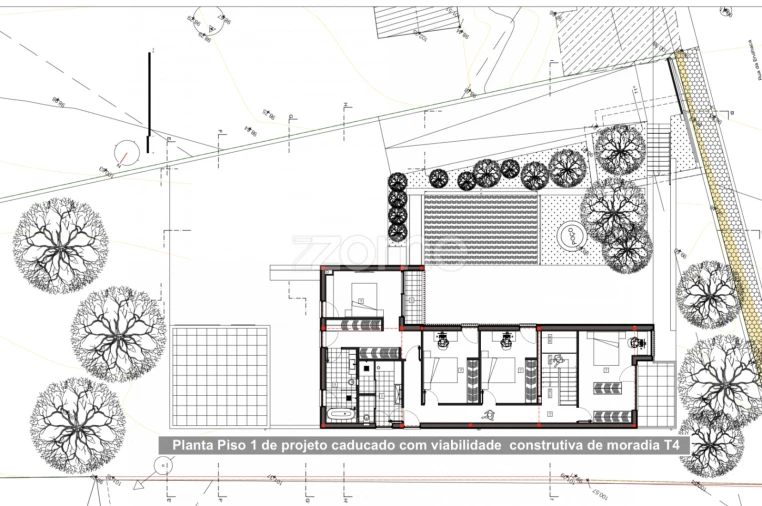
Terreno com 1380 m2 urbano localizado em Grijó, na Rua da Ervilhaca, com 25 metros de frente de rua, inserido numa zona predominantemente habitacional, caracterizada por moradias unifamiliares, proporcionando um ambiente tranquilo e familiar.
O terreno apresenta boa exposição solar, o que garante excelente luminosidade natural ao longo do dia, sendo ideal para a construção de uma moradia confortável e eficiente do ponto de vista energético. Trata-se de um terreno plano com viabilidade construtiva, tendo já existido um projeto anteriormente aprovado.
Embora esse projeto já não se encontre em vigor, o enquadramento urbanístico mantém-se favorável.
Este terreno constitui uma excelente oportunidade para quem procura construir habitação própria ou investir numa zona com bons acessos e enquadramento residencial consolidado.
A localização combina tranquilidade residencial com excelente proximidade a centros urbanos, praias e principais vias rodoviárias.
O terreno beneficia de uma localização estratégica em Grijó, com bons acessos e proximidade a diversos pontos de interesse:
Centros urbanos
- A cerca de 15 km do centro do Porto (aprox. 15–20 minutos de carro)
- Aproximadamente 10 km de Vila Nova de Gaia
Acessos rodoviários
- Rápido acesso à A1 Autoestrada do Norte (ligação direta a Lisboa e Porto)
- Proximidade à A29, facilitando o acesso à zona costeira
- Ligação conveniente à A41, que permite acesso rápido a toda a Área Metropolitana do Porto
Educação
- Próximo de escolas básicas e secundárias em Grijó
- A cerca de 15–20 minutos de polos universitários no Porto, como a Universidade do Porto
Serviços e comércio
- A poucos minutos de serviços essenciais (farmácias, supermercados, bancos)
- Proximidade a unidades de saúde locais e acesso rápido a hospitais em Vila Nova de Gaia, como o Hospital de Vila Nova de Gaia/Espinho
Comércio e lazer
- A cerca de 10–15 minutos de zonas comerciais como o GaiaShopping
- A aproximadamente 20 minutos do El Corte Inglés Gaia
Lazer e natureza
- A cerca de 15–20 minutos das praias da linha de Espinho
- Bons acessos a zonas verdes e trilhos na região envolvente
3 razões para comprar com a Zome
+ acompanhamento
Com uma preparação e experiência única no mercado imobiliário, os consultores Zome põem toda a sua dedicação em dar-lhe o melhor acompanhamento, orientando-o com a máxima confiança, na direção certa das suas necessidades e ambições.
Daqui para a frente, vamos criar uma relação próxima e escutar com atenção as suas expectativas, porque a nossa prioridade é a sua felicidade! Porque é importante que sinta que está acompanhado, e que estamos consigo sempre.
+ simples
Os consultores Zome têm uma formação única no mercado, ancorada na partilha de experiência prática entre profissionais e fortalecida pelo conhecimento de neurociência aplicada que lhes permite simplificar e tornar mais eficaz a sua experiência imobiliária.
Deixe para trás os pesadelos burocráticos porque na Zome encontra o apoio total de uma equipa experiente e multidisciplinar que lhe dá suporte prático em todos os aspetos fundamentais, para que a sua experiência imobiliária supere as expectativas.
+ feliz
O nosso maior valor é entregar-lhe felicidade!
Liberte-se de preocupações e ganhe o tempo de qualidade que necessita para se dedicar ao que lhe faz mais feliz.
Agimos diariamente para trazer mais valor à sua vida com o aconselhamento fiável de que precisa para, juntos, conseguirmos atingir os melhores resultados.
Com a Zome nunca vai estar perdido ou desacompanhado e encontrará algo que não tem preço: a sua máxima tranquilidade!
É assim que se vai sentir ao longo de toda a experiência: Tranquilo, seguro, confortável e... FELIZ!
Notas:
1. Caso seja um consultor imobiliário, este imóvel está disponível para partilha de negócio. Não hesite em apresentar aos seus clientes compradores e fale connosco para agendar a sua visita.
2. Para maior facilidade na identificação deste imóvel, por favor, refira o respetivo ID ZMPT ou o respetivo agente que lhe tenha enviado a sugestão.
Terreno com 1380 m2 urbano localizado em Grijó, na Rua da Ervilhaca, com 25 metros de frente de rua, inserido numa zona predominantemente habitacional, caracterizada por moradias unifamiliares, proporcionando um ambiente tranquilo e familiar.
O terreno apresenta boa exposição solar, o que garante excelente luminosidade natural ao longo do dia, sendo ideal para a construção de uma moradia confortável e eficiente do ponto de vista energético. Trata-se de um terreno plano com viabilidade construtiva, tendo já existido um projeto anteriormente aprovado.
Embora esse projeto já não se encontre em vigor, o enquadramento urbanístico mantém-se favorável.
Este terreno constitui uma excelente oportunidade para quem procura construir habitação própria ou investir numa zona com bons acessos e enquadramento residencial consolidado.
A localização combina tranquilidade residencial com excelente proximidade a centros urbanos, praias e principais vias rodoviárias.
O terreno beneficia de uma localização estratégica em Grijó, com bons acessos e proximidade a diversos pontos de interesse:
Centros urbanos
- A cerca de 15 km do centro do Porto (aprox. 15–20 minutos de carro)
- Aproximadamente 10 km de Vila Nova de Gaia
Acessos rodoviários
- Rápido acesso à A1 Autoestrada do Norte (ligação direta a Lisboa e Porto)
- Proximidade à A29, facilitando o acesso à zona costeira
- Ligação conveniente à A41, que permite acesso rápido a toda a Área Metropolitana do Porto
Educação
- Próximo de escolas básicas e secundárias em Grijó
- A cerca de 15–20 minutos de polos universitários no Porto, como a Universidade do Porto
Serviços e comércio
- A poucos minutos de serviços essenciais (farmácias, supermercados, bancos)
- Proximidade a unidades de saúde locais e acesso rápido a hospitais em Vila Nova de Gaia, como o Hospital de Vila Nova de Gaia/Espinho
Comércio e lazer
- A cerca de 10–15 minutos de zonas comerciais como o GaiaShopping
- A aproximadamente 20 minutos do El Corte Inglés Gaia
Lazer e natureza
- A cerca de 15–20 minutos das praias da linha de Espinho
- Bons acessos a zonas verdes e trilhos na região envolvente
3 razões para comprar com a Zome
+ acompanhamento
Com uma preparação e experiência única no mercado imobiliário, os consultores Zome põem toda a sua dedicação em dar-lhe o melhor acompanhamento, orientando-o com a máxima confiança, na direção certa das suas necessidades e ambições.
Daqui para a frente, vamos criar uma relação próxima e escutar com atenção as suas expectativas, porque a nossa prioridade é a sua felicidade! Porque é importante que sinta que está acompanhado, e que estamos consigo sempre.
+ simples
Os consultores Zome têm uma formação única no mercado, ancorada na partilha de experiência prática entre profissionais e fortalecida pelo conhecimento de neurociência aplicada que lhes permite simplificar e tornar mais eficaz a sua experiência imobiliária.
Deixe para trás os pesadelos burocráticos porque na Zome encontra o apoio total de uma equipa experiente e multidisciplinar que lhe dá suporte prático em todos os aspetos fundamentais, para que a sua experiência imobiliária supere as expectativas.
+ feliz
O nosso maior valor é entregar-lhe felicidade!
Liberte-se de preocupações e ganhe o tempo de qualidade que necessita para se dedicar ao que lhe faz mais feliz.
Agimos diariamente para trazer mais valor à sua vida com o aconselhamento fiável de que precisa para, juntos, conseguirmos atingir os melhores resultados.
Com a Zome nunca vai estar perdido ou desacompanhado e encontrará algo que não tem preço: a sua máxima tranquilidade!
É assim que se vai sentir ao longo de toda a experiência: Tranquilo, seguro, confortável e... FELIZ!
Notas:
1. Caso seja um consultor imobiliário, este imóvel está disponível para partilha de negócio. Não hesite em apresentar aos seus clientes compradores e fale connosco para agendar a sua visita.
2. Para maior facilidade na identificação deste imóvel, por favor, refira o respetivo ID ZMPT ou o respetivo agente que lhe tenha enviado a sugestão.
Localização
Rua da Ervilhaca
Grijó e Sermonde, Vila Nova de Gaia, Porto
A localização exacta do imóvel não está disponível. O mapa apresenta a zona aproximada.
Informação do anúncio
ID do anúncio
1819911
Referência Externa
ZMPT588088
Atualizado em
26/04/2026 06:03:51
Anunciante
Chamada para a rede fixa nacional
ZOME Porto - CEC
AMI 17432
Referência do imóvel:
ZMPT588088
Terreno para Venda em Grijó e Sermonde