Apartamento T1 para Venda em Quarteira
325.000 €
Tipo
Apartamento
Negócio
Venda
Quartos
1
Casas de Banho
1
Área Bruta
57 m²
Área Útil
57 m²
Condição
Em construção
Certificado Energético
A
Características
Arrecadação
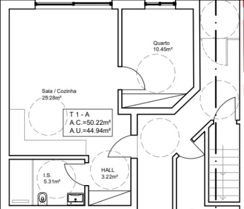
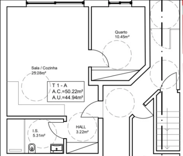
Apartamento T1 em Quarteira | 2 km do Mar
Apartamento T1 com um área total de 57,4 m2 inserido em edifício residencial de 3 pisos, com apenas 6 frações, localizado em Quarteira.
Uma solução equilibrada entre conforto, qualidade de construção e proximidade ao mar, serviços e comércio.
O projeto foi desenvolvido para garantir funcionalidade e bem-estar, com acabamentos modernos e uma distribuição de espaços eficiente.
Composição da fração:
- Apartamento T1 no rés-do-chão;
- Área total de 57,4 m2;
- Arrecadação incluída.
Características principais:
- Acabamentos modernos;
- Certificado energético A;
- Boa exposição solar;
- Edifício de baixa densidade (apenas 6 frações);
- Ambiente residencial e tranquilo.
Ideal para habitação própria ou investimento, incluindo utilização como casa de férias.
Localização em Quarteira:
- 500 m da escola pública;
- 700 m do supermercado Continente;
- 2 km do campo de golfe mais próximo;
- 2 km da praia;
- 2 km de hospital privado;
- 7 km de colégio privado;
- 20 km do Aeroporto de Faro.
Localização com elevada procura no Algarve, com bons acessos e forte potencial de valorização.
Prazo de construção: setembro de 2026
Uma solução equilibrada entre conforto, qualidade de construção e proximidade ao mar, serviços e comércio.
O projeto foi desenvolvido para garantir funcionalidade e bem-estar, com acabamentos modernos e uma distribuição de espaços eficiente.
Composição da fração:
- Apartamento T1 no rés-do-chão;
- Área total de 57,4 m2;
- Arrecadação incluída.
Características principais:
- Acabamentos modernos;
- Certificado energético A;
- Boa exposição solar;
- Edifício de baixa densidade (apenas 6 frações);
- Ambiente residencial e tranquilo.
Ideal para habitação própria ou investimento, incluindo utilização como casa de férias.
Localização em Quarteira:
- 500 m da escola pública;
- 700 m do supermercado Continente;
- 2 km do campo de golfe mais próximo;
- 2 km da praia;
- 2 km de hospital privado;
- 7 km de colégio privado;
- 20 km do Aeroporto de Faro.
Localização com elevada procura no Algarve, com bons acessos e forte potencial de valorização.
Prazo de construção: setembro de 2026
Localização
Quarteira, Loulé, Faro
Informação do anúncio
ID do anúncio
1825177
Referência Externa
0284/26
Atualizado em
27/04/2026 23:34:46
Anunciante
Chamada para a rede móvel nacional
Amber Star - Imobiliária
AMI 26490
Referência do imóvel:
0284/26
Apartamento T1 para Venda em Quarteira