Voltar

Quinta T3 para Venda em Cabeção

380.000 €

Tipo
Quinta
Negócio
Venda
Quartos
3
Casas de Banho
3
Área Bruta
253 m²
Área Útil
106 m²
Condição
Usado
Certificado Energético
C
Área do Terreno
23000 m²

Quinta de 2,3 ha com moradia e Piscina | Cabeção

No Vale de Joana em Cabeção, concelho de Mora, encontra esta quinta de 2,3 ha com moradia, Piscina e 3 armazéns agrícolas anexos.

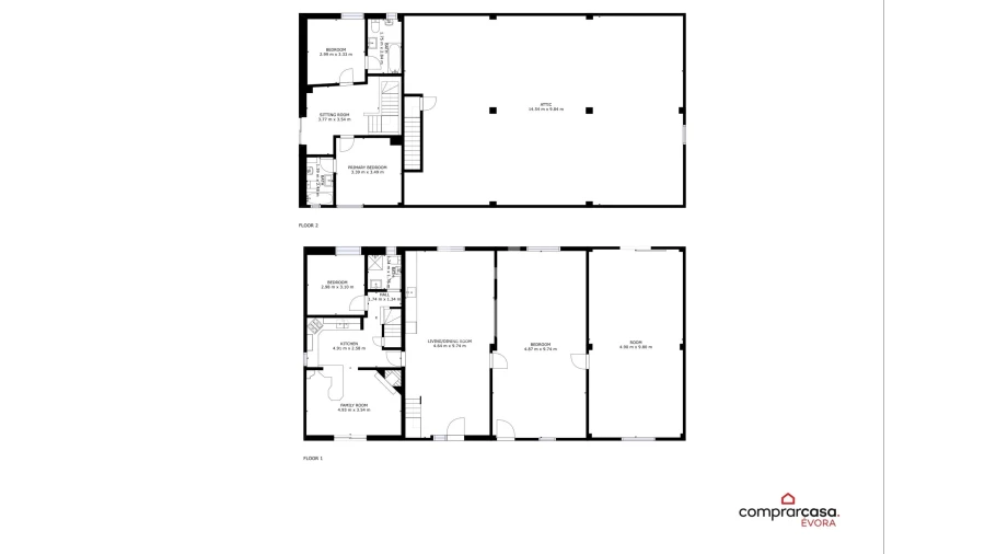
A moradia é composta por: sala em open space com a cozinha; despensa; 1 quarto; wc completo com poliban e corredor, que culmina na escada que estabelece acesso ao sótão, cujo pé direito alto permitiu a sua divisão em: hall e 2 suites com janela.

A habitação encontra-se interligada com 3 armazéns agrícolas, sendo que o 1º armazém está pavimentado, estabelece ligação com o exterior e tem escada de acesso para um sótão amplo com janela, que se encontra em bruto.
O 2º armazém também se encontra pavimentado e num dos topos possui uma janela.
O 3º armazém é enriquecido por uma janela e por 1 portão basculante, que permite o acesso a veículos agrícolas.

Na parte frontal tem um terraço cimentado, que faz a ligação com a zona da piscina. É enriquecido por um canteiro arborizado e encontra-se ladeado pelo terreno rústico, que constitui o imóvel, onde predomina a cultura arvense de sequeiro e a vinha, sendo também visível uma zona de pomar e olival.

Apesar de estar a necessitar de algumas obras de melhoria, o imóvel apresenta alguns pontos fortes, que merecem ser considerados, por lhe acrescentarem valor:
- As áreas amplas, tanto da parte rústica, como do conjunto urbano, cuja área de implantação lhe permitirá aumentar o número de assoalhadas, oferecendo-lhe a possibilidade de recriar ambientes distintos, recorrendo a acabamentos modernos e confortáveis;
- A autossustentabilidade ao nível da água, uma vez que possui poço e furo;
- A privacidade em virtude do imóvel estar isolado;
- A possibilidade de rentabilização, direcionando o imóvel para a exploração turística, no âmbito do turismo em espaço rural;
- A localização, que lhe oferece uma vista desafogada sobre a planície alentejana e que o coloca a cerca de 2km do Fluviário de Mora e da praia fluvial do Gameiro e a 61 km de Évora.

Localização

Cabeção, Mora, Évora

Informação do anúncio

ID do anúncio 284938
Referência Externa 318/Q/02638
Atualizado em 29/10/2025 02:13:27
ComprarCasa Évora AMI 8303
Referência do imóvel: 318/Q/02638
Phone
Chamada para a rede fixa nacional
ComprarCasa Évora AMI 8303
Referência do imóvel: 318/Q/02638
Phone
Chamada para a rede fixa nacional
1 / 45
Quinta T3 para Venda em Cabeção Foto 1
Quinta T3 para Venda em Cabeção Foto 2
Quinta T3 para Venda em Cabeção Foto 3
Quinta T3 para Venda em Cabeção Foto 4
Quinta T3 para Venda em Cabeção Foto 5
Quinta T3 para Venda em Cabeção Foto 6
Quinta T3 para Venda em Cabeção Foto 7
Quinta T3 para Venda em Cabeção Foto 8
Quinta T3 para Venda em Cabeção Foto 9
Quinta T3 para Venda em Cabeção Foto 10
Quinta T3 para Venda em Cabeção Foto 11
Quinta T3 para Venda em Cabeção Foto 12
Quinta T3 para Venda em Cabeção Foto 13
Quinta T3 para Venda em Cabeção Foto 14
Quinta T3 para Venda em Cabeção Foto 15
Quinta T3 para Venda em Cabeção Foto 16
Quinta T3 para Venda em Cabeção Foto 17
Quinta T3 para Venda em Cabeção Foto 18
Quinta T3 para Venda em Cabeção Foto 19
Quinta T3 para Venda em Cabeção Foto 20
Quinta T3 para Venda em Cabeção Foto 21
Quinta T3 para Venda em Cabeção Foto 22
Quinta T3 para Venda em Cabeção Foto 23
Quinta T3 para Venda em Cabeção Foto 24
Quinta T3 para Venda em Cabeção Foto 25
Quinta T3 para Venda em Cabeção Foto 26
Quinta T3 para Venda em Cabeção Foto 27
Quinta T3 para Venda em Cabeção Foto 28
Quinta T3 para Venda em Cabeção Foto 29
Quinta T3 para Venda em Cabeção Foto 30
Quinta T3 para Venda em Cabeção Foto 31
Quinta T3 para Venda em Cabeção Foto 32
Quinta T3 para Venda em Cabeção Foto 33
Quinta T3 para Venda em Cabeção Foto 34
Quinta T3 para Venda em Cabeção Foto 35
Quinta T3 para Venda em Cabeção Foto 36
Quinta T3 para Venda em Cabeção Foto 37
Quinta T3 para Venda em Cabeção Foto 38
Quinta T3 para Venda em Cabeção Foto 39
Quinta T3 para Venda em Cabeção Foto 40
Quinta T3 para Venda em Cabeção Foto 41
Quinta T3 para Venda em Cabeção Foto 42
Quinta T3 para Venda em Cabeção Foto 43
Quinta T3 para Venda em Cabeção Foto 44
Quinta T3 para Venda em Cabeção Foto 45
Clicky