Terreno para Venda em Nogueira e Silva Escura
80.000 €
Tipo
Terreno
Negócio
Venda
Área Bruta
307 m²
Certificado Energético
N/A
Área do Terreno
152 m²
Terreno urbano com projecto arquitetura em licenciamento
Excelente oportunidade de negócio se procura terreno para construir a casa dos seus sonhos.
Localizado em zona urbana lindíssima e tranquila com projeto de arquitetura já elaborado e submetido à Câmara Municipal da Maia para licenciamento.
Permite construir com 3 frentes de entrada de luz, orientação solar nascente/poente, sol o dia todo.
Garantia de valorização futura.
Não fique apenas pela leitura do anúncio, marque visita, confira e compre!
Projecto de arquitetura contemporâneo, organização de espaço inteligente, conforto e funcionalidade, modernos sistemas de segurança e conforto.
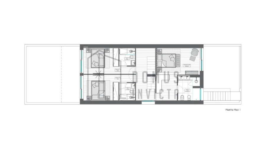
Projeto de construção de moradia de tipologia 4, com três frentes e 4 pisos.
Arquitetura e espaço exterior que pode proporcionar excelentes momentos de lazer e usufruir de privacidade de um espaço independente.
A habitação é constituída por:
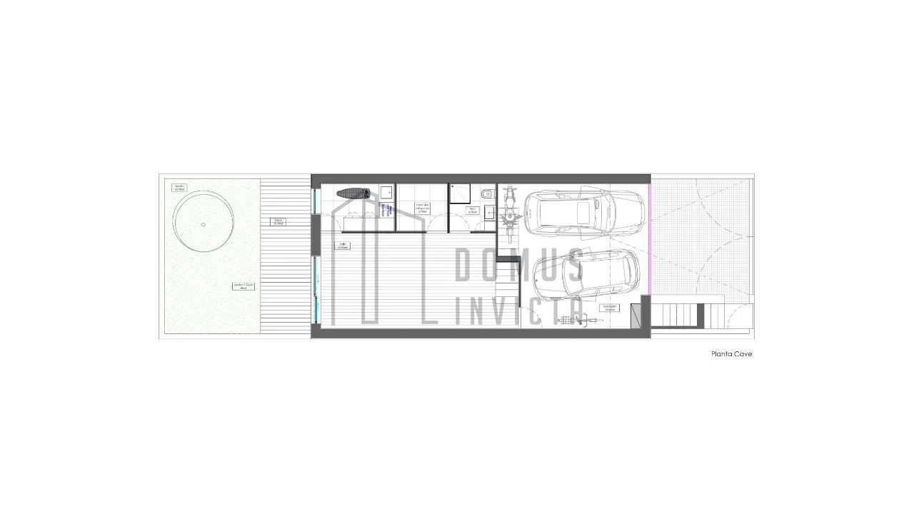
- Cave _ garagem para 2 carros, casa das máquinas, salão de lazer com WC, acesso direto à zona exterior com deck e jardim de 36m2,
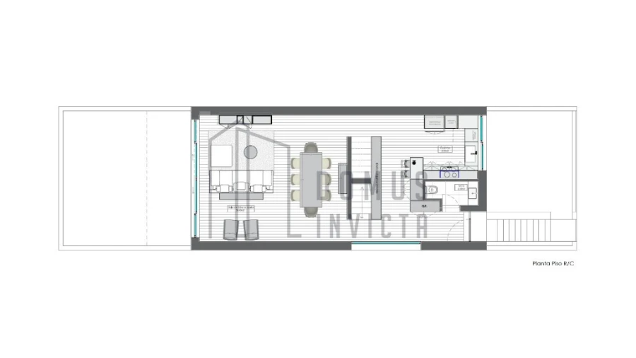
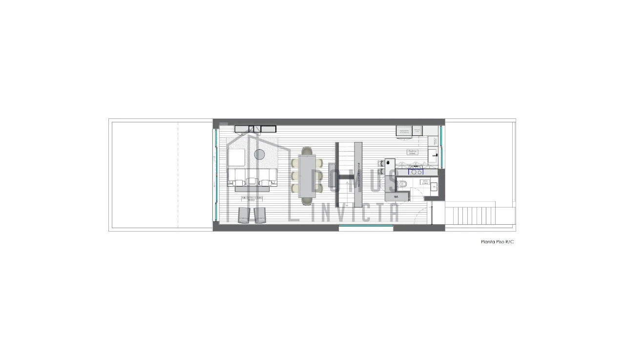
- Rés do chão com áreas amplas e generosas; sala 40 m2 e cozinha encontram-se neste mesmo nível,
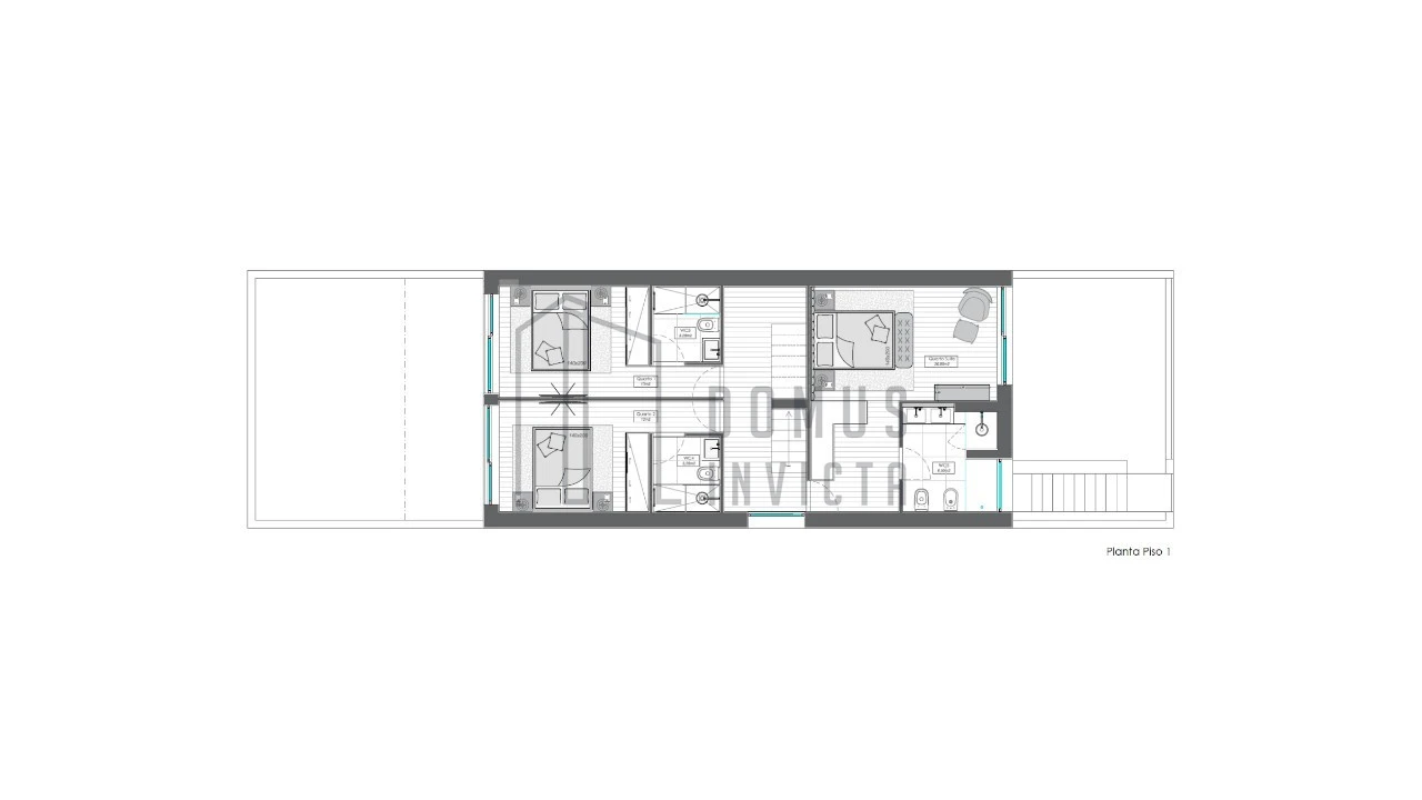
- Primeiro Piso com 3 suites com roupeiros embutidos. Quarto do casal com “walk in closet” e WC
- Piso recuado pode ser utilizado para quarto, escritório, sala de jogos ou lazer, com um terraço muito amplo e generoso 38 m2.
Projecto previsto para ser totalmente equipado e com acabamentos de elevada qualidade.
Ar condicionado controlável por telemóvel, bomba de calor, estores elétricos, boa caixilharia.
Localização_zona habitacional muito tranquila de moradias, situado a poucos minutos dos principais acessos e comércio, por exemplo: Maia Jardim, Maia Shopping, Escolas (Colégio Novo da Maia), acesso a Autoestradas (A3, A4 A41).
As imagens apresentadas são meramente ilustrativas, não são imagens reais do apartamento.
A DOMUS INVICTA é uma agência de mediação e consultoria imobiliária com escritório na zona da Boavista, no Porto, focada na prossecução dos objetivos dos nossos clientes.
Atuamos essencialmente no segmento residencial, angariando, promovendo e comercializando imóveis de construção nova, imóveis usados, imóveis para reabilitação e terrenos para construção.
MEDIAÇÃO IMOBILIÁRIA
Focados no perfil, expectativas e objetivos dos clientes, mediamos processos de compra e venda, arrendamentos e gestão de imóveis. Utilizamos as mais modernas e eficientes ferramentas para promoção e venda de imóveis.
Prestamos o serviço de procurement imobiliário a clientes compradores.
CONSULTORIA JURÍDICA
Recorremos a conceituadas firmas de advogados que nos assessoram na nossa atividade e nos processos de compra e venda.
SOLUÇÕES DE FINANCIAMENTO
Com recurso a parceiros experientes, proporcionamos aos nossos clientes as melhores soluções de financiamento, promovendo e agilizando os processos de crédito com vista à rápida concretização dos negócios.
GESTÃO PROCESSUAL
Para que o processo de aquisição de um imóvel se desenvolva de forma ágil e transparente, encarregamo-nos da obtenção de toda a documentação necessária e acompanhamos o processo até à outorga da escritura de compra e venda.
ARQUITETURA E OBRAS
Com vista à concretização dos projetos dos clientes, trabalhamos com parceiros que prestam o aconselhamento necessário, apresentam as soluções mais viáveis, constroem, supervisionam e fiscalizam obras.
AVALIAÇÃO DE IMÓVEIS
Contamos com a colaboração de peritos certificados para a determinação do valor de mercado de um imóvel, traduzindo o seu valor na conjuntura atual, tendo em consideração, entre outros aspectos, as dinâmicas das variáveis da oferta e da procura que caracterizam o mercado imobiliário, no momento da avaliação.
O seu imóvel, o nosso compromisso!
Localizado em zona urbana lindíssima e tranquila com projeto de arquitetura já elaborado e submetido à Câmara Municipal da Maia para licenciamento.
Permite construir com 3 frentes de entrada de luz, orientação solar nascente/poente, sol o dia todo.
Garantia de valorização futura.
Não fique apenas pela leitura do anúncio, marque visita, confira e compre!
Projecto de arquitetura contemporâneo, organização de espaço inteligente, conforto e funcionalidade, modernos sistemas de segurança e conforto.
Projeto de construção de moradia de tipologia 4, com três frentes e 4 pisos.
Arquitetura e espaço exterior que pode proporcionar excelentes momentos de lazer e usufruir de privacidade de um espaço independente.
A habitação é constituída por:
- Cave _ garagem para 2 carros, casa das máquinas, salão de lazer com WC, acesso direto à zona exterior com deck e jardim de 36m2,
- Rés do chão com áreas amplas e generosas; sala 40 m2 e cozinha encontram-se neste mesmo nível,
- Primeiro Piso com 3 suites com roupeiros embutidos. Quarto do casal com “walk in closet” e WC
- Piso recuado pode ser utilizado para quarto, escritório, sala de jogos ou lazer, com um terraço muito amplo e generoso 38 m2.
Projecto previsto para ser totalmente equipado e com acabamentos de elevada qualidade.
Ar condicionado controlável por telemóvel, bomba de calor, estores elétricos, boa caixilharia.
Localização_zona habitacional muito tranquila de moradias, situado a poucos minutos dos principais acessos e comércio, por exemplo: Maia Jardim, Maia Shopping, Escolas (Colégio Novo da Maia), acesso a Autoestradas (A3, A4 A41).
As imagens apresentadas são meramente ilustrativas, não são imagens reais do apartamento.
A DOMUS INVICTA é uma agência de mediação e consultoria imobiliária com escritório na zona da Boavista, no Porto, focada na prossecução dos objetivos dos nossos clientes.
Atuamos essencialmente no segmento residencial, angariando, promovendo e comercializando imóveis de construção nova, imóveis usados, imóveis para reabilitação e terrenos para construção.
MEDIAÇÃO IMOBILIÁRIA
Focados no perfil, expectativas e objetivos dos clientes, mediamos processos de compra e venda, arrendamentos e gestão de imóveis. Utilizamos as mais modernas e eficientes ferramentas para promoção e venda de imóveis.
Prestamos o serviço de procurement imobiliário a clientes compradores.
CONSULTORIA JURÍDICA
Recorremos a conceituadas firmas de advogados que nos assessoram na nossa atividade e nos processos de compra e venda.
SOLUÇÕES DE FINANCIAMENTO
Com recurso a parceiros experientes, proporcionamos aos nossos clientes as melhores soluções de financiamento, promovendo e agilizando os processos de crédito com vista à rápida concretização dos negócios.
GESTÃO PROCESSUAL
Para que o processo de aquisição de um imóvel se desenvolva de forma ágil e transparente, encarregamo-nos da obtenção de toda a documentação necessária e acompanhamos o processo até à outorga da escritura de compra e venda.
ARQUITETURA E OBRAS
Com vista à concretização dos projetos dos clientes, trabalhamos com parceiros que prestam o aconselhamento necessário, apresentam as soluções mais viáveis, constroem, supervisionam e fiscalizam obras.
AVALIAÇÃO DE IMÓVEIS
Contamos com a colaboração de peritos certificados para a determinação do valor de mercado de um imóvel, traduzindo o seu valor na conjuntura atual, tendo em consideração, entre outros aspectos, as dinâmicas das variáveis da oferta e da procura que caracterizam o mercado imobiliário, no momento da avaliação.
O seu imóvel, o nosso compromisso!
Localização
Nogueira e Silva Escura, Maia, Porto
Informação do anúncio
ID do anúncio
311137
Referência Externa
DI-523
Atualizado em
24/05/2026 23:37:16
Terreno para Venda em Nogueira e Silva Escura
Vídeo