Negócio para Venda em Pego
1.500.000 €
Tipo
Negócio
Negócio
Venda
Quartos
61
Área Bruta
3678 m²
Área Útil
3642 m²
Condição
Novo
Certificado Energético
Área do Terreno
46178 m²
Hotel Venda em Pego,Abrantes
Vende-se antiga unidade Hoteleira na freguesia do Pego, em Abrantes
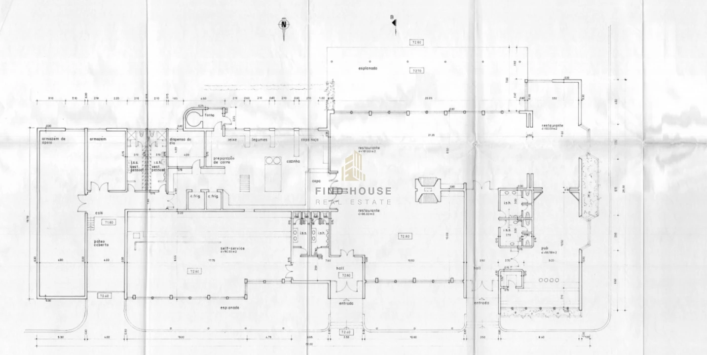
Esta propriedade dispõe de uma antiga unidade hoteleira, já desativada, implantada num terreno com 46178m2, com uma área bruta de construção de 3678.96m2 e uma área bruta privativa (Hotel e Restaurante) com 3642.96m2.
Contempla ainda um complexo desportivo (piscinas, campos de ténis, minigolf, parque infantil) com uma área de 5246m2, uma área de arranjos exteriores (jardins, arruamentos e parqueamentos) com um total de 23597m2 e ainda uma área livre com 13656.04m2.
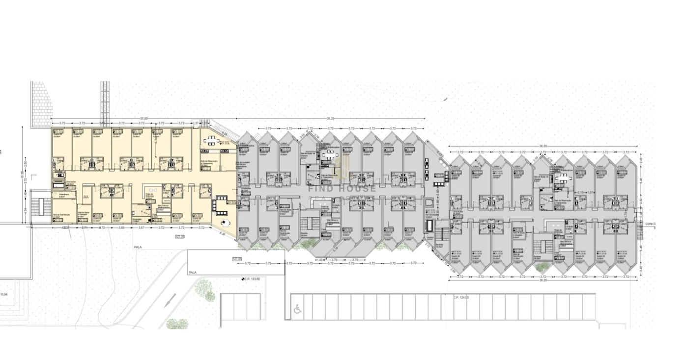
Existe um projeto aprovado, com licença de construção a pagamento, para a construção de uma Unidade de Cuidados Continuados (UCC), composta por 2 Edifícios (Edifício A e Edifício B).
Para o Edifício A está projetado para serviços médicos (consultórios médicos, reabilitação e fisioterapia).
Para o Edifício B está previsto um total de 61 quartos (52 quartos duplos e 9 quartos individuais), áreas comuns como receção, sala de espera, consultório médico, sala de convívio, refeitório e cozinha.
Na conexão entre os dois edifícios, está previsto um ginásio, salas de fisioterapia e hidroterapia.
50 camas serão afetas ao Serviço Nacional de Saúde, e servirão 3 regiões.
Não perca esta excelente oportunidade, quer para aproveitar e recuperar as infraestruturas já existentes, quer para dar continuidade ao projeto já aprovado!
Esta propriedade dispõe de uma antiga unidade hoteleira, já desativada, implantada num terreno com 46178m2, com uma área bruta de construção de 3678.96m2 e uma área bruta privativa (Hotel e Restaurante) com 3642.96m2.
Contempla ainda um complexo desportivo (piscinas, campos de ténis, minigolf, parque infantil) com uma área de 5246m2, uma área de arranjos exteriores (jardins, arruamentos e parqueamentos) com um total de 23597m2 e ainda uma área livre com 13656.04m2.
Existe um projeto aprovado, com licença de construção a pagamento, para a construção de uma Unidade de Cuidados Continuados (UCC), composta por 2 Edifícios (Edifício A e Edifício B).
Para o Edifício A está projetado para serviços médicos (consultórios médicos, reabilitação e fisioterapia).
Para o Edifício B está previsto um total de 61 quartos (52 quartos duplos e 9 quartos individuais), áreas comuns como receção, sala de espera, consultório médico, sala de convívio, refeitório e cozinha.
Na conexão entre os dois edifícios, está previsto um ginásio, salas de fisioterapia e hidroterapia.
50 camas serão afetas ao Serviço Nacional de Saúde, e servirão 3 regiões.
Não perca esta excelente oportunidade, quer para aproveitar e recuperar as infraestruturas já existentes, quer para dar continuidade ao projeto já aprovado!
Localização
Pego, Abrantes, Santarém
Informação do anúncio
ID do anúncio
358417
Referência Externa
0517
Atualizado em
26/04/2026 02:16:41
Anunciante
Chamada para a rede fixa nacional
Costumes Urbanos, Lda
AMI 17575
Referência do imóvel:
0517
Negócio para Venda em Pego