Moradia T4 para Venda em Boliqueime
2.000.000 €
Tipo
Moradia
Negócio
Venda
Ano de Construção
2021
Quartos
4
Casas de Banho
7
Área Útil
497 m²
Certificado Energético
N/A
Área do Terreno
2780 m²
Casa / Villa T4 em Boliqueime de 497,00 m²
Fantástica moradia de luxo V4, com piscina e vista mar
A moradia é adquirida com todos os acabamentos. Na base de construção atual os novos proprietários escolher os acabamentos e outros detalhes de forma a incorporar o seu gosto pessoal.
A moradia apresenta um design único, tendo uma área de construção de 562 metros quadrados. Utilizando materiais e equipamentos de alta qualidade. Uma arquitetura moderna que segue as últimas tendências conferindo uma atmosfera interior repleta de conforto e luminosidade. No exterior temos uma magnifica vista mar.
A moradia está inserida num lote de terreno de 2780 metros quadrados, estando a sua implantação no terreno feita de forma aproveitar ao máximo a vista mar.
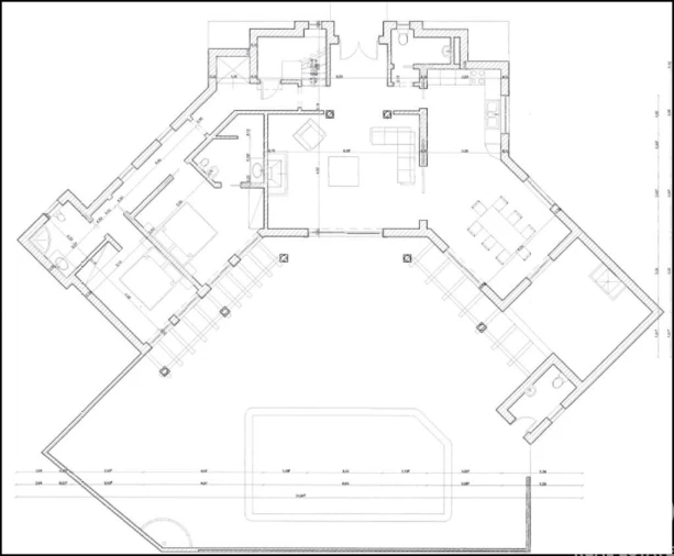
No piso térreo encontramos uma espaçosa sala com lareira, uma cozinha em conceito open space, ligada á zona de refeições.
Temos 2 quartos em suite, uma casa de banho de serviço, despensa, zona de barbecue coberto, com acesso pela cozinha. Todas as divisões do primeiro piso têm acesso a varanda da zona da piscina e da magnifica vista.
No primeiro andar temos 2 quartos em suite, sendo um deles a master suite com uma área de mais de 50 metros quadrados. Os quartos tem terraço privativo com vista mar.
No piso -1, encontramos uma enorme cave com mais de 250 metros quadrados, onde podemos estacionar 6 carros. A cave tem ainda uma lavandaria, zona de arrumos e uma zona de convívio, que pode ser usada, como ginásio, sala de jogos, sala de cinema e outros usos que o proprietário queira dar.
A moradia está preparada para a instalação de elevador, servindo todos os pisos.
No exterior do piso térreo temos uma piscina de onde podemos usufruir da magnifica vista, tendo em seu redor uma ampla extensão de zona de sombra, bem como uma casa de banho de apoio á piscina, um duche exterior. A zona da piscina permite o acesso direto á zona de jardim.
Na propriedade podemos ainda encontrar arvores de fruto, oliveiras, alfarrobeiras e figueiras. Todo o terreno está vedado.
A moradia incorporará entre outros os seguintes acabamentos:
- Cozinha parcialmente equipada
- Chão radiante
- Tetos falsos
- Roupeiros embutidos
- Pequena cozinha na cave
- Lavandaria instalada na cave, não equipada
- Ar condicionado central
- Sistema de domótica
- Aspiração central
- Portões de entrada elétricos
- Painéis Solares
- Elevador
- Piscina aquecida
Esta moradia situada a apenas a 2 minutos de carro do centro vila de Boliqueime perto de uma grande variedade de comodidades e serviços como restaurantes, cafés, pastelarias, supermercado. A 2 minutos do acesso á autoestrada A22, 10 minutos de Vilamoura, Albufeira, é uma excelente oportunidade de investimento para habitação própria ou secundária numa região ensolarada o ano inteiro.
Sobre Boliqueime.
Situada no centro do Algarve, esta vila tranquila é conhecida pelas suas ruas pitorescas com vista para o oceano, os seus restaurantes típicos, população afável, zona tranquila e segura.
Está localizada a 30 km do aeroporto de Faro, 10 minutos de carro de Loulé, Vilamoura, Albufeira. 5 minutos do colégio internacional de Vilamoura, 5 minutos dos principais campos de golf de Vilamoura. As famosas praias de Vilamoura de Albufeira, encontra-se a 10 minutos de distância.
Boliqueime tem uma população de cerca de 5.000 pessoas e, tem uma grande variedade de atrações. Atualmente tem uma elevada comunidade estrangeira com residências permanentes ou de férias em Boliqueime, sendo muito significativa, em especial a britânica, holandeses, alemães e franceses.
#ref: 60959
A moradia é adquirida com todos os acabamentos. Na base de construção atual os novos proprietários escolher os acabamentos e outros detalhes de forma a incorporar o seu gosto pessoal.
A moradia apresenta um design único, tendo uma área de construção de 562 metros quadrados. Utilizando materiais e equipamentos de alta qualidade. Uma arquitetura moderna que segue as últimas tendências conferindo uma atmosfera interior repleta de conforto e luminosidade. No exterior temos uma magnifica vista mar.
A moradia está inserida num lote de terreno de 2780 metros quadrados, estando a sua implantação no terreno feita de forma aproveitar ao máximo a vista mar.
No piso térreo encontramos uma espaçosa sala com lareira, uma cozinha em conceito open space, ligada á zona de refeições.
Temos 2 quartos em suite, uma casa de banho de serviço, despensa, zona de barbecue coberto, com acesso pela cozinha. Todas as divisões do primeiro piso têm acesso a varanda da zona da piscina e da magnifica vista.
No primeiro andar temos 2 quartos em suite, sendo um deles a master suite com uma área de mais de 50 metros quadrados. Os quartos tem terraço privativo com vista mar.
No piso -1, encontramos uma enorme cave com mais de 250 metros quadrados, onde podemos estacionar 6 carros. A cave tem ainda uma lavandaria, zona de arrumos e uma zona de convívio, que pode ser usada, como ginásio, sala de jogos, sala de cinema e outros usos que o proprietário queira dar.
A moradia está preparada para a instalação de elevador, servindo todos os pisos.
No exterior do piso térreo temos uma piscina de onde podemos usufruir da magnifica vista, tendo em seu redor uma ampla extensão de zona de sombra, bem como uma casa de banho de apoio á piscina, um duche exterior. A zona da piscina permite o acesso direto á zona de jardim.
Na propriedade podemos ainda encontrar arvores de fruto, oliveiras, alfarrobeiras e figueiras. Todo o terreno está vedado.
A moradia incorporará entre outros os seguintes acabamentos:
- Cozinha parcialmente equipada
- Chão radiante
- Tetos falsos
- Roupeiros embutidos
- Pequena cozinha na cave
- Lavandaria instalada na cave, não equipada
- Ar condicionado central
- Sistema de domótica
- Aspiração central
- Portões de entrada elétricos
- Painéis Solares
- Elevador
- Piscina aquecida
Esta moradia situada a apenas a 2 minutos de carro do centro vila de Boliqueime perto de uma grande variedade de comodidades e serviços como restaurantes, cafés, pastelarias, supermercado. A 2 minutos do acesso á autoestrada A22, 10 minutos de Vilamoura, Albufeira, é uma excelente oportunidade de investimento para habitação própria ou secundária numa região ensolarada o ano inteiro.
Sobre Boliqueime.
Situada no centro do Algarve, esta vila tranquila é conhecida pelas suas ruas pitorescas com vista para o oceano, os seus restaurantes típicos, população afável, zona tranquila e segura.
Está localizada a 30 km do aeroporto de Faro, 10 minutos de carro de Loulé, Vilamoura, Albufeira. 5 minutos do colégio internacional de Vilamoura, 5 minutos dos principais campos de golf de Vilamoura. As famosas praias de Vilamoura de Albufeira, encontra-se a 10 minutos de distância.
Boliqueime tem uma população de cerca de 5.000 pessoas e, tem uma grande variedade de atrações. Atualmente tem uma elevada comunidade estrangeira com residências permanentes ou de férias em Boliqueime, sendo muito significativa, em especial a britânica, holandeses, alemães e franceses.
#ref: 60959
Localização
Boliqueime, Loulé, Faro
Informação do anúncio
ID do anúncio
371030
Referência Externa
60959
Atualizado em
25/04/2026 23:30:37
Moradia T4 para Venda em Boliqueime
Vídeo