Voltar

Moradia T1 para Venda em São Cipriano e Vil de Souto

20.000 €

Tipo
Moradia
Negócio
Venda
Quartos
1
Área Útil
100 m²
Condição
Para recuperar
Certificado Energético

Moradia para Restaurar T1 Venda em São Cipriano e Vil de Souto,Viseu

Descubra uma verdadeira joia escondida em São Cipriano, a apenas 10 minutos de carro da encantadora cidade de Viseu. Esta moradia em pedra, com dois pisos para reconstrução, oferece uma oportunidade única para criar o lar dos seus sonhos em meio à tranquilidade e beleza da paisagem circundante.
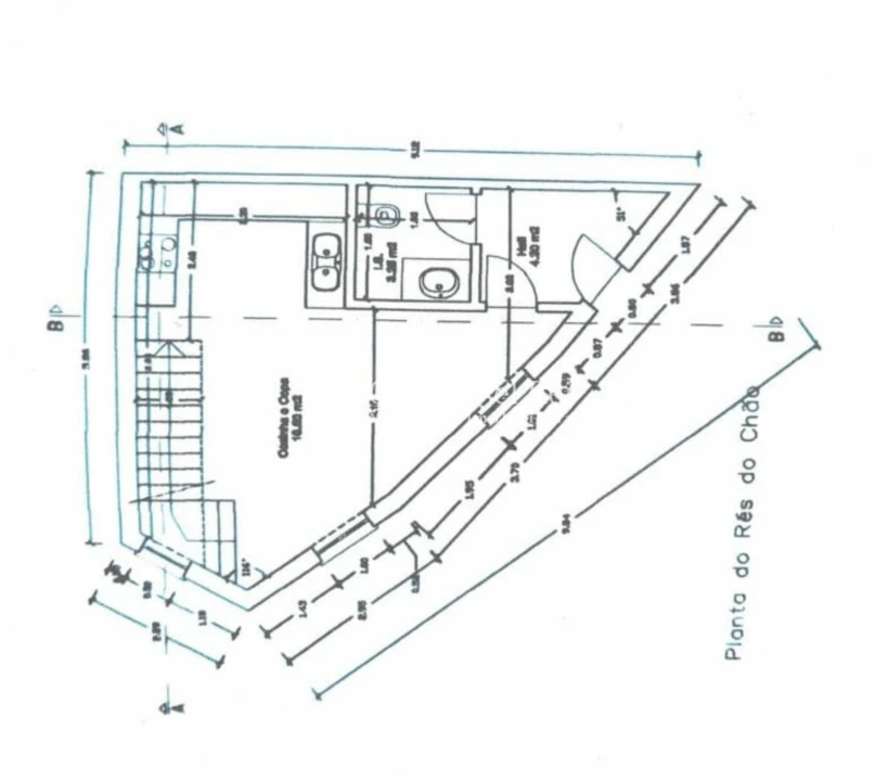
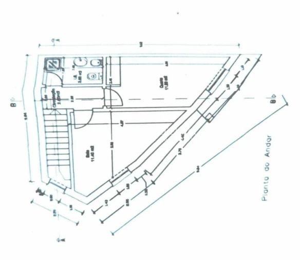
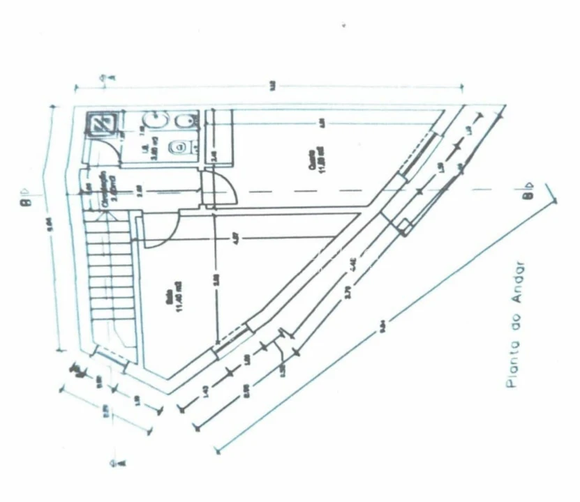
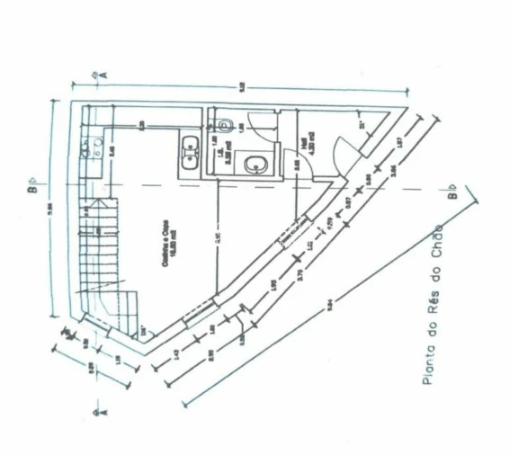
Características da Moradia: 2 Pisos com 100 Metros de Área: Espaçosa e cheia de potencial, esta moradia oferece 100 metros quadrados distribuídos em dois pisos, permitindo que você dê vida às suas ideias e necessidades de espaço. 1 Quarto: Com dois quartos espaçosos, você terá o conforto e a privacidade necessários para acomodar a sua família ou receber os seus convidados com estilo. Construção em Pedra: A robustez e a beleza da construção em pedra conferem um charme rústico e autêntico a esta propriedade, criando um ambiente acolhedor e cheio de caráter. Projeto Aprovado: Com um projeto já aprovado, o caminho para a reconstrução desta moradia está desimpedido, permitindo que você comece a transformá-la no seu refúgio dos sonhos sem demora.Localização Privilegiada:
Situada em São Cipriano, uma localidade tranquila e pitoresca, esta moradia oferece o equilíbrio perfeito entre a paz do campo e a conveniência da proximidade com Viseu. Apenas a 10 minutos de carro, você terá acesso a todas as comodidades da cidade, incluindo lojas, restaurantes, serviços e atividades de lazer.
Potencial Infinito:
Com a sua localização privilegiada e um projeto aprovado em mãos, esta moradia em pedra oferece um potencial infinito para se tornar o seu refúgio perfeito. Deixe a sua imaginação fluir e comece a criar o lar que sempre sonhou em um ambiente sereno e inspirador.
Não deixe escapar esta oportunidade única de investir em uma propriedade com tanto potencial e charme! Entre em contato hoje mesmo para agendar uma visita e iniciar o processo de transformação desta moradia em pedra no seu próprio paraíso pessoal em São Cipriano.

Localização

São Cipriano e Vil de Souto, Viseu, Viseu

Informação do anúncio

ID do anúncio 389453
Referência Externa 1050
Atualizado em 03/06/2025 06:26:32
Chave D`el Rei AMI 16533
Referência do imóvel: 1050
Phone
Chamada para a rede fixa nacional
Chave D`el Rei AMI 16533
Referência do imóvel: 1050
Phone
Chamada para a rede fixa nacional
1 / 15
Moradia T1 para Venda em São Cipriano e Vil de Souto Foto 1
Moradia T1 para Venda em São Cipriano e Vil de Souto Foto 2
Moradia T1 para Venda em São Cipriano e Vil de Souto Foto 3
Moradia T1 para Venda em São Cipriano e Vil de Souto Foto 4
Moradia T1 para Venda em São Cipriano e Vil de Souto Foto 5
Moradia T1 para Venda em São Cipriano e Vil de Souto Foto 6
Moradia T1 para Venda em São Cipriano e Vil de Souto Foto 7
Moradia T1 para Venda em São Cipriano e Vil de Souto Foto 8
Moradia T1 para Venda em São Cipriano e Vil de Souto Foto 9
Moradia T1 para Venda em São Cipriano e Vil de Souto Foto 10
Moradia T1 para Venda em São Cipriano e Vil de Souto Foto 11
Moradia T1 para Venda em São Cipriano e Vil de Souto Foto 12
Moradia T1 para Venda em São Cipriano e Vil de Souto Foto 13
Moradia T1 para Venda em São Cipriano e Vil de Souto Foto 14
Moradia T1 para Venda em São Cipriano e Vil de Souto Foto 15
Clicky