Terreno para Venda em Alte
70.000 €
Tipo
Terreno
Negócio
Venda
Área Bruta
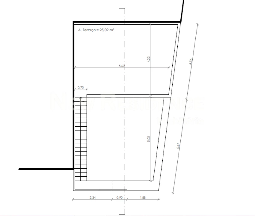
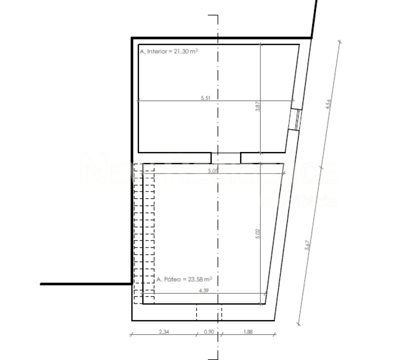
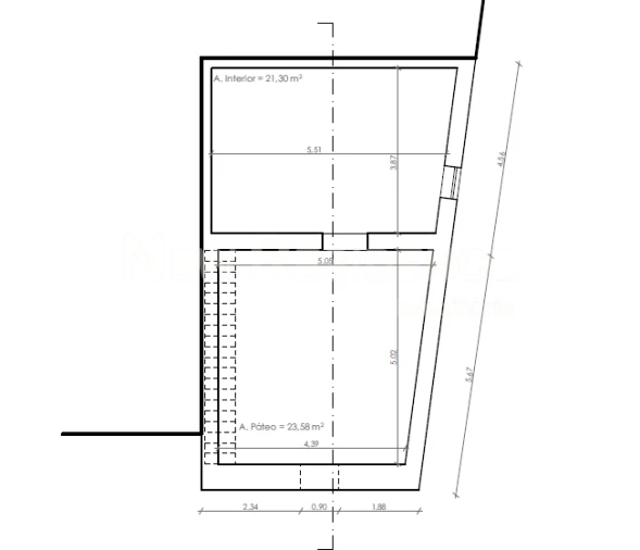
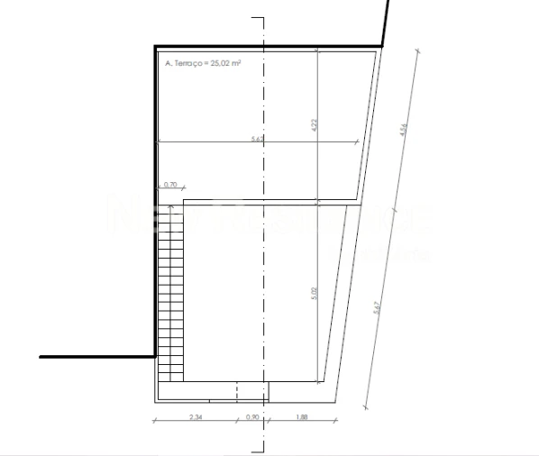
111 m²
Área Útil
77 m²
Condição
Para recuperar
Certificado Energético
Em validação
Área do Terreno
111 m²
Loulé - Ruina no Centro de Alte ( Loulé )
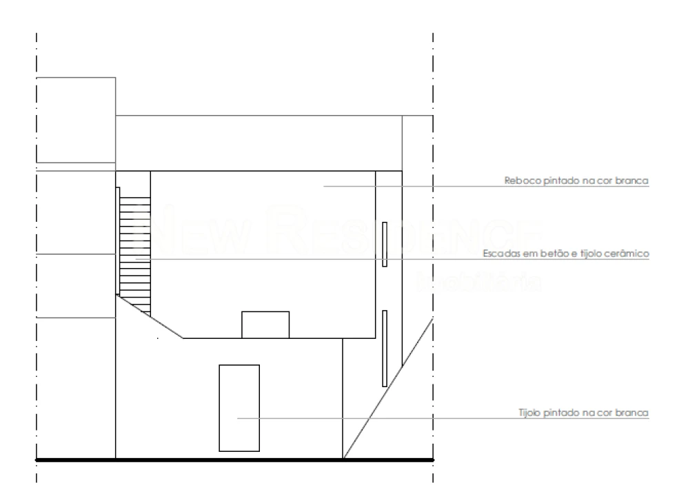
No coração da pitoresca vila de Alte, uma das mais autênticas e encantadoras do Algarve, encontra-se esta ruína com 111m² de área útil e licença de antiguidade, à espera de uma nova vida. Localizada numa das zonas mais preservadas do Algarve, esta propriedade insere-se na Área de Reabilitação Urbana (ARU), o que abre portas a incentivos fiscais e apoios à reabilitação, favorecendo também a implementação de soluções construtivas mais sustentáveis e eficientes.
Com possibilidade de reconstrução total, é viável projetar uma casa de dois pisos com mezanino, terraço e até espaço para estacionamento. A reabilitação pode seguir uma linha rústica, respeitando a tradição da região, ou uma abordagem mais contemporânea, integrando elementos modernos e ecológicos como painéis solares, sistemas de reaproveitamento de águas pluviais, isolamento térmico eficiente e materiais de baixo impacto ambiental.
Alte é uma vila singular, onde o tempo parece abrandar. Rodeada por natureza, ribeiras e fontes naturais, oferece uma atmosfera serena e genuína, perfeita para quem procura qualidade de vida, ligação com a terra e um estilo de vida mais consciente. A apenas 25 km de Albufeira e Loulé, esta localização permite conjugar a tranquilidade do interior com a proximidade à costa e aos principais centros urbanos.
Esta ruína representa mais do que um edifício em destroços. É uma oportunidade de criar algo com identidade, respeito pelo património e compromisso com o futuro. Imagine uma casa de férias com charme ecológico, um alojamento local sustentável ou um espaço criativo onde tradição e inovação coexistem. Aqui, cada pedra pode fazer parte de uma nova história a sua.
Para mais informações ou marcação de visita, entre em contacto. O seu próximo grande projeto começa aqui, onde a natureza e a autenticidade do Algarve se encontram.
Com possibilidade de reconstrução total, é viável projetar uma casa de dois pisos com mezanino, terraço e até espaço para estacionamento. A reabilitação pode seguir uma linha rústica, respeitando a tradição da região, ou uma abordagem mais contemporânea, integrando elementos modernos e ecológicos como painéis solares, sistemas de reaproveitamento de águas pluviais, isolamento térmico eficiente e materiais de baixo impacto ambiental.
Alte é uma vila singular, onde o tempo parece abrandar. Rodeada por natureza, ribeiras e fontes naturais, oferece uma atmosfera serena e genuína, perfeita para quem procura qualidade de vida, ligação com a terra e um estilo de vida mais consciente. A apenas 25 km de Albufeira e Loulé, esta localização permite conjugar a tranquilidade do interior com a proximidade à costa e aos principais centros urbanos.
Esta ruína representa mais do que um edifício em destroços. É uma oportunidade de criar algo com identidade, respeito pelo património e compromisso com o futuro. Imagine uma casa de férias com charme ecológico, um alojamento local sustentável ou um espaço criativo onde tradição e inovação coexistem. Aqui, cada pedra pode fazer parte de uma nova história a sua.
Para mais informações ou marcação de visita, entre em contacto. O seu próximo grande projeto começa aqui, onde a natureza e a autenticidade do Algarve se encontram.
Localização
Alte, Loulé, Faro
Informação do anúncio
ID do anúncio
467396
Referência Externa
NR 0008-25
Atualizado em
04/05/2026 00:37:36
Anunciante
Chamada para a rede fixa nacional
NEW RESIDENCE
AMI 5961
Referência do imóvel:
NR 0008-25
Terreno para Venda em Alte