Negócio para Venda em Vila das Aves
348.000 €
Tipo
Negócio
Negócio
Venda
Casas de Banho
4
Área Bruta
552 m²
Área Útil
552 m²
Garagem
2 lugares
Condição
Usado
Certificado Energético
B
Descrição
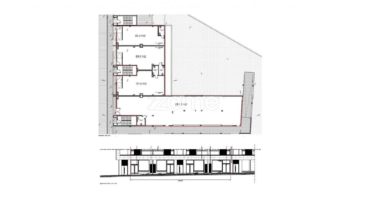
Identificação do imóvel: ZMPT540223
Descrição do imóvel:
Loja com 551,70m2 na Rua de Luvazim, em Vila das Aves
Localização e envolvente:
Localização na Rua de Luvazim 409, em Vila das Aves, Santo Tirso, em prédio destinado a habitação e comércio. Fácil acesso/distribuição automóvel e pedonal.
Na envolvente existe oferta de serviços (cafés, padarias, farmácias, restaurantes, hotéis, mercearias, supermercados, escolas, campus universitário, centros comerciais...) e transportes públicos.
Prédio (de acordo com a Caderneta Predial):
“Prédio em regime de propriedade horizontal. Nº de Pisos do artigo: 5.”
Principais características:
- loja com 551,70m2
- 2 lugares em box fechada (30,50m2)
- atualmente dividida em 4 lojas, com porta comunicante entre elas
- possibilidade de transformação em 6 lojas independentes
- r/c
- 4 frentes
- orientação solar (sul, poente, norte, nascente)
- todas as lojas possuem instalações sanitárias
Lojas/Divisões:
- 1 loja com 291,10m2 com pré-instalação (tubagens) para instalação sanitária
- 1 loja com 91,40m2 com pré-instalação (tubagens) para instalação sanitária
- 1 loja com 89,00m2 com pré-instalação (tubagens) para instalação sanitária
- 1 loja com 80,20m2 com pré-instalação (tubagens) para instalação sanitária
Outras características e valências:
- quadro eléctrico e quadro ATI em cada uma das 6 lojas
- possibilidade de utilização de quadro eléctrico central com capacidade para alimentar um supermercado
- ligação de internet em cada uma das 6 lojas
- ligações para ar condicionado
- pavimento em cerâmica
- tecto com focos embutidos
- espaço abaixo da loja com altura de aproximadamente 1,30m
- portas e louças sanitárias incluídas, faltando apenas a sua colocação (mão de obra/colocação da responsabilidade do comprador)
Pontos de interesse:
- a 15m de cafés/restaurantes
- a 220m do supermercado Intermarché
- a 250m do Posto da GNR
- a 350m da abastecedora de combustíveis (Intermarché)
- a 600m do supermercado LIDL
- a 600m do supermercado Pingo Doce
- a 650m da farmácia
- a 850m da Escola Secundária D. Afonso Henriques
- a 900m do Agrupamento de escolas D. Afonso Henriques
- a 900m do Rio Vizela
- a 1,2km do Estádio do Desportivo das Aves
- a 1,9km do Rio Ave
Transportes e acessos:
- a 450m da N105
- a 1,2km da paragem de comboios (Vila das Aves)
- a 1,4km da paragem de comboios (Giesteira)
- a 7,5km do acesso à A7
- a 37,1km do Aeroporto Francisco Sá Carneiro
Áreas (Segundo a Caderneta Predial):
- Área do terreno integrante: 0,0000 m2
- Área bruta privativa: 551,7000 m2
- Área bruta dependente: 30,5000 m2
Outros valores:
- Valor do condomínio: 60€ (mensal)
- Valor do IMI (anual): 1174,68€
Nota: para maior facilidade na identificação deste imóvel, por favor, refira o respectivo ID. Em caso de agendamento de visita, faça-se acompanhar de um documento de identificação. Muito obrigado!
*****
Descrição do imóvel:
Loja com 551,70m2 na Rua de Luvazim, em Vila das Aves
Localização e envolvente:
Localização na Rua de Luvazim 409, em Vila das Aves, Santo Tirso, em prédio destinado a habitação e comércio. Fácil acesso/distribuição automóvel e pedonal.
Na envolvente existe oferta de serviços (cafés, padarias, farmácias, restaurantes, hotéis, mercearias, supermercados, escolas, campus universitário, centros comerciais...) e transportes públicos.
Prédio (de acordo com a Caderneta Predial):
“Prédio em regime de propriedade horizontal. Nº de Pisos do artigo: 5.”
Principais características:
- loja com 551,70m2
- 2 lugares em box fechada (30,50m2)
- atualmente dividida em 4 lojas, com porta comunicante entre elas
- possibilidade de transformação em 6 lojas independentes
- r/c
- 4 frentes
- orientação solar (sul, poente, norte, nascente)
- todas as lojas possuem instalações sanitárias
Lojas/Divisões:
- 1 loja com 291,10m2 com pré-instalação (tubagens) para instalação sanitária
- 1 loja com 91,40m2 com pré-instalação (tubagens) para instalação sanitária
- 1 loja com 89,00m2 com pré-instalação (tubagens) para instalação sanitária
- 1 loja com 80,20m2 com pré-instalação (tubagens) para instalação sanitária
Outras características e valências:
- quadro eléctrico e quadro ATI em cada uma das 6 lojas
- possibilidade de utilização de quadro eléctrico central com capacidade para alimentar um supermercado
- ligação de internet em cada uma das 6 lojas
- ligações para ar condicionado
- pavimento em cerâmica
- tecto com focos embutidos
- espaço abaixo da loja com altura de aproximadamente 1,30m
- portas e louças sanitárias incluídas, faltando apenas a sua colocação (mão de obra/colocação da responsabilidade do comprador)
Pontos de interesse:
- a 15m de cafés/restaurantes
- a 220m do supermercado Intermarché
- a 250m do Posto da GNR
- a 350m da abastecedora de combustíveis (Intermarché)
- a 600m do supermercado LIDL
- a 600m do supermercado Pingo Doce
- a 650m da farmácia
- a 850m da Escola Secundária D. Afonso Henriques
- a 900m do Agrupamento de escolas D. Afonso Henriques
- a 900m do Rio Vizela
- a 1,2km do Estádio do Desportivo das Aves
- a 1,9km do Rio Ave
Transportes e acessos:
- a 450m da N105
- a 1,2km da paragem de comboios (Vila das Aves)
- a 1,4km da paragem de comboios (Giesteira)
- a 7,5km do acesso à A7
- a 37,1km do Aeroporto Francisco Sá Carneiro
Áreas (Segundo a Caderneta Predial):
- Área do terreno integrante: 0,0000 m2
- Área bruta privativa: 551,7000 m2
- Área bruta dependente: 30,5000 m2
Outros valores:
- Valor do condomínio: 60€ (mensal)
- Valor do IMI (anual): 1174,68€
Nota: para maior facilidade na identificação deste imóvel, por favor, refira o respectivo ID. Em caso de agendamento de visita, faça-se acompanhar de um documento de identificação. Muito obrigado!
*****
Localização
Rua de Luvazim
Vila das Aves, Santo Tirso, Porto
A localização exacta do imóvel não está disponível. O mapa apresenta a zona aproximada.
Informação do anúncio
ID do anúncio
467813
Referência Externa
ZMPT540223
Atualizado em
08/12/2025 07:45:15
Anunciante
Chamada para a rede fixa nacional
ZOME Porto - CEC
AMI 17432
Referência do imóvel:
ZMPT540223
Negócio para Venda em Vila das Aves