Moradia T3 para Venda em São Mamede de Infesta e Senhora da Hora
240.000 €
Tipo
Moradia
Negócio
Venda
Quartos
3
Casas de Banho
3
Área Bruta
193 m²
Área Útil
193 m²
Condição
Em Projecto
Certificado Energético
C
Área do Terreno
241 m²
Moradia para Recuperar | Sra. Hora-Guifões
Moradia T3 para Recuperar com Projecto Aprovado em Guifões
Esta moradia composta por R/C, 1º Andar e Anexo, com a obra de pedreiro praticamente concluída, localizada em artéria central de Guifões, Matosinhos, conta com:
Área do terreno – 240.90m2
Área de implantação – 168.65m2
Área Bruta do Rés-do-chão (sem anexo) – 101.00 m2
Área Bruta do Piso 1 – 82.25 m2
Área Bruta de Construção (total) – 238.82 m2
Área útil interior – 192,80 m2
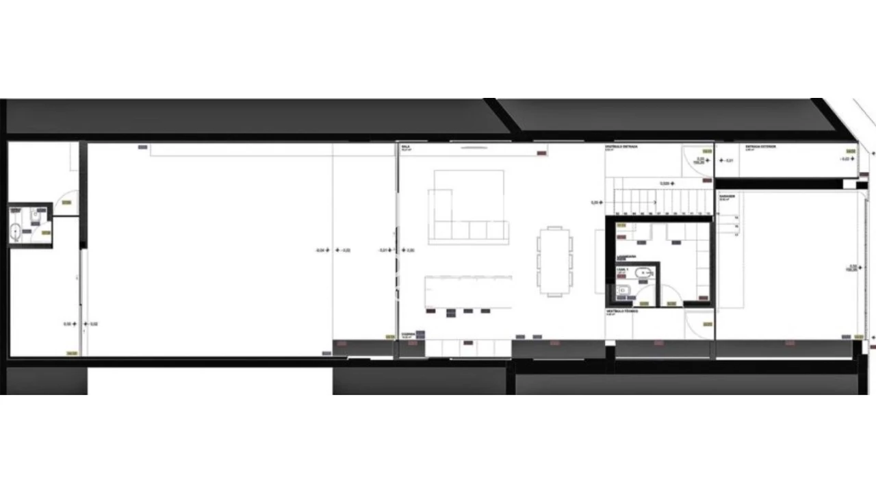
A distribuição das áreas por piso, a realizar de forma harmoniosa e adaptada à necessidade do quotidiano familiar, tem como principal intuito potenciar a funcionalidade mas nunca descurando o conforto. Assim, conseguimos encontrar no Rés-do-chão as seguintes divisões:
Pátio Exterior de Recepção à Habitação com 6,5m2;
Garagem com 31m2 preparada para acolher duas viaturas;
Hall de entrada com 6m2;
Sala e Cozinha em conceito de “Open Space” com uma área de 53m2 e com acesso ao Jardim;
Lavandaria com 7m2;
WC de serviço com 2m2;
Jardim com 69m2;
Anexo para uso polivalente com 20m2;
Já o 1º Andar acomodará as divisões reservadas da Habitação tais como:
Hall de distribuição com 14m2;
Quarta Suíte com Espaço de Vestir e WC com uma área total de 25m2 e com Acesso a Sumptuoso Terraço com 20m2 estando exposto a Sul;
2 Quartos tendo,cada,12m2;
WC completo com 5m2;
Outras características descritas no projecto:
Aquecimento ambiente proporcionado por caldeira mural de condensação a gás natural interligada a pavimento radiante embebido na totalidade da Habitação;
Aquecimento das águas sanitárias realizada através de um sistema solar térmico de circulação forçada composto por 2 colectores;
Jardim definido pelos muros laterais do logradouro que serão mantidos. A nível de arranjos exteriores o jardim terá, um relvado, uma árvore e uma fonte, apenas com algumas lajetas de mármore distribuídas aleatoriamente que ligam a casa ao anexo.
Exterior revestido a capoto, pintado a branco (mantendo a cor original da casa), garantindo assim o conforto térmico exigido nos dias de hoje.
As telhas e as pendentes na cobertura serão para manter, recolocadas sobre painéis com isolamento térmico, num sistema tipo onduline.
Os caixilhos de toda a casa serão em alumínio com aro oculto anodizados à cor natural, e vidro duplo com protecção social.
Todas as divisões da casa serão em soalho de madeira com reboco em paredes e tectos, à excepção da garagem, da lavandaria e das casas de banho. A garagem terá o pavimento em betão talochado e reboco nas paredes e tecto. As casas de banho e a lavandaria terão o chão e rodapé em mármore, com azulejo até aos 2 metros de altura e reboco hidrófugo em restante paredes e tecto.
As portas interiores serão forradas a MDF lacado a branco, com batentes em madeira embutidos.
Os móveis fixos serão em MDF no exterior e melamina no interior, lacado a banco. As bancadas e topos das casas de banho e cozinha serão em mármore.
A localização desta moradia é de excelência estando a apenas 2,5Kms do centro da cidade de Matosinhos e a apenas 600 metros do centro da freguesia de Guifões onde temos acesso a tudo o que é importante.
A Estação de Metro de Vasco da Gama está a apenas 800 metros e a 500 metros do acesso à AE A4.
Projecto aprovado e obra licenciada na Câmara Municipal de Matosinhos. Projecto de execução para a 2ª fase da obra totalmente estipulado com caderno de encargos e orçamento de obra definido. Se optar por concluir a obra tal como está planeada facultamos os contactos do arquitecto e empreiteiro.
Para quem procura qualidade…
Marque a sua visita ainda hoje!!
Localização
São Mamede de Infesta e Senhora da Hora, Matosinhos, Porto
Este site utiliza cookies. Ao navegar no site estará a consentir a sua utilização. Para mais informações sobre os cookies pode consultar a
política de privacidade.