Terreno para Venda em Santa Barbara de Nexe
650.000 €
Tipo
Terreno
Negócio
Venda
Área Bruta
1350 m²
Área Útil
1350 m²
Condição
Para Obras
Certificado Energético
Não aplicável
Área do Terreno
2320 m²
Terreno com 2.320m2 ideal para projeto de Residências Sénior em Santa Bárbara de Nexe
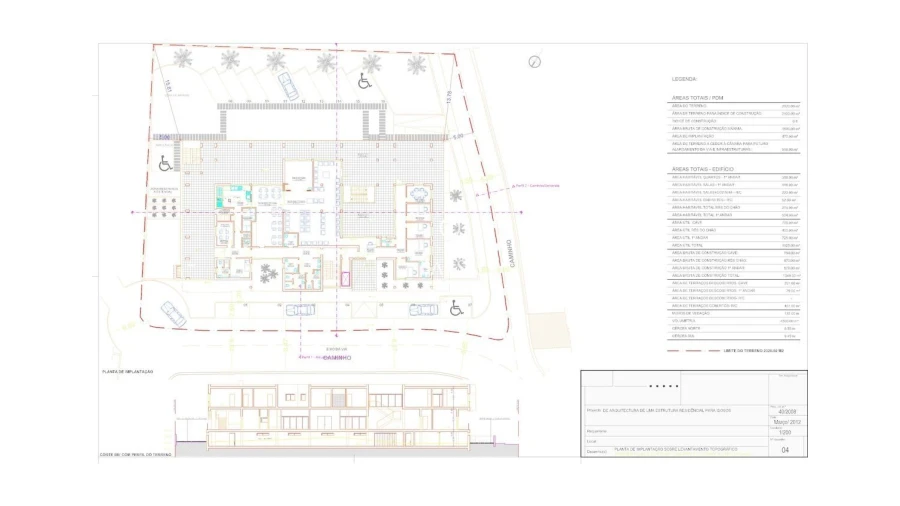
Terreno situado junto à aldeia de Santa Bárbara de Nexe ideal para desenvolver um projeto para uma Residência Sénior, sendo que, já teve projeto aprovado na Câmara Municipal de Faro para estabelecimento para 40 utentes, entretanto encontra-se caducado.
O terreno tinha projeto para a construção de uma Estrutura Residencial para Idosos, bem perto de Santa Bárbara de Nexe. O projeto caducado prevê a construção de um edifício de 3 pisos (cave, rés-do-chão e 1º andar) com elevador, num total de 1.350m2.
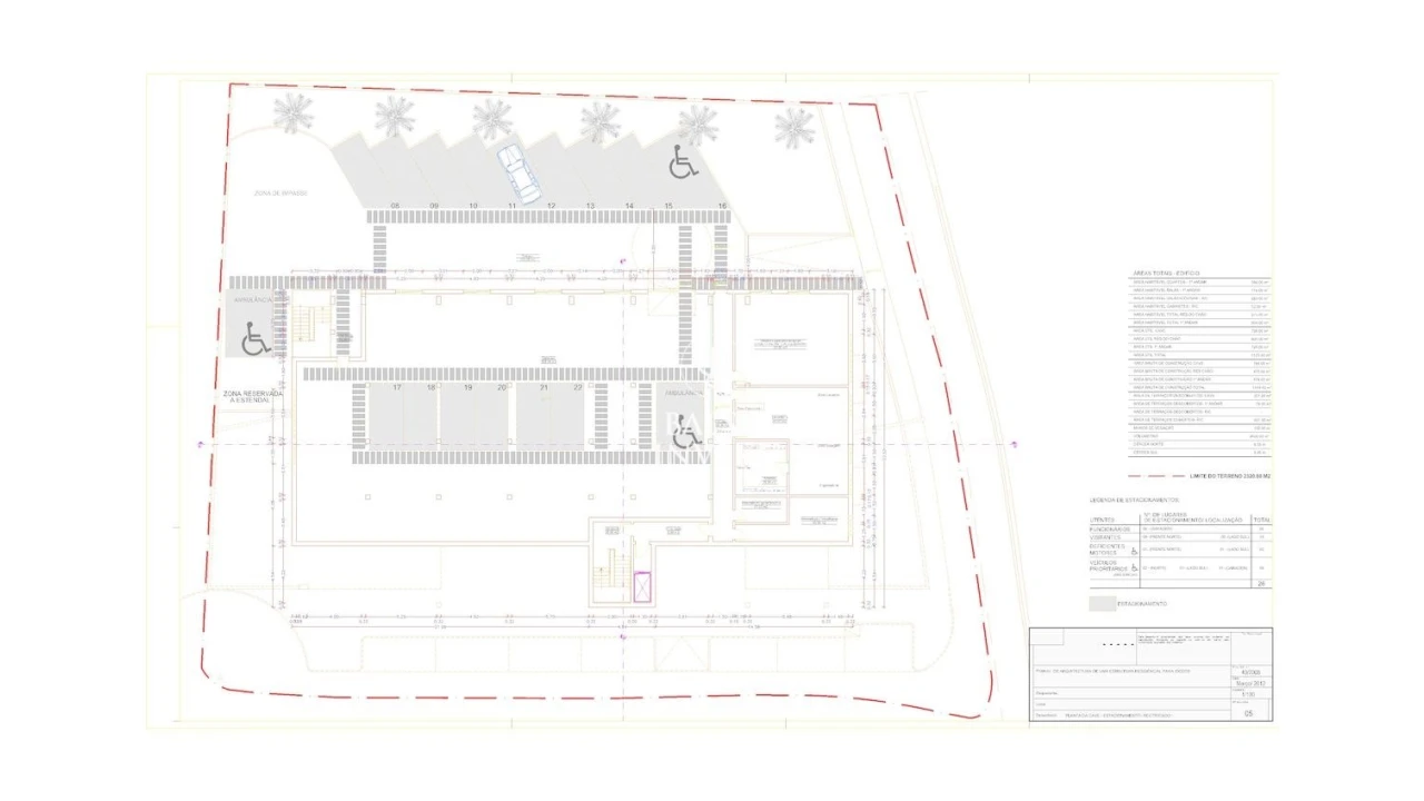
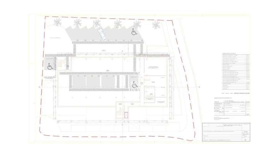
O edifício prevê uma cave com 784m2 para 6 estacionamentos dos funcionários, além de várias zonas de arrumos e arrecadações, zonas técnicas e lavandaria.
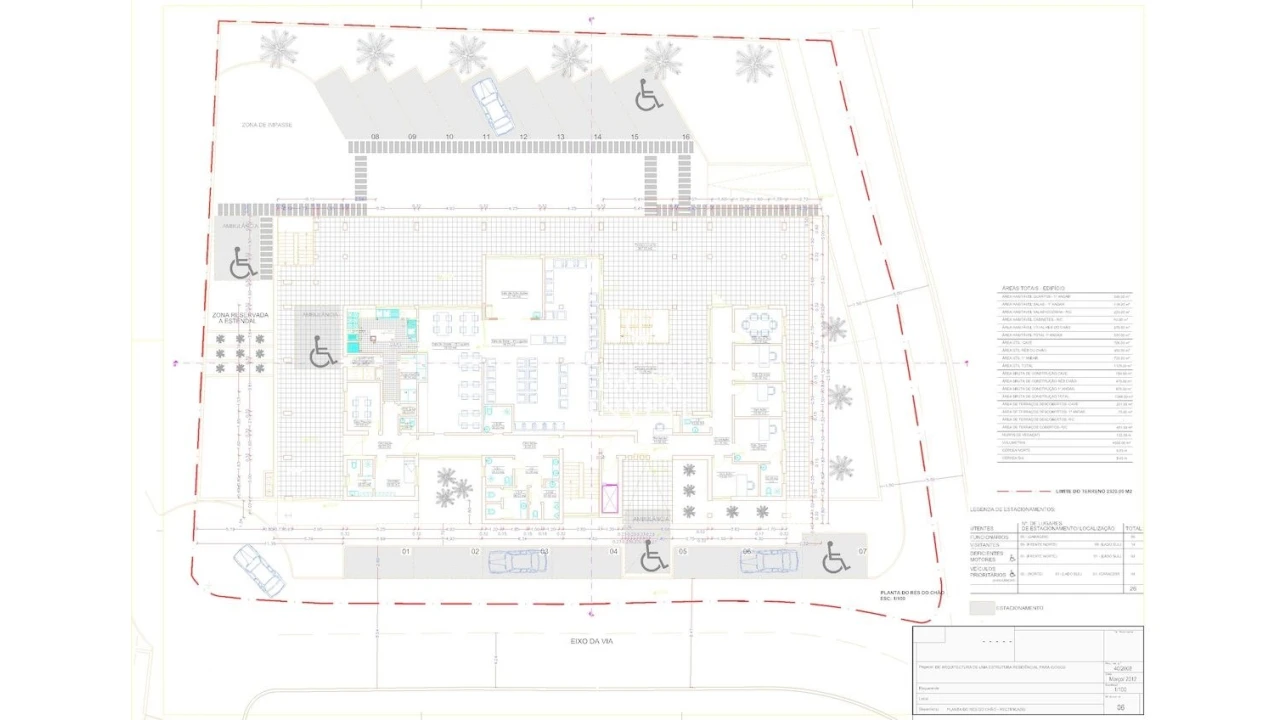
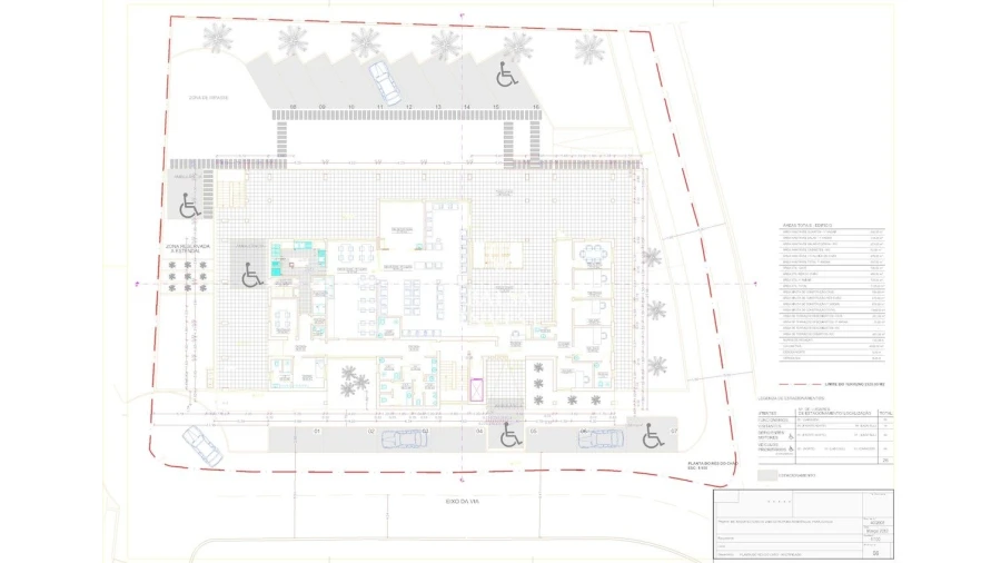
Ao nível do rés-do-chão, com uma implantação total de 470m2, encontramos a zona de receção, cozinha, sala pessoal, escritórios administrativos, instalações sanitárias, gabinetes de saúde, salas de atividades, sala de jantar, sala de estar e mais de 400m2 em terraços cobertos.
Nos 879m2 no 1º andar localizam-se os quartos utentes, 10 individuais, 13 duplos e 2 estúdios duplos, todos com casas de banho privativas.
No exterior está previsto estacionamento para visitantes, deficientes motores e veículos prioritários, num total de 20 lugares.
Dista cerca de 4Km de Loulé, 12Km de Faro e a 3Km de Santa Barbara de Nexe.
Características:
- Área do Terreno 2.320 m2
- Área de construção 1.350 m2
- Área de implantação 470 m2
- Certificado Energético - Isento - Excluído do SCE, ao abrigo do artigo 4º, do Decreto-Lei Nº 118/2013, de 20 de Agosto
Ligue-nos para mais informações.
BALSA INVEST. Negócios de Confiança.
O terreno tinha projeto para a construção de uma Estrutura Residencial para Idosos, bem perto de Santa Bárbara de Nexe. O projeto caducado prevê a construção de um edifício de 3 pisos (cave, rés-do-chão e 1º andar) com elevador, num total de 1.350m2.
O edifício prevê uma cave com 784m2 para 6 estacionamentos dos funcionários, além de várias zonas de arrumos e arrecadações, zonas técnicas e lavandaria.
Ao nível do rés-do-chão, com uma implantação total de 470m2, encontramos a zona de receção, cozinha, sala pessoal, escritórios administrativos, instalações sanitárias, gabinetes de saúde, salas de atividades, sala de jantar, sala de estar e mais de 400m2 em terraços cobertos.
Nos 879m2 no 1º andar localizam-se os quartos utentes, 10 individuais, 13 duplos e 2 estúdios duplos, todos com casas de banho privativas.
No exterior está previsto estacionamento para visitantes, deficientes motores e veículos prioritários, num total de 20 lugares.
Dista cerca de 4Km de Loulé, 12Km de Faro e a 3Km de Santa Barbara de Nexe.
Características:
- Área do Terreno 2.320 m2
- Área de construção 1.350 m2
- Área de implantação 470 m2
- Certificado Energético - Isento - Excluído do SCE, ao abrigo do artigo 4º, do Decreto-Lei Nº 118/2013, de 20 de Agosto
Ligue-nos para mais informações.
BALSA INVEST. Negócios de Confiança.
Localização
Santa Barbara de Nexe, Faro, Faro
Informação do anúncio
ID do anúncio
534580
Referência Externa
B1445-P
Atualizado em
04/05/2026 00:30:42
Anunciante
Chamada para a rede móvel nacional
Balsa Invest Imobiliária
AMI 17067
Referência do imóvel:
B1445-P
Terreno para Venda em Santa Barbara de Nexe
Vídeo