Terreno para Venda em Salreu
28.000 €
Tipo
Terreno
Negócio
Venda
Certificado Energético
N/A
Área do Terreno
487 m²
Lote para construção, Salreu, Estarreja
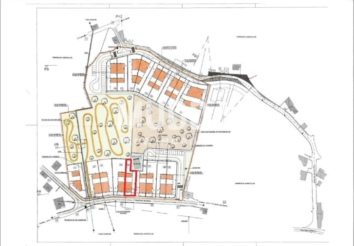
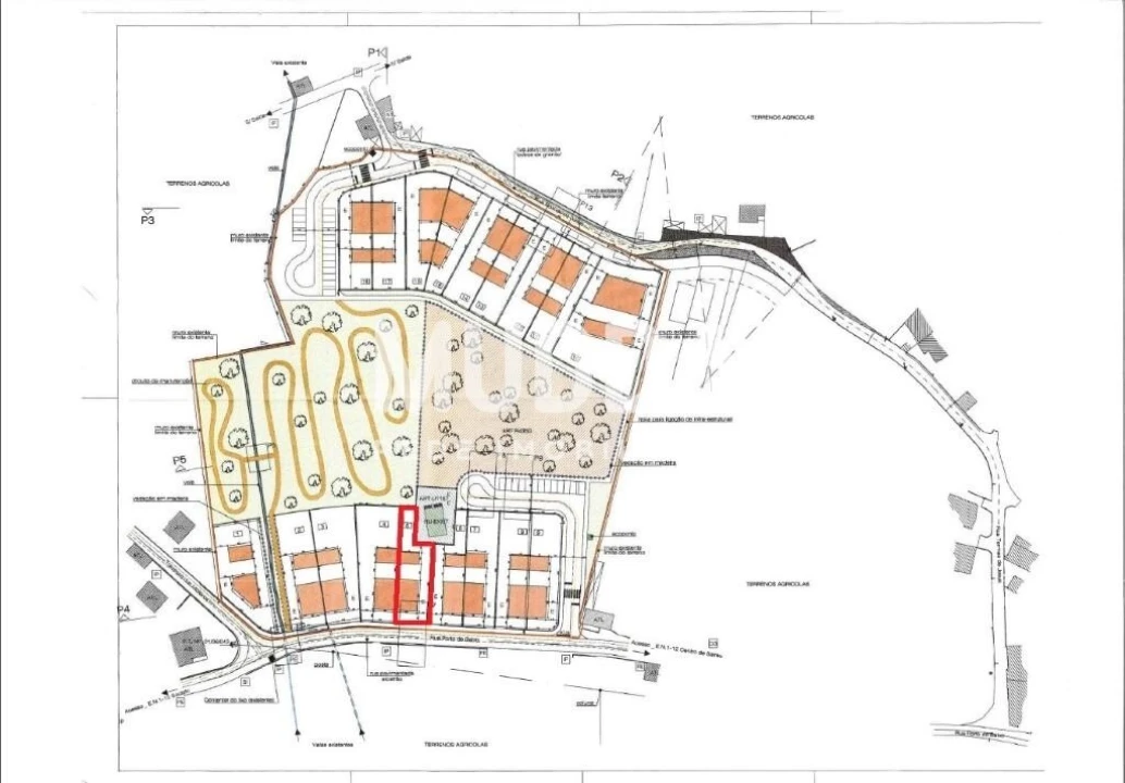
Lote para construção de habitação unifamiliar, inserido em loteamento com um total de 18 lotes.
Este lote em particular, tem área total de 487,72 m2, área para habitação de 192 m2, área de cave de 96 m2 e área para construção de anexos de 36 m2.
Localizado na Vila de Salreu, concelho de Estarreja, em zona calma rodeada de natureza e com facéis acessos. A 4 minutos do acesso da A29 e a 8 minutos do centro da cidade de Estarreja onde dispõe de todo o tipo de serviços e comércio.
Esta pode ser a oportunidade que procurava para construir a sua moradia de sonho!
Marque a sua visita!
???? ?́ ? ???????, ?????® ? ??? ????!
Este lote em particular, tem área total de 487,72 m2, área para habitação de 192 m2, área de cave de 96 m2 e área para construção de anexos de 36 m2.
Localizado na Vila de Salreu, concelho de Estarreja, em zona calma rodeada de natureza e com facéis acessos. A 4 minutos do acesso da A29 e a 8 minutos do centro da cidade de Estarreja onde dispõe de todo o tipo de serviços e comércio.
Esta pode ser a oportunidade que procurava para construir a sua moradia de sonho!
Marque a sua visita!
???? ?́ ? ???????, ?????® ? ??? ????!
Localização
Salreu, Estarreja, Aveiro
Informação do anúncio
ID do anúncio
542636
Referência Externa
MUDDA.2166.19923
Atualizado em
26/04/2026 23:20:19
Anunciante
Chamada para a rede fixa nacional
MUDDA i9
AMI 19923
Referência do imóvel:
MUDDA.2166.19923
Terreno para Venda em Salreu
Vídeo