Terreno para Venda em Salreu
32.000 €
Tipo
Terreno
Negócio
Venda
Certificado Energético
N/A
Área do Terreno
565 m²
Lote para construção, Salreu, Estarreja
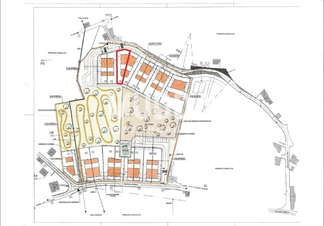
Lote para construção de habitação unifamiliar, inserido em loteamento com um total de 18 lotes.
Este lote em particular, tem área total de 565,52 m2, área para habitação de 227,50 m2 e área para construção de anexos de 39,89 m2.
Localizado na Vila de Salreu, concelho de Estarreja, em zona calma rodeada de natureza e com facéis acessos. A 4 minutos do acesso da A29 e a 8 minutos do centro da cidade de Estarreja onde dispõe de todo o tipo de serviços e comércio.
Esta pode ser a oportunidade que procurava para construir a sua moradia de sonho!
Marque a sua visita!
???? ?́ ? ???????, ?????® ? ??? ????!
Este lote em particular, tem área total de 565,52 m2, área para habitação de 227,50 m2 e área para construção de anexos de 39,89 m2.
Localizado na Vila de Salreu, concelho de Estarreja, em zona calma rodeada de natureza e com facéis acessos. A 4 minutos do acesso da A29 e a 8 minutos do centro da cidade de Estarreja onde dispõe de todo o tipo de serviços e comércio.
Esta pode ser a oportunidade que procurava para construir a sua moradia de sonho!
Marque a sua visita!
???? ?́ ? ???????, ?????® ? ??? ????!
Localização
Salreu, Estarreja, Aveiro
Informação do anúncio
ID do anúncio
543429
Referência Externa
MUDDA.2177.19923
Atualizado em
26/04/2026 23:28:52
Anunciante
Chamada para a rede fixa nacional
MUDDA i9
AMI 19923
Referência do imóvel:
MUDDA.2177.19923
Terreno para Venda em Salreu
Vídeo