Voltar
Terreno para Venda em Valado dos Frades Foto 1
Terreno para Venda em Valado dos Frades Foto 2
Terreno para Venda em Valado dos Frades Foto 3
Terreno para Venda em Valado dos Frades Foto 4
Terreno para Venda em Valado dos Frades Foto 5

Terreno para Venda em Valado dos Frades

52.500 €

Tipo
Terreno
Negócio
Venda
Área Bruta
260 m²
Área Útil
224 m²
Condição
Usado
Certificado Energético
Isento
Área do Terreno
240 m²

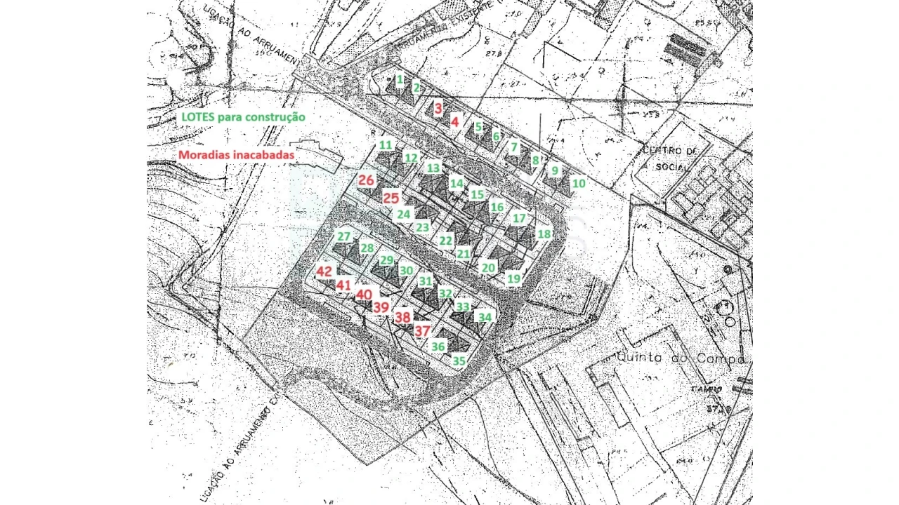
Lotes de terreno para construção de moradias T4, em Valado dos Frades, Nazaré

Lotes de terreno para construção de moradias T4 (até 4 quartos) em Valado dos Frades, Nazaré.

Loteamento recente com todas as infraestruturas terminadas este ano.

Estes lotes preveem a construção de moradias até 3 pisos. Constituídas por cave para garagem (7,55x12 metros); Piso 0 com hall de entrada, quarto/escritório, casa de banho com duche, sala e cozinha com acesso ao jardim; Piso 1 com hall, 3 quartos com roupeiros e varandas (sendo um deles em suíte) e casa de banho de apoio aos 2 quartos. Possui jardim frontal e tardoz no piso 0. No 1.º andar os 3 quartos possuem varanda. Em algumas moradias o escritório/quarto do piso 0 foi incorporado na sala.

São lotes para moradias em geminadas, com áreas entre os 234m2 e os 311m2 e preços de 50.000€ a 78.750€.

Zona tranquila de moradias com vistas desafogadas.

Localização com excelentes acessos. Dista cerca de 350 metros do centro de Valado dos Frades, 750 metros da estação de comboios, 2,5kms da Auto Estrada A8, 5 kms da Nazaré e 7,5kms de Alcobaça.

Venha conhecer e desenvolva o Seu projeto imobiliário!

Localização

Valado dos Frades, Nazaré, Leiria

Informação do anúncio

ID do anúncio 564194
Referência Externa TER_3762
Atualizado em 08/11/2024 17:38:25
Carpe Domus AMI 9466
Referência do imóvel: TER_3762
Phone
Chamada para a rede fixa nacional
Carpe Domus AMI 9466
Referência do imóvel: TER_3762
Phone
Chamada para a rede fixa nacional
1 / 86
Terreno para Venda em Valado dos Frades Foto 1
Terreno para Venda em Valado dos Frades Foto 2
Terreno para Venda em Valado dos Frades Foto 3
Terreno para Venda em Valado dos Frades Foto 4
Terreno para Venda em Valado dos Frades Foto 5
Terreno para Venda em Valado dos Frades Foto 6
Terreno para Venda em Valado dos Frades Foto 7
Terreno para Venda em Valado dos Frades Foto 8
Terreno para Venda em Valado dos Frades Foto 9
Terreno para Venda em Valado dos Frades Foto 10
Terreno para Venda em Valado dos Frades Foto 11
Terreno para Venda em Valado dos Frades Foto 12
Terreno para Venda em Valado dos Frades Foto 13
Terreno para Venda em Valado dos Frades Foto 14
Terreno para Venda em Valado dos Frades Foto 15
Terreno para Venda em Valado dos Frades Foto 16
Terreno para Venda em Valado dos Frades Foto 17
Terreno para Venda em Valado dos Frades Foto 18
Terreno para Venda em Valado dos Frades Foto 19
Terreno para Venda em Valado dos Frades Foto 20
Terreno para Venda em Valado dos Frades Foto 21
Terreno para Venda em Valado dos Frades Foto 22
Terreno para Venda em Valado dos Frades Foto 23
Terreno para Venda em Valado dos Frades Foto 24
Terreno para Venda em Valado dos Frades Foto 25
Terreno para Venda em Valado dos Frades Foto 26
Terreno para Venda em Valado dos Frades Foto 27
Terreno para Venda em Valado dos Frades Foto 28
Terreno para Venda em Valado dos Frades Foto 29
Terreno para Venda em Valado dos Frades Foto 30
Terreno para Venda em Valado dos Frades Foto 31
Terreno para Venda em Valado dos Frades Foto 32
Terreno para Venda em Valado dos Frades Foto 33
Terreno para Venda em Valado dos Frades Foto 34
Terreno para Venda em Valado dos Frades Foto 35
Terreno para Venda em Valado dos Frades Foto 36
Terreno para Venda em Valado dos Frades Foto 37
Terreno para Venda em Valado dos Frades Foto 38
Terreno para Venda em Valado dos Frades Foto 39
Terreno para Venda em Valado dos Frades Foto 40
Terreno para Venda em Valado dos Frades Foto 41
Terreno para Venda em Valado dos Frades Foto 42
Terreno para Venda em Valado dos Frades Foto 43
Terreno para Venda em Valado dos Frades Foto 44
Terreno para Venda em Valado dos Frades Foto 45
Terreno para Venda em Valado dos Frades Foto 46
Terreno para Venda em Valado dos Frades Foto 47
Terreno para Venda em Valado dos Frades Foto 48
Terreno para Venda em Valado dos Frades Foto 49
Terreno para Venda em Valado dos Frades Foto 50
Terreno para Venda em Valado dos Frades Foto 51
Terreno para Venda em Valado dos Frades Foto 52
Terreno para Venda em Valado dos Frades Foto 53
Terreno para Venda em Valado dos Frades Foto 54
Terreno para Venda em Valado dos Frades Foto 55
Terreno para Venda em Valado dos Frades Foto 56
Terreno para Venda em Valado dos Frades Foto 57
Terreno para Venda em Valado dos Frades Foto 58
Terreno para Venda em Valado dos Frades Foto 59
Terreno para Venda em Valado dos Frades Foto 60
Terreno para Venda em Valado dos Frades Foto 61
Terreno para Venda em Valado dos Frades Foto 62
Terreno para Venda em Valado dos Frades Foto 63
Terreno para Venda em Valado dos Frades Foto 64
Terreno para Venda em Valado dos Frades Foto 65
Terreno para Venda em Valado dos Frades Foto 66
Terreno para Venda em Valado dos Frades Foto 67
Terreno para Venda em Valado dos Frades Foto 68
Terreno para Venda em Valado dos Frades Foto 69
Terreno para Venda em Valado dos Frades Foto 70
Terreno para Venda em Valado dos Frades Foto 71
Terreno para Venda em Valado dos Frades Foto 72
Terreno para Venda em Valado dos Frades Foto 73
Terreno para Venda em Valado dos Frades Foto 74
Terreno para Venda em Valado dos Frades Foto 75
Terreno para Venda em Valado dos Frades Foto 76
Terreno para Venda em Valado dos Frades Foto 77
Terreno para Venda em Valado dos Frades Foto 78
Terreno para Venda em Valado dos Frades Foto 79
Terreno para Venda em Valado dos Frades Foto 80
Terreno para Venda em Valado dos Frades Foto 81
Terreno para Venda em Valado dos Frades Foto 82
Terreno para Venda em Valado dos Frades Foto 83
Terreno para Venda em Valado dos Frades Foto 84
Terreno para Venda em Valado dos Frades Foto 85
Terreno para Venda em Valado dos Frades Foto 86
Clicky