Terreno para Venda em Conceição e Cabanas de Tavira
2.700.000 €
Tipo
Terreno
Negócio
Venda
Área Útil
15545 m²
Área do Terreno
15545 m²
Descrição
Identificação do imóvel: ZMPT562242
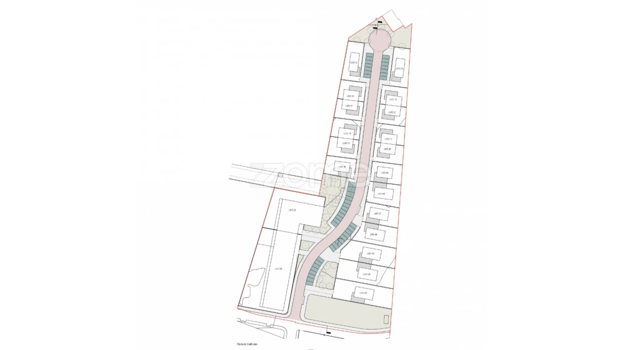
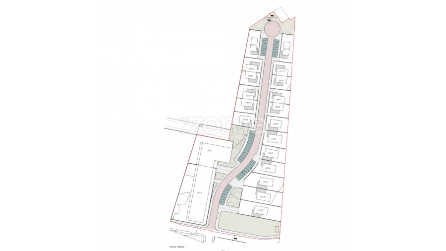
Terreno composto por dois lotes com 15.545 m2, com PIP aprovado pela Câmara Municipal de Tavira, para construção de condomínio fechado, a poucos minutos da praia, em Tavira, Algarve.
O lote I, com 3.400 m2 e orientado a Sul, prevê a construção de dois prédios, com 50 apartamentos (dependendo da tipologia), com garagem subterrânea e viabilidade para construção de piscina.
O lote II de 12.145 m2, prevê a construção de 18 moradias, isoladas e geminadas, com piscina privativa.
O edificado aprovado pelo PIP poderá ser alvo de alteração para outro tipo de construção, que se adeque ao investimento pretendido, podendo por exemplo, ser construído apenas moradias (30 no total).
Lotes com boa localização, junto ao Campo de Golf Benamor e com bom potencial de rentabilidade.
Localizados em primeira linha de mar, estão a 5 minutos walking distance da praia. Está ainda a 5 minutos de carro do terminal rodoviário de Tavira, a 5 minutos do Mercado Municipal e da Estação Ferroviária de Tavira, a 45 minutos do Aeroporto de Faro e a duas horas e meia de Lisboa e do Aeroporto de Sevilha.
3 razões para comprar com a Zome
+ acompanhamento
Com uma preparação e experiência única no mercado imobiliário, os consultores Zome põem toda a sua dedicação em dar-lhe o melhor acompanhamento, orientando-o com a máxima confiança, na direção certa das suas necessidades e ambições.
Daqui para a frente, vamos criar uma relação próxima e escutar com atenção as suas expectativas, porque a nossa prioridade é a sua felicidade! Porque é importante que sinta que está acompanhado, e que estamos consigo sempre.
+ simples
Os consultores Zome têm uma formação única no mercado, ancorada na partilha de experiência prática entre profissionais e fortalecida pelo conhecimento de neurociência aplicada que lhes permite simplificar e tornar mais eficaz a sua experiência imobiliária.
Deixe para trás os pesadelos burocráticos porque na Zome encontra o apoio total de uma equipa experiente e multidisciplinar que lhe dá suporte prático em todos os aspetos fundamentais, para que a sua experiência imobiliária supere as expectativas.
+ feliz
O nosso maior valor é entregar-lhe felicidade!
Liberte-se de preocupações e ganhe o tempo de qualidade que necessita para se dedicar ao que lhe faz mais feliz.
Agimos diariamente para trazer mais valor à sua vida com o aconselhamento fiável de que precisa para, juntos, conseguirmos atingir os melhores resultados.
Com a Zome nunca vai estar perdido ou desacompanhado e encontrará algo que não tem preço: a sua máxima tranquilidade!
É assim que se vai sentir ao longo de toda a experiência: Tranquilo, seguro, confortável e... FELIZ!
Notas:
1. Caso seja um consultor imobiliário, este imóvel está disponível para partilha de negócio. Não hesite em apresentar aos seus clientes compradores e fale connosco para agendar a sua visita.
2. Para maior facilidade na identificação deste imóvel, por favor, refira o respetivo ID ZMPT ou o respetivo agente que lhe tenha enviado a sugestão.
Terreno composto por dois lotes com 15.545 m2, com PIP aprovado pela Câmara Municipal de Tavira, para construção de condomínio fechado, a poucos minutos da praia, em Tavira, Algarve.
O lote I, com 3.400 m2 e orientado a Sul, prevê a construção de dois prédios, com 50 apartamentos (dependendo da tipologia), com garagem subterrânea e viabilidade para construção de piscina.
O lote II de 12.145 m2, prevê a construção de 18 moradias, isoladas e geminadas, com piscina privativa.
O edificado aprovado pelo PIP poderá ser alvo de alteração para outro tipo de construção, que se adeque ao investimento pretendido, podendo por exemplo, ser construído apenas moradias (30 no total).
Lotes com boa localização, junto ao Campo de Golf Benamor e com bom potencial de rentabilidade.
Localizados em primeira linha de mar, estão a 5 minutos walking distance da praia. Está ainda a 5 minutos de carro do terminal rodoviário de Tavira, a 5 minutos do Mercado Municipal e da Estação Ferroviária de Tavira, a 45 minutos do Aeroporto de Faro e a duas horas e meia de Lisboa e do Aeroporto de Sevilha.
3 razões para comprar com a Zome
+ acompanhamento
Com uma preparação e experiência única no mercado imobiliário, os consultores Zome põem toda a sua dedicação em dar-lhe o melhor acompanhamento, orientando-o com a máxima confiança, na direção certa das suas necessidades e ambições.
Daqui para a frente, vamos criar uma relação próxima e escutar com atenção as suas expectativas, porque a nossa prioridade é a sua felicidade! Porque é importante que sinta que está acompanhado, e que estamos consigo sempre.
+ simples
Os consultores Zome têm uma formação única no mercado, ancorada na partilha de experiência prática entre profissionais e fortalecida pelo conhecimento de neurociência aplicada que lhes permite simplificar e tornar mais eficaz a sua experiência imobiliária.
Deixe para trás os pesadelos burocráticos porque na Zome encontra o apoio total de uma equipa experiente e multidisciplinar que lhe dá suporte prático em todos os aspetos fundamentais, para que a sua experiência imobiliária supere as expectativas.
+ feliz
O nosso maior valor é entregar-lhe felicidade!
Liberte-se de preocupações e ganhe o tempo de qualidade que necessita para se dedicar ao que lhe faz mais feliz.
Agimos diariamente para trazer mais valor à sua vida com o aconselhamento fiável de que precisa para, juntos, conseguirmos atingir os melhores resultados.
Com a Zome nunca vai estar perdido ou desacompanhado e encontrará algo que não tem preço: a sua máxima tranquilidade!
É assim que se vai sentir ao longo de toda a experiência: Tranquilo, seguro, confortável e... FELIZ!
Notas:
1. Caso seja um consultor imobiliário, este imóvel está disponível para partilha de negócio. Não hesite em apresentar aos seus clientes compradores e fale connosco para agendar a sua visita.
2. Para maior facilidade na identificação deste imóvel, por favor, refira o respetivo ID ZMPT ou o respetivo agente que lhe tenha enviado a sugestão.
Localização
Rua do Estanco Velho
Conceição e Cabanas de Tavira, Tavira, Faro
A localização exacta do imóvel não está disponível. O mapa apresenta a zona aproximada.
Informação do anúncio
ID do anúncio
628815
Referência Externa
ZMPT562242
Atualizado em
03/05/2026 06:02:38
Anunciante
Chamada para a rede fixa nacional
ZOME Lisboa Restelo
AMI 4662
Referência do imóvel:
ZMPT562242
Terreno para Venda em Conceição e Cabanas de Tavira