Moradia T3 para Venda em Moure
414.000 €
Tipo
Moradia
Negócio
Venda
Ano de Construção
2024
Quartos
3
Casas de Banho
3
Área Bruta
300 m²
Área Útil
300 m²
Certificado Energético
A
Área do Terreno
600 m²
Moradia T3 Individual - Moure, Vila Verde
?Vende-se moradia T3 na freguesia de Moure, localizada em Vila Verde. Esta moradia é ideal para quem procura tranquilidade e qualidade de vida.
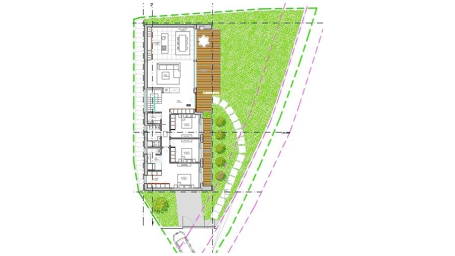
Inserida num lote de terreno 600m2, com uma área de construção de 299,60m2. Localizada numa zona tranquila de Moure, esta moradia beneficia da proximidade a diversos serviços e comércios locais, como supermercados, farmácias e restaurantes. Além disso, está apenas a alguns minutos de distância de Vila Verde, onde se encontra uma vasta oferta de serviços.
Constituída por:
Rés-do-chão:
- Hall de entrada;
- Cozinha Open Space com ilha;
- Sala estar e jantar;
- WC de serviço;
- Suite com closet;
- Quartos com roupeiros embutidos;
- WC completo de apoio aos quartos;
- Alpendre;
- Churrasqueira;
Piso Inferior:
- Lavandaria;
- Arrumos;
- Garagem;
- Alpendre;
?De destacar ainda:
- Instalação completa de bomba de calor 300Lts;
- Pré-instalação de painéis solares;
- Instalação de ar condicionado por conduta;
- Instalação de vídeo - porteiro;
- Caixilharia com rutura corte térmico, com vidros duplos;
- Estores em alumínio elétricos exteriores;
- Portões interiores e exteriores automáticos.
Possibilidade de escolher acabamentos conforme caderno de encargos.
Agende já a sua visita!
----
?3 bedroom house for sale in the parish of Moure, located in Vila Verde. This villa is ideal for those looking for tranquility and quality of life.
Located on a 600m2 plot of land, with a construction area of 299.60m2. Located in a quiet area of Moure, this house benefits from proximity to various local services and shops, such as supermarkets, pharmacies and restaurants. Furthermore, it is just a few minutes away from Vila Verde, where you will find a wide range of services.
Consisting of:
Ground floor:
- Entrance hall;
- Open Space kitchen with island;
- Living and dining room;
- Service WC;
- Suite with closet;
- Bedrooms with built-in wardrobes;
- Complete bathroom to support the rooms;
- Front porch;
- Grill;
Lower floor:
- Laundry;
- Storage;
- Garage;
- Front porch;
?Also worth highlighting:
- Complete installation of a 300L heat pump;
- Pre-installation of solar panels;
- Installation of duct air conditioning;
- Video installation - intercom;
- Frames with thermal break, with double glazing;
- Exterior electric aluminum blinds;
- Automatic interior and exterior gates.
Possibility to choose finishes according to specifications.
Schedule your visit now!
Inserida num lote de terreno 600m2, com uma área de construção de 299,60m2. Localizada numa zona tranquila de Moure, esta moradia beneficia da proximidade a diversos serviços e comércios locais, como supermercados, farmácias e restaurantes. Além disso, está apenas a alguns minutos de distância de Vila Verde, onde se encontra uma vasta oferta de serviços.
Constituída por:
Rés-do-chão:
- Hall de entrada;
- Cozinha Open Space com ilha;
- Sala estar e jantar;
- WC de serviço;
- Suite com closet;
- Quartos com roupeiros embutidos;
- WC completo de apoio aos quartos;
- Alpendre;
- Churrasqueira;
Piso Inferior:
- Lavandaria;
- Arrumos;
- Garagem;
- Alpendre;
?De destacar ainda:
- Instalação completa de bomba de calor 300Lts;
- Pré-instalação de painéis solares;
- Instalação de ar condicionado por conduta;
- Instalação de vídeo - porteiro;
- Caixilharia com rutura corte térmico, com vidros duplos;
- Estores em alumínio elétricos exteriores;
- Portões interiores e exteriores automáticos.
Possibilidade de escolher acabamentos conforme caderno de encargos.
Agende já a sua visita!
----
?3 bedroom house for sale in the parish of Moure, located in Vila Verde. This villa is ideal for those looking for tranquility and quality of life.
Located on a 600m2 plot of land, with a construction area of 299.60m2. Located in a quiet area of Moure, this house benefits from proximity to various local services and shops, such as supermarkets, pharmacies and restaurants. Furthermore, it is just a few minutes away from Vila Verde, where you will find a wide range of services.
Consisting of:
Ground floor:
- Entrance hall;
- Open Space kitchen with island;
- Living and dining room;
- Service WC;
- Suite with closet;
- Bedrooms with built-in wardrobes;
- Complete bathroom to support the rooms;
- Front porch;
- Grill;
Lower floor:
- Laundry;
- Storage;
- Garage;
- Front porch;
?Also worth highlighting:
- Complete installation of a 300L heat pump;
- Pre-installation of solar panels;
- Installation of duct air conditioning;
- Video installation - intercom;
- Frames with thermal break, with double glazing;
- Exterior electric aluminum blinds;
- Automatic interior and exterior gates.
Possibility to choose finishes according to specifications.
Schedule your visit now!
Localização
Moure, Vila Verde, Braga
Informação do anúncio
ID do anúncio
630376
Referência Externa
1353
Atualizado em
25/04/2026 23:37:07
Moradia T3 para Venda em Moure
Vídeo